Version: 8.22.6Navigation ĂĽberspringen
J&P Immobilienmakler GmbH
319.000 €
2 Zimmer  â€˘  49,2 m²  â€˘  3. Geschoss

Wohnung zum Kauf
319000 €
6.484 €/m²
2 Zimmer  â€˘  49,2 m²  â€˘  3. Geschoss

Schöne 2 Zimmerwohnung in Margareten

Verkauft wird eine 2 Zimmerwohnung in der Schönbrunner Straße.

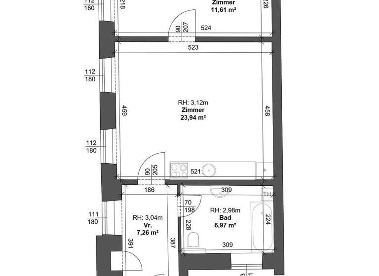
Die sich im dritten Obergeschoss (ohne Lift) befindende Wohnung verfügt über knapp 46 m² Wohnfläche und teilt sich wie folgt auf:

Vorraum
zwei Zimmer (Wohnzimmer und Schlafzimmer)
vollausgestattete KĂĽche
Badezimmer mit Badewanne und zeitloser Verfliesung

Lage
Die Liegenschaft liegt am Rande des Freihausviertels im 4. Wiener Gemeindebezirks zwischen MargaretenstraĂźe und Rechte Wienzeile.
Nahversorger, sowie zahlreiche Restaurants, Bars und Cafés befinden sich in unmittelbarer Nähe. Auch der Naschmarkt mit seinen vielfältigen kulinarischen Angeboten ist nur wenige Gehminuten entfernt. Die öffentliche Anbindung ist durch die Autobushaltestelle 59A, welche sich schräg gegenüber befindet, sowie die U4 Station "Kettenbrückengasse" bestens gegeben.

Ansprechpartner
Frau Doris Kurzweil || +43 699 17 55 66 16 || dk@jpi.at

Wir weisen darauf hin, dass wir mit dem Abgeber in ständiger Geschäftsbeziehung stehen und schon aus diesem Grund ein wirtschaftliches Naheverhältnis vorliegt.

Merkmale

  • Bezug: sofort
  • 3. Geschoss
  • Kelleranteil
  • Bodenbelag: Parkett

Grundrisse

Grundrisse
1 / 1

Realisiere Dein Projekt

Bausubstanz und Energie

Heizwärmebedarf (HWB)

D

Gesamtenergieeffizienz (fGEE)

D
  • Zustand der ImmobilieAltbau (bis 1945)
MediumRectangleTop

Preisdetails

Kaufpreis
319000 €
6.483,74 €/m²
Provision für Käufer
3 %

Lage

address-icon
Schönbrunner Straße 39, Wien (1050)

Weitere Informationen

Stichworte Anzahl der Badezimmer: 1, Anzahl der separaten WCs: 1, Wohnungsnr.: 14

Weitere Services

Lust auf eine Besichtigung?
Eine Frage zur Immobilie?
Nachricht hinzufĂĽgen
Mit der Nutzung der oben angegebenen Telefonnummer oder durch Klicken auf „Kontaktieren“ akzeptierst Du die Allgemeinen Nutzungsbedingungen, denen Du jederzeit widersprechen kannst. Weitere Informationen zum Datenschutz

Ăśber den Anbieter

Lehargasse 7, 1060 WIEN
partner badge
10 Jahre Partnerschaft
Frau Doris Kurzweil
Frau Doris KurzweilDein Kontakt
Online-ID: 2m4kr5r
Referenznummer: 101/17256
J&P Immobilienmakler GmbH
title
J&P Immobilienmakler GmbH
Nachricht hinzufĂĽgen
Mit der Nutzung der oben angegebenen Telefonnummer oder durch Klicken auf „Kontaktieren“ akzeptierst Du die Allgemeinen Nutzungsbedingungen, denen Du jederzeit widersprechen kannst. Weitere Informationen zum Datenschutz
MediumRectangleTop
MediumRectangleBottom
MediumRectangleTop
Wie zufrieden bist du mit dieser Seite (nicht mit der Immobilie selbst)?