




Wohnung zum Kauf - Erstbezug630000 €6.815 €/m²4 Zimmer • 92,4 m²
630000 €
6.815 €/m²
4 Zimmer • 92,4 m²
Bloom - Einziehen. Aufblühen.
Merkmale
- Bezug: Ende 2027
- Personenaufzug
- Bad mit Dusche
- Gäste-WC
- Bodenbelag: Parkett
- Terrasse
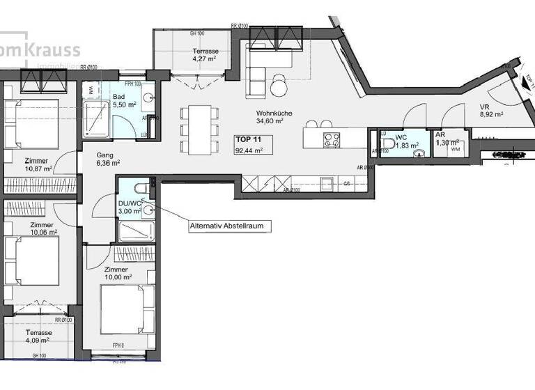
Grundrisse
Grundrisse
1 / 1
Realisiere Dein Projekt
Bausubstanz und Energie
Heizwärmebedarf (HWB)
B
Gesamtenergieeffizienz (fGEE)
A
- Baujahr2026
- Zustand der ImmobilieErstbezug
- EnergieträgerLuft-/Wasser-Wärmepumpe
Preisdetails
Kaufpreis
630000 €
6.815,23 €/m²
Provision für Käufer
3% zzgl. 20% Ust.
3% zzgl. 20% Ust.
3% zzgl. 20% Ust.
Lage

Wien (1210)
Der Anbieter hat die genaue Adresse nicht freigegeben
Weitere Informationen
Weitere Services
Lust auf eine Besichtigung?
Eine Frage zur Immobilie?
Über den Anbieter
TOM Krauss Immo GmbHMaklerbüro
Mexikoplatz 26/3, 1020 WIEN
Partnerschaft
Frau Valentina KraussDein Kontakt
Online-ID: 26DJ8EVYDWZC
Referenznummer: TKI-00699_11
Wie zufrieden bist du mit dieser Seite (nicht mit der Immobilie selbst)?




