Wohnung zum Kauf • provisionsfrei379500 €6.507 €/m²2 Zimmer • 58,3 m²
379500 €
6.507 €/m²
2 Zimmer • 58,3 m²
2-ZIMMER-WOHNUNG IN WEINGARTEN - PROJEKTIERTER NEUBAU
Merkmale
- Personenaufzug
- Garage
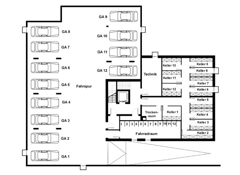
Grundrisse
Grundrisse
1 / 2
Bausubstanz und Energie
Möchtest du Details zum Energieverbrauch?

- Baujahr2026
- Zustand der ImmobilieNeubau
- HeizungsartZentralheizung
- EnergieträgerElektro
Preisdetails
Kaufpreis
379500 €
6.507,20 €/m²
Provision für Käufer
provisionsfrei
Weitere Preisinformationen
1 Garagenstellplatz
Geschätzte Gesamtkosten
406.066 €1
Kaufpreis
379.500 €
Kaufnebenkosten
26.566 €
2Notarkosten (1,5%)
5.693 €
Grunderwerbsteuer (5%)
18.975 €
Grundbucheintrag (0,5%)
1.898 €
1Der angezeigte Wert ist eine automatisch berechnete Schätzung von immowelt.
2Bei den Angaben handelt es sich um ortsübliche Werte. Individuelle Kosten können abweichen.
Lage

Bergstraße 9, Weingarten (88250)
Weitere Informationen
Weitere Services
Lust auf eine Besichtigung?
Eine Frage zur Immobilie?
Über den Anbieter
Schussenstraße 4, 88212 Ravensburg
Partnerschaft
Herr Berndt HochmannDein Kontakt
Online-ID: 25DUM7WZFQ5E
Referenznummer: 4296
Wie zufrieden bist du mit dieser Seite (nicht mit der Immobilie selbst)?
