Mehrfamilienhaus zum Kauf369000 €2.058 €/m²9 Zimmer • 236 m² • 429 m² Grundstück
369000 €
2.058 €/m²
9 Zimmer • 236 m² • 429 m² Grundstück
Modernisiertes Mehrfamilienhaus in Fuldatal - Teilvermietet
Merkmale
- Bezug: nach Vereinbarung
- vermietet
- 429 m² Grundstück
- Keller
- Terrasse
- 3 Stellplätze
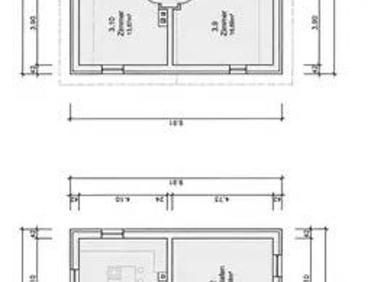
Grundrisse
Grundrisse
1 / 2
Bausubstanz und Energie
Möchtest du Details zum Energieverbrauch?

- Baujahr1900
- Zustand der Immobilierenoviert / saniert
- EnergieträgerGas
Preisdetails
Kaufpreis
369000 €
2.057,61 €/m²
Provision für Käufer
5,95 % des notariell beurkundeten Kaufpreises inkl. 19 % MwSt.
Geschätzte Gesamtkosten
411.693 €1
Kaufpreis
369.000 €
Kaufnebenkosten
42.693 €
2Notarkosten (1,5%)
5.535 €
Grunderwerbsteuer (6%)
22.140 €
Provision für Käufer (3,57%)
13.173 €
Grundbucheintrag (0,5%)
1.845 €
1Der angezeigte Wert ist eine automatisch berechnete Schätzung von immowelt.
2Bei den Angaben handelt es sich um ortsübliche Werte. Individuelle Kosten können abweichen.
Lage

Ihringshausen, Fuldatal (34233)
Der Anbieter hat die genaue Adresse nicht freigegeben
Weitere Informationen
Weitere Services
Lust auf eine Besichtigung?
Eine Frage zur Immobilie?
Über den Anbieter
Heckerstraße 32, 34121 Kassel
Partnerschaft
Herr Jens JordanDein Kontakt
Online-ID: 23Y8C2PHCDUU
Referenznummer: 2-900003184
Wie zufrieden bist du mit dieser Seite (nicht mit der Immobilie selbst)?
