Version: 8.24.0Navigation überspringen
300.000 €
2 Zimmer  •  52 m²  •  1. Geschoss
Immowelt logo

Wohnung zum Kauf
300000 €
5.769 €/m²
2 Zimmer  •  52 m²  •  1. Geschoss

Rendite - Ihre Ferienwohnung mit Meerblick an der Ostsee

Willkommen in Ihrer persönlichen Rückzugsoase an der Ostsee - nur ca. 100 Meter vom feinsandigen Strand entfernt, inmitten der idyllischen Küstenlandschaft von Graal-Müritz.

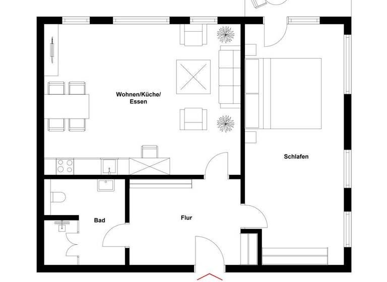
Diese ca. 52 m² große Wohnung befindet sich in der gepflegten Anlage des Akzent Hotels, einem stilvollen Haus, das Feriengäste mit Komfort, Ruhe und Meeresnähe begeistert.

Der durchdachte Grundriss überzeugt mit einem großzügigen Wohn- und Küchenbereich, der viel Raum zum Wohlfühlen bietet. Das separate Schlafzimmer verfügt über einen direkten Zugang zum Balkon mit traumhaftem Blick auf die Ostsee - hier können Sie das Meeresrauschen hören und die frische Seeluft genießen.

Ein geräumiger Eingangsbereich sowie ein modernes Duschbad mit komfortabler Walk-in-Dusche runden das attraktive Raumangebot ab. Die Ausstattung ist gepflegt und auf Feriengäste ausgerichtet - praktisch, gemütlich und funktional zugleich.

Besonders attraktiv ist die Lage: Der Strand ist nur wenige Schritte entfernt und auch der angrenzende Wald lädt zu Spaziergängen, Radtouren oder entspannten Stunden in der Natur ein - perfekt für alle, die Erholung in maritimer Umgebung suchen.

Die Anlage wird im Rahmen eines Hotel-Konzepts betrieben und bietet Gästen Annehmlichkeiten wie eine Rezeption, Restaurant, Sauna und Wellnessbereich sowie eine kleine Bibliothek für Leseratten.
Ein eigener Tiefgaragenstellplatz für Ihr Fahrzeug komplettiert das stimmige Gesamtpaket.

Das Objekt ist ausschließlich für die Ferienvermietung geeignet - eine Nutzung als Erst- oder Zweitwohnsitz ist nicht möglich.

Merkmale

  • 1. Geschoss
  • Personenaufzug
  • Stellplatz
  • Balkon
Strandblick, Blick ins Grüne, Wasserblick

Grundrisse

Grundrisse
1 / 1

Realisiere Dein Projekt

Bausubstanz und Energie

Energieausweis

C
  • Baujahr2017
  • EnergieträgerGas
Immowelt logo

Preisdetails

Kaufpreis
300000 €
5.769,23 €/m²
Hausgeld
460 €
Provision für Käufer
3.57 % inkl. gesetzl. MwSt.
Der Makler-Vertrag mit uns kommt durch die Bestätigung der Inanspruchnahme unserer Maklertätigkeit in Textform zustande, wie z.B. Weitere Informationen siehe Provisionshinweis.
Geschätzte Gesamtkosten
334.710 €1
Kaufpreis
300.000 €
Notarkosten (1,5%)
4.500 €
Grunderwerbsteuer (6%)
18.000 €
Provision für Käufer (3,57%)
10.710 €
Grundbucheintrag (0,5%)
1.500 €
1Der angezeigte Wert ist eine automatisch berechnete Schätzung von immowelt.
2Bei den Angaben handelt es sich um ortsübliche Werte. Individuelle Kosten können abweichen.

Lage

address-icon
Ostseeheilbad Graal-Müritz (18181)
Der Anbieter hat die genaue Adresse nicht freigegeben
Graal-Müritz ist ein malerischer Küstenort an der Ostsee in Mecklenburg-Vorpommern. Er befindet sich etwa 20 Kilometer nordöstlich von Rostock und gehört zum Landkreis Rostock. Der Ort vereint die Eigenschaften eines klassischen Ostseeheilbades mit einer ruhigen, naturnahen Atmosphäre und bietet sowohl Erholung als auch zahlreiche Freizeitmöglichkeiten. Ebenso liegen die reizvollen Landschaften des Nationalparks "Vorpommersche Boddenlandschaft", die Halbinsel Fischland-Darß-Zingst sowie die Insel Rügen komfortabel im Umkreis.

Graal-Müritz ist besonders bekannt für seinen langen, feinsandigen Strand, der ideal für Spaziergänge, Badeurlaub und Wassersportaktivitäten, wie Segeln und Windsurfen ist. Die Ostsee ist hier aufgrund der sanften Küstenschwellen besonders familienfreundlich. Der breite Strand und die weitläufigen Dünenlandschaften prägen das Bild der Region.

Graal-Müritz bietet Ihnen ausreichend Infrastruktur vor Ort. Einkaufsmöglichkeiten, Schulen, Kindergärten, Ärzte, Restaurants, Cafés und Bäckereien sind zu Fuß, mit dem Bus, mit dem Auto oder mit dem Fahrrad zu erreichen.
Radwege führen von Rostock über Graal-Müritz bis auf den Darß. Die TUKI-Bahn ist eine Wege Bahn, die Touristen und Einheimische durch den Ort bringt. Von der Seebrücke können Sie mit der MS "Baltica" nach Warnemünde oder zu einer Fahrt auf der Ostsee starten. Jogger und Fahrradfahrer finden reichlich Waldwege in der Rostocker Heide und befestigte, gut ausgebaute Radwege rundherum. Ein Rundweg für Nordic Walking ist ausgeschildert.

Highlights dieser Region sind u.a. die Hanse Sail in Rostock (im August), das Bernstein Museum in Ribnitz-Damgarten, das Meeresmuseum & Ozeaneum in Stralsund, der Rostocker Zoo, die Wasserskianlage in Körkwitz oder Rostock, der Vogelpark Marlow sowie der Reiterhof in Klockenhagen.

Eine stündlich fahrende Regionalbahn erreicht Rostock in 30 Minuten. Nach Warnemünde sind es ca. 16 km bzw. 20 Minuten mit der Fähre. Weitere Entfernungen: Hamburg-Innenstadt / Graal-Müritz über die A 1/ A 20 und A 19 in ca. 2 Stunden 10 Minuten, Berlin-Innenstadt / Graal-Müritz über A 10, A 24 und A 19 in ca. 2 Stunden 30 Minuten.

Weitere Informationen

Provisionshinweis 3.57 % inkl. gesetzl. MwSt.
Der Makler-Vertrag mit uns kommt durch die Bestätigung der Inanspruchnahme unserer Maklertätigkeit in Textform zustande, wie z.B. insbesondere die Unterschrift des Maklervertrages und des Objektnachweises. Die Höhe der Courtage richtet sich nach den gesetzlichen Regelungen zur Teilung der Maklercourtage. Hiernach beträgt die Courtage regelmäßig für beide Parteien (Eigentümer und Käufer) 3,57 % auf den Kaufpreis einschließlich gesetzlicher Mehrwertsteuer und ist bei notariellem Vertragsabschluss verdient und fällig. Die EuV Ostsee GmbH erhält einen unmittelbaren Zahlungsanspruch gegenüber dem Käufer (Vertrag zugunsten Dritter, § 328 BGB). Grunderwerbssteuer, Notar- und Gerichtskosten trägt der Käufer. Stichworte Stellplatz vorhanden, Tiefgarage vorhanden, Nord-West-Balkon/Terrasse, Anzahl der Badezimmer: 1, Anzahl Balkone: 1, Bundesland: Mecklenburg-Vorpommern

Weitere Services

Lust auf eine Besichtigung?
Eine Frage zur Immobilie?
Nachricht hinzufügen
Mit der Nutzung der oben angegebenen Telefonnummer oder durch Klicken auf „Kontaktieren“ akzeptierst Du die Allgemeinen Nutzungsbedingungen, denen Du jederzeit widersprechen kannst. Weitere Informationen zum Datenschutz

Über den Anbieter

Ernst-Thälmann-Str. 4, 18347 Ostseebad Wustrow
partner badge
6 Jahre Partnerschaft
Kerstin AlwardtDein Kontakt
Online-ID: 2le7y5p
Referenznummer: I-030JWF-W-030JWF
EuV Ostsee GmbH Lizenzpartner der Engel & Völkers Residential und Commercial GmbH
EuV Ostsee GmbH Lizenzpartner der Engel & Völkers Residential und Commercial GmbH
Bewertung: 4,2 von 5 Sternen
Nachricht hinzufügen
Mit der Nutzung der oben angegebenen Telefonnummer oder durch Klicken auf „Kontaktieren“ akzeptierst Du die Allgemeinen Nutzungsbedingungen, denen Du jederzeit widersprechen kannst. Weitere Informationen zum Datenschutz
Wie zufrieden bist du mit dieser Seite (nicht mit der Immobilie selbst)?