Neubaugebiet! Schlüsselfertige Doppelhaushäfte mit Carport in Ostrhauderfehn zu verkaufen!
Objekt
Auf einem großzügigen Grundstück im Neubaugebiet Am Mittelweg wird ein barrierefreies Bungalow-Doppelhaus erbaut.
Das seniorengerechte Doppelhaus wird in hochwertiger Bauweise mit bestem Schallschutz und optimaler Wärmedämmung errichtet. Helle, lichtdurchflutete Räume mit großen bodentiefen Fenstern verleihen den Wohnräumen eine besonders behagliche Atmosphäre. Für maximalen Komfort sorgt die moderne Fußbodenheizung mit Raumthermostaten in allen Räumen. Eine Sanitärausstattung mit namenhaften Sanitärobjekten und einer ebenerdig gefliesten Dusche rundet das Objekt ab. Der Doppelbungalow wird schlüsselfertig fertiggestellt und mit exklusiven Materialien wie hochwertigen Fliesenn/ Vynil und modernen weißen Innentüren ausgestattet.
Für jede Haushälfte wird ein Carport mit Geräteraum errichtet.
Die Außen- bzw. Gartenanlage wird pflegeleicht angelegt.
Raumaufteilung
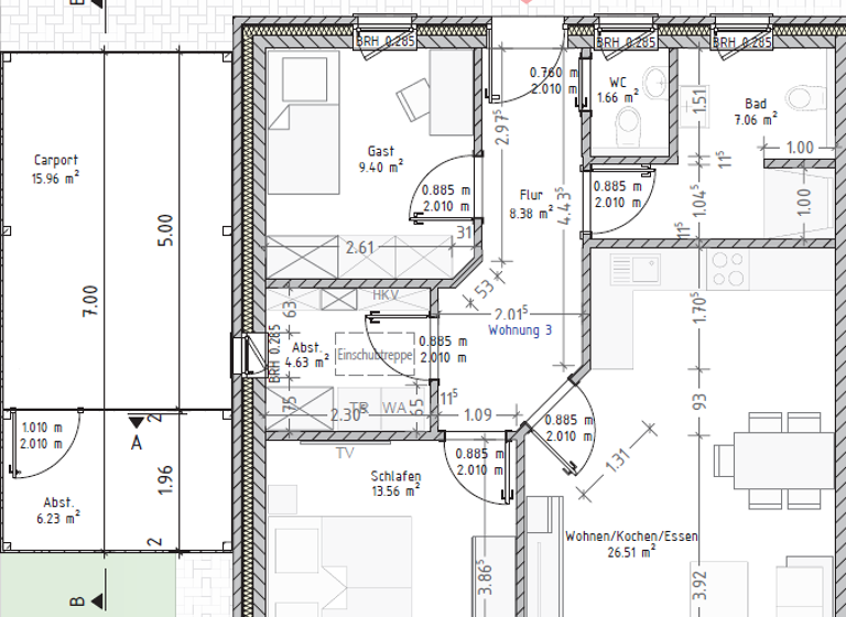
Die Haushälfte verfügt über 75 m² Wohnfläche sowie einen Carport mit Geräteraum. Im Erdgeschoss befinden sich ein Schlafzimmer, ein Gäste-/Kinderzimmer, ein Gäste-WC, ein Bad mit ebenerdiger Dusche und eine großzügige Wohnraumküche mit einem Zugang zur Terrasse. Das Bad und Gäste-WC sind bis 1,20 m mit hellen hochwertigen Fliesen verfliest. Ein geräumiger Hauswirtschaftsraum bietet Ihnen reichlich Abstellfläche sowie die notwendigen Anschlüsse für die Waschmaschine und Trockner. Zusätzlich hat der Hauswirtschaftsraum eine Einschubtreppe zum Dachboden, der bietet Ihnen zusätzliche Abstellfläche und viel Stauraum.
Merkmale
Bezug: Herbst 2026
Carport
Gäste-WC
Garten
Terrasse
Barrierefrei
Badezimmer: Bad mit Dusche, Bad mit Fenster
Grundrisse
Grundrisse
1 / 1
Realisiere Dein Projekt
Bausubstanz und Energie
Der Anbieter hat keine Informationen zum Energieverbrauch bereit gestellt.
Baujahr2026
Zustand der ImmobilieNeubau, Massivhaus, Erstbezug
HeizungsartFußbodenheizung
EnergieträgerLuft-/Wasser-Wärmepumpe
Preisdetails
Kaufpreis
259000 €259.000 €
3.453,33 €/m²
Provision für Käufer
3 % Maklercourtage
Geschätzte Gesamtkosten
284.900 €1
Kaufpreis
259.000 €
Kaufnebenkosten
25.900 €
2
Notarkosten (1,5%)
3.885 €
Grunderwerbsteuer (5%)
12.950 €
Provision für Käufer (3%)
7.770 €
Grundbucheintrag (0,5%)
1.295 €
1Der angezeigte Wert ist eine automatisch berechnete Schätzung von immowelt.
2Bei den Angaben handelt es sich um ortsübliche Werte. Individuelle Kosten können abweichen.
Lage
Holterfehn, Ostrhauderfehn (26842)
Der Anbieter hat die genaue Adresse nicht freigegeben
26842 Ostrhauderfehn (Zentrum in ca. 2.200m erreichbar: Einkaufsmöglichkeiten, Ärzte, Bäcker, Gastronomie, Banken, Apotheken, Ärzte, Kindergarten etc., gute Verkehrsanbindung zur B72 und A28, holländische Grenze in 50 km erreichbar)
Ostrhauderfehn liegt im südlichen Ostfriesland, zentral zwischen den Städten Leer und Papenburg. Ein großes Merkmal der Gemeinde Ostrhauderfehn ist die "Fehnlandschaft". Lange Kanäle mit parallellaufenden Straßen, Klappbrücken, Schiffe mit braunen Segeln und charakteristische Häuser durchziehen den Ort. Weiter liegt Ostrhauderfehn direkt an der Deutschen Fehnroute.
Weitere Informationen
Sonstiges
Auf Anfrage übersenden wir Ihnen gerne weitere Informationen zum Objekt. Musterhausbesichtigung möglich.
Stichworte
Sonstiges/Wohnen: Dachboden, seniorengerechtes Wohnen