Version: 8.25.1Navigation überspringen
Preis auf Anfrage
21 Zimmer  •  1.234 m²  •  3.974 m² Grundstück
Immowelt logo

Mehrfamilienhaus zum Kauf
21 Zimmer  •  1.234 m²  •  3.974 m² Grundstück

Sonderagebot mit Preisanfrage - Die ehemalige Autosattlerei mit Baugenehmigung

Sie suchen eine neue Herausforderung als Bauherr, dann sind Sie hier richtig?

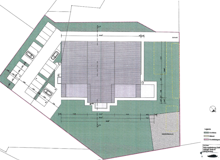
Zum Verkauf steht die ehemalige Autosattlerei in Bernburg (Saale) mit Nutzungsänderung (und Änderung) eines ehemaligen Gewerbe- in ein Wohngebäude mit 11 Wohneinheiten, 2-und 3 Zimmerwohnungen sowie 6 x Zweibettzimmer (12 Betten) zur Beherbergung von Monteuren, als auch die Errichtung von 23 Stellplätzen.
Die Baugenehmigung, gemäß §71 BauO LSA für das vorhandene Bauvorhaben, wurde im Januar 2025 vom FD-Bauordnung bestätigt.
Die Genehmigungsplanung ist abgeschlossen und die Bauphase kann für Sie beginnen.

Übernehmen Sie Ihre eigene Objektüberwachung mit Objektbetreuung.
Ergreifen Sie die Chance als Bauherr, um dieses Konzept und sich selbst zu verwirklichen.

Merkmale

  • 3.974 m² Grundstück
  • 23 Stellplätze
  • Raumaufteilung flexibel

Grundrisse

Grundrisse
1 / 7

Realisiere Dein Projekt

Bausubstanz und Energie

Möchtest du Details zum Energieverbrauch?info_energy_calculation-icon
  • Baujahr1960
  • Zustand der ImmobilieAltbau (bis 1945)
Immowelt logo

Preisdetails

Provision für Käufer
Bitte beachte, das Angebot kann bei Vertragsabschluss die Zahlung einer Provision beinhalten. Weitere Informationen erhältst Du vom Anbieter.

Lage

address-icon
Gröbziger Str. 60BernburgBernburg (Saale) (06406)
Das ehemalige Gewerbeobjekt liegt in Süd-östliche Richtung an der L146, die in Richtung Baalberge führt. Bernburg (Saale) ist die Kreisstadt des Salzlandkreises und liegt zentral in Sachsen-Anhalt.
Die Ortschaft liegt an der Saale etwa 40 Kilometer südlich von Magdeburg und 35 Kilometer nördlich von Halle (Saale). Die Stadt Bernburg (Saale) setzt sich zusammen aus der Berg- und der Talstadt

Infrastruktur / Verkehrsanbindung
Die Saalestadt zeichnet sich mit seiner kulturellen Infrastruktur und einer Vielzahl an Einrichtungen als begehrter Wohnort aus. Im Umkreis von ca. 2km befinden sich fußläufig einige Einkaufsmöglichkeiten des täglichen Bedarfs sowie eine Kita und eine Grundschule.

Die Kreisstadt Bernburg (Saale) integriert 8 Ortschaften mit insgesamt ca. 34.000 Einwohnern. Sie besitzt eine reichhaltige Infrastruktur mit Einkaufs- und Dienstleistungsmöglichkeiten, mehrere Kindertagesstätten, Bildungseinrichtungen und Schulen, wie z.B. das Gymnasium Carolinum.

Der ca. 3,0 km entfernt gelegene Hauptbahnhof wird von der Regionalbahn Aschersleben-Güsten-Bernburg-Köthen-Dessau passiert.
Der Harz-Elbe-Express fährt nach Könnern und zum Hauptbahnhof Halle (Saale). Weiterhin besteht die Möglichkeit, mit den regionalen Busverbindungen die jeweiligen umliegenden Ortschaften und mit der Fernbuslinie überregionale Mittel- und Großstädte zu erreichen. Bei Bernburg verläuft in nördlicher Richtung die B6n, die in westlicher Richtung zum Harz und in östlicher Richtung nach Köthen (Anhalt) und Dessau-Roßlau führt. Nur wenige Autominuten auf der B6n befindet sich die Autobahnauffahrt A14, die in nördlichere Richtung zur Landeshauptstadt Magdeburg (ca. 45 km) und in südlicher Richtung nach Halle (Saale) in ca. 40 km führt.

Weitere Informationen

Sonstiges Sehr geehrte(r) / Interessent(in),
alle Angaben basieren auf Aussagen des Verkäufers, der vorhandenen Unterlagen sowie einer Objektbesichtigung.

Eine Gewähr für die Richtigkeit und Vollständigkeit kann daher nicht übernommen werden. Dieses Exposé möchten Sie bitte als freibleibendes unverbindliches Angebot betrachten. Eine Weitergabe von Objektinformationen bedarf unserer Zustimmung und verpflichtet bei Nichtbeachtung zur Provisionszahlung, sofern diese Weitergabe zum Vertragsabschluss führt. Bei zielbewussten Vertragshandlungen sind Sie verpflichtet darauf aufmerksam zu machen, dass Sie diese Informationen von uns erhalten haben. Das Exposé ist vertraulich zu behandeln und darf Dritten nicht zugänglich gemacht werden.
Die IGM übernimmt keine Gewähr für von Dritten gemachte Angaben.

Weitere Informationen erhalten Sie selbstverständlich gern in einem persönlichen Gespräch mit uns oder nach Bekanntgabe Ihrer vollständigen Kontaktdaten. Für einen unverbindlichen Besichtigungstermin stehen wir Ihnen jederzeit zur Verfügung. Stichworte Stellplatz vorhanden, Nutzfläche: 1.530,00 m², Anzahl der Schlafzimmer: 21, Anzahl der Badezimmer: 17, Gartenfläche: 1.500,00 m², Kellerfläche: 422,00 m², Dachbodenfläche: 820,00 m², Anzahl der Wohneinheiten: 11, Bundesland: Sachsen-Anhalt, Flur: 5, Flurstück: 14/15, 14/17, 4 Etagen, Stadtrandlage, Distanz zur Autobahn: 8.00, Distanz zum Bus: 0.50, Distanz zum Hauptbahnhof: 3.00, Distanz zum Flughafen: 75.00, Distanz zur Grundschule: 2.00, Distanz zum Gymnasium: 4.00, Distanz zum Kindergarten: 1.00, Distanz zur Realschule: 3.00, Distanz vom Zentrum: 3.00, Distanz zu Naherholung: 6.00, Distanz zu Sportanlagen: 5.00

Weitere Services

Lust auf eine Besichtigung?
Eine Frage zur Immobilie?
Nachricht hinzufügen
Mit der Nutzung der oben angegebenen Telefonnummer oder durch Klicken auf „Kontaktieren“ akzeptierst Du die Allgemeinen Nutzungsbedingungen, denen Du jederzeit widersprechen kannst. Weitere Informationen zum Datenschutz

Über den Anbieter

Ernst-Grube-Str. 3, 39418 Staßfurt
Martin KrauseDein Kontakt
Online-ID: 25KBEVRKW8YA
Referenznummer: IGM-393
IGM Inhaber Martin Krause
IGM Inhaber Martin Krause
Bewertung: 5 von 5 Sternen
Nachricht hinzufügen
Mit der Nutzung der oben angegebenen Telefonnummer oder durch Klicken auf „Kontaktieren“ akzeptierst Du die Allgemeinen Nutzungsbedingungen, denen Du jederzeit widersprechen kannst. Weitere Informationen zum Datenschutz
Wie zufrieden bist du mit dieser Seite (nicht mit der Immobilie selbst)?