Version: 8.25.1Navigation überspringen
698.456 €
5 Zimmer  •  134 m²  •  392 m² Grundstück

Doppelhaushälfte zum Kauf
698456 €
5.212 €/m²
5 Zimmer  •  134 m²  •  392 m² Grundstück

Moderne Doppelhaushälfte mit Garten in ruhiger Wohngegend - Exklusiv

Die Doppelhaushälfte Celebration 135 von Bien-Zenker verbindet moderne Architektur mit intelligenter Raumplanung und schafft ein Zuhause, das ideal auf die Bedürfnisse von Familien und Paaren abgestimmt ist.

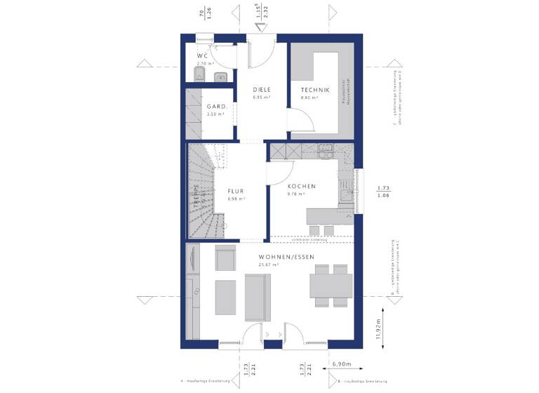
Mit rund 135 m² Wohnfläche bietet dieses Haus ein durchdachtes Raumkonzept mit viel Platz für gemeinsames Leben und individuelle Rückzugsmöglichkeiten. Der offen gestaltete Wohn-, Ess- und Kochbereich im Erdgeschoss bildet das kommunikative Zentrum des Hauses. Großzügige Fensterflächen sorgen für eine helle, freundliche Atmosphäre und unterstreichen das moderne Wohnambiente.

Im Obergeschoss erwarten Sie komfortable Schlafräume sowie ein großzügiges Badezimmer. Die clevere Grundrissgestaltung ermöglicht flexible Nutzungsmöglichkeiten - ob Kinderzimmer, Homeoffice oder Ankleide. So passt sich das Haus Ihren Lebensphasen optimal an.

Die Celebration 135 steht für:

moderne, klare Architektur

energieeffiziente Bauweise nach aktuellem Standard

hochwertige Materialien und geprüfte Markenqualität

optimal durchdachte Grundrisse

individuelle Anpassungs- und Ausstattungsmöglichkeiten

Ein ideales Zuhause für alle, die Wert auf Qualität, Nachhaltigkeit und ein harmonisches Wohnkonzept legen - kompakt geplant und großzügig gedacht.

Merkmale

  • 392 m² Grundstück
  • Keller
Ihr neues Zuhause in bewährter Bien-Zenker Qualität - schlüsselfertig zum Einziehen!

Im Preis enthalten sind zahlreiche hochwertige Ausstattungsmerkmale:

? Effizienzhaus 40 Plus - für besonders niedrige Energiekosten und höchste Zukunftssicherheit
? Klassisches Satteldach mit 32° Dachneigung - zeitlos schön und praktisch
? Keller inklusive - als solide Grundlage für Ihr neues Zuhause
? Hochwertige Fenster mit 3-fach-Isolierverglasung - exzellenter Wärme- und Schallschutz
? Ökologische und nachhaltige Fertigbauweise - bauen Sie verantwortungsbewusst und modern
? Individuelle Planungswünsche - Ihre Ideen können noch umgesetzt werden!
? Wohlfühl-Klima-Heizung+ - für ein gesundes und angenehmes Raumklima
? Sanitär- und Elektroinstallation - bereits im Angebot enthalten


Zusätzlich unterstützen wir Sie gerne mit der Expertise unseres unabhängigen Finanzierungsspezialisten, damit Ihr Weg ins Eigenheim reibungslos und sicher verläuft.

Sichern Sie sich jetzt Ihr Traumhaus - wir freuen uns auf Ihre Anfrage!

Grundrisse

Grundrisse
1 / 2

Virtueller Rundgang

Video

Realisiere Dein Projekt

Bausubstanz und Energie

Möchtest du Details zum Energieverbrauch?info_energy_calculation-icon
  • Zustand der ImmobilieProjektiert

Preisdetails

Kaufpreis
698456 €
5.212,36 €/m²
Provision für Käufer
Bei Abschluss eines Kaufvertrages wird eine Vermittlungs-/ Nachweisprovision in Höhe von 5,8 % inklusive 19 % Mehrwertsteuer auf den Kaufpreis vom Käufer fällig.
Geschätzte Gesamtkosten
772.283 €1
Kaufpreis
698.456 €
Notarkosten (1,5%)
10.477 €
Grunderwerbsteuer (5%)
34.923 €
Provision für Käufer (3,57%)
24.935 €
Grundbucheintrag (0,5%)
3.492 €
1Der angezeigte Wert ist eine automatisch berechnete Schätzung von immowelt.
2Bei den Angaben handelt es sich um ortsübliche Werte. Individuelle Kosten können abweichen.

Lage

address-icon
Bad DürrheimBad Dürkheim (78073)
Der Anbieter hat die genaue Adresse nicht freigegeben
Das Baugrundstück befindet sich in ruhiger und gewachsener Wohnlage der Kurstadt Bad Dürrheim. Die Umgebung ist geprägt von gepflegten Einfamilienhäusern und einer angenehmen Nachbarschaft - ideal für Familien sowie alle, die naturnah und dennoch gut angebunden wohnen möchten.

Bad Dürrheim zählt zu den gefragtesten Wohnlagen im Schwarzwald-Baar-Kreis und überzeugt durch hohe Lebensqualität, gesunde Luft und eine sehr gute Infrastruktur. Einkaufsmöglichkeiten für den täglichen Bedarf, Kindergärten, Schulen, Ärzte und Apotheken sind bequem erreichbar. Auch das Stadtzentrum mit Cafés und Geschäften liegt nur wenige Minuten entfernt.

Ein besonderes Highlight ist die beliebte Solemar Therme Bad Dürrheim, die ganzjährig Erholung und Wellness bietet. Der weitläufige Kurpark sowie zahlreiche Rad- und Wanderwege in der Umgebung sorgen für einen hohen Freizeitwert.

Die gute Verkehrsanbindung ermöglicht kurze Wege nach Villingen-Schwenningen und Donaueschingen. Über die nahegelegene A81 besteht zudem eine schnelle Verbindung in Richtung Stuttgart und Bodensee.

Fazit:
Eine ruhige, familienfreundliche Lage mit hoher Wohn- und Lebensqualität - ideal für die Verwirklichung Ihres Eigenheims.

Weitere Informationen

Sonstiges Der Preis gilt für die Doppelhaushälfte und Grundstück zzgl. den ortsüblichen Baunebenkosten.

Das Haus befindet sich in der Projektierung - Änderungen an Grundriss und Aussehen sind jederzeit möglich.

Die Bilder, Grundrisse, etc. können Sonderausstattungen enthalten, die nicht im Preis inbegriffen sind.

Planen Sie ihren Traum vom eigenen Haus mit Bien-Zenker. Wir beraten Sie ausführlich und ehrlich. Gemeinsam schaffen wir die Grundlagen für Ihren Hausbau.

Timo Dokkenwadel und Bien-Zenker - Hier passt alles zusammen!

https://www.td-livingconcepts.de

-

AUSGEZEICHNET BAUEN MIT BIEN-ZENKER

Unsere schönste Auszeichnung sind die über 80.000 zufriedenen Bauherren, die mit ihrem individuellen Haus von Bien-Zenker den Mittelpunkt ihres Lebensraums gefunden haben und sich weiter verwirklichen. Aber wir freuen uns auch über die Auszeichnungen, Awards und Preise, die wir von Fachzeitschriften und anderen unabhängigen Organisationen erhalten. Denn wir verstehen sie als Bestätigung für unsere leidenschaftliche Arbeit in den Bereichen Kundenzufriedenheit, zukunftssicheres Bauen, Wohngesundheit, Architektur und Nachhaltigkeit.


Fairness beim Hausbau inklusive: Bien-Zenker ist "Fairster Fertighausanbieter" im FOCUS-MONEY Fertighaushersteller-Test 2024

Im letzten Jahr hat sich vieles geändert. Eins ist gleich geblieben: Bien-Zenker ist "Fairster Fertighausanbieter" im jährlichen großen Fertighaushersteller Deutschland Ranking von FOCUS-MONEY. Mit Bestnoten in allen Kategorien führt Bien-Zenker die Rangliste an und auch in der Liste "5-Jahres-Wertung" gehört Bien-Zenker zu den Top 10 der besten Fertighaushersteller, die in allen Wertungsjahren mit der höchsten Auszeichnung glänzen. Damit platziert sich Bien-Zenker ganz vorn unter Deutschlands besten Fertighausanbietern. Besser noch: Bien-Zenker ist einer der fairsten im Test.

So haben Baufamilien, die das beste Fertighaus suchen, die Gewissheit, dass sie bei Bien-Zenker rundum gut betreut werden, wie der Vergleich zeigt. Denn auch wenn FOCUS-MONEY keinen Testsieger kürt, kommt die Bien-Zenker Wertung dem doch ziemlich nahe. So bietet ihnen Bien-Zenker in allen Einzelkategorien optimale Sicherheit. Die über 2.100 für den Fertighaushersteller-Vergleich 2024 befragten Teilnehmer der Studie gaben Bien-Zenker Bestnoten in allen Einzelkategorien: fairste Produktleistung, fairste Kundenkommunikation, fairste Kundenberatung, fairsten Kundenservice, fairstes Preis-Leistungs-Verhältnis sowie höchste Nachhaltigkeit und Verantwortung. Und das macht Bien-Zenker zum fairsten Baupartner für Ihr zukünftiges Haus.

Die Fertighaus Profis - https://diefertighausprofis.de/

Bien-Zenker - https://www.bien-zenker.de/

Weitere Services

Lust auf eine Besichtigung?
Eine Frage zur Immobilie?
Nachricht hinzufügen
Mit der Nutzung der oben angegebenen Telefonnummer oder durch Klicken auf „Kontaktieren“ akzeptierst Du die Allgemeinen Nutzungsbedingungen, denen Du jederzeit widersprechen kannst. Weitere Informationen zum Datenschutz

Über den Anbieter

Römerstraße 157, 72793 Pfullingen
Timo DokkenwadelDein Kontakt
Online-ID: 261YU89FRG25
Referenznummer: 12796-259
Bien-Zenker GmbH - Verkaufsbüro Pfullingen - Timo Dokkenwadel
Nachricht hinzufügen
Mit der Nutzung der oben angegebenen Telefonnummer oder durch Klicken auf „Kontaktieren“ akzeptierst Du die Allgemeinen Nutzungsbedingungen, denen Du jederzeit widersprechen kannst. Weitere Informationen zum Datenschutz
Wie zufrieden bist du mit dieser Seite (nicht mit der Immobilie selbst)?