

Gründer Immobilien
Herr Ralf Gründer
049 ···
Nr. anzeigenPreise & Kosten
Provision für Käufer
Bitte beachte, das Angebot kann bei Vertragsabschluss die Zahlung einer Provision beinhalten. Weitere Informationen erhältst Du vom Anbieter.
Das Haus
Kategorie
Bungalow
Baujahr
2026
Bezug
Nachfertigstellung
Energie & Heizung
Warum sehe ich diese Anzeige? – Du siehst diese Anzeige basierend auf Ihrer Navigation auf unserer Website und den Suchkriterien, die du verwendet hast.
Energieausweistyp
Bedarfsausweis
Gebäudetyp
Wohngebäude
Baujahr laut Energieausweis
2026
Wesentliche Energieträger
Wärmepumpe
Effizienzklasse
A+
Weitere Energiedaten
Haustyp
Massivhaus
Heizungsart
Fußbodenheizung, Luft-/Wasser-Wärmepumpe
Details
Objektbeschreibung
Provisionsfrei für den Käufer: Dieser exklusive komfortable Neubau Walmdachbungalow kann auf einem Grundstück ihrer Wahl bzw. auf einem von ihnen zur Verfügung gestellten Grundstück im Emsland oder Ostfriesland erstellt werden. Der Kaufpreis bezieht sich auf das reine Wohnhaus das Grundstück ist nicht im Kaufpreis...
Ausstattung
Bodenbeläge:
Der gesamte Wohnbereich ist mit einer großformatigen und modernen Bodenfliese bestückt. Die Schlafzimmer sind mit hochwertigen Laminatböden ausgelegt. Alle Räume des Wohnhauses verfügen über eine Fußbodenheizung.
Küche:
Die Küche ist zum Wohnbereich hin offen gehalten. Gerne sind wir Ihnen auch bei der...
Preisinformation
1 Stellplatz
Weitere Informationen
Sonstiges
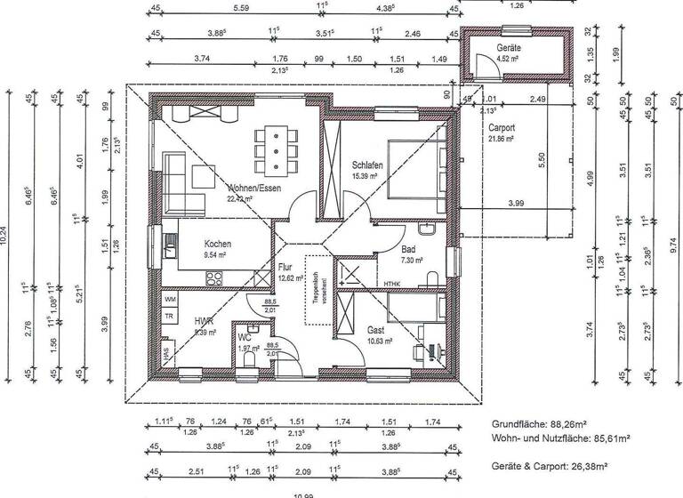
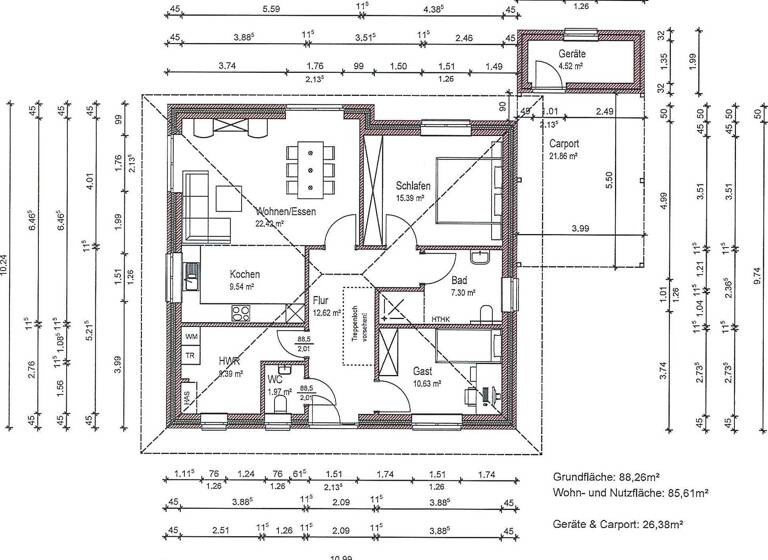
Wohnflächenaufteilung:
Erdgeschoss:
Diele ca. 12,62 m²
Gäste WC ca. 1,97 m²
Bad ca. 7,30 m²
Küche/Wohn/Esszimmer ca. 31,96 m²
Schlafen I ca. 15,39 m²
Schlafen II ca. 10,63 m²
Hauswirtschaftsraum ca. 8,39 m²
Dachgeschoss:
Ausbaureserve ca. 40,00 m²
Stichworte
Carport...
Anbieter der Immobilie
Gründer Immobilien
Haupstraße 97, 26892 Dörpen

Online-ID: 2mfj85q
Referenznummer: 8480#CMHriC
Finde Angebote wie dieses
Hier geht es zu unserem Impressum, den Allgemeinen Geschäftsbedingungen, den Hinweisen zum Datenschutz und nutzungsbasierter Online-Werbung.