

Wohnung zum Kauf - Erstbezug469000 €7.870 €/m²3 Zimmer • 59,6 m² • EG
469000 €
7.870 €/m²
3 Zimmer • 59,6 m² • EG
THE VINEYARD.
Merkmale
- Bezug: Sofort
- Erdgeschoss
- Personenaufzug
- Gäste-WC
- Garten
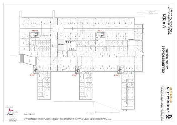
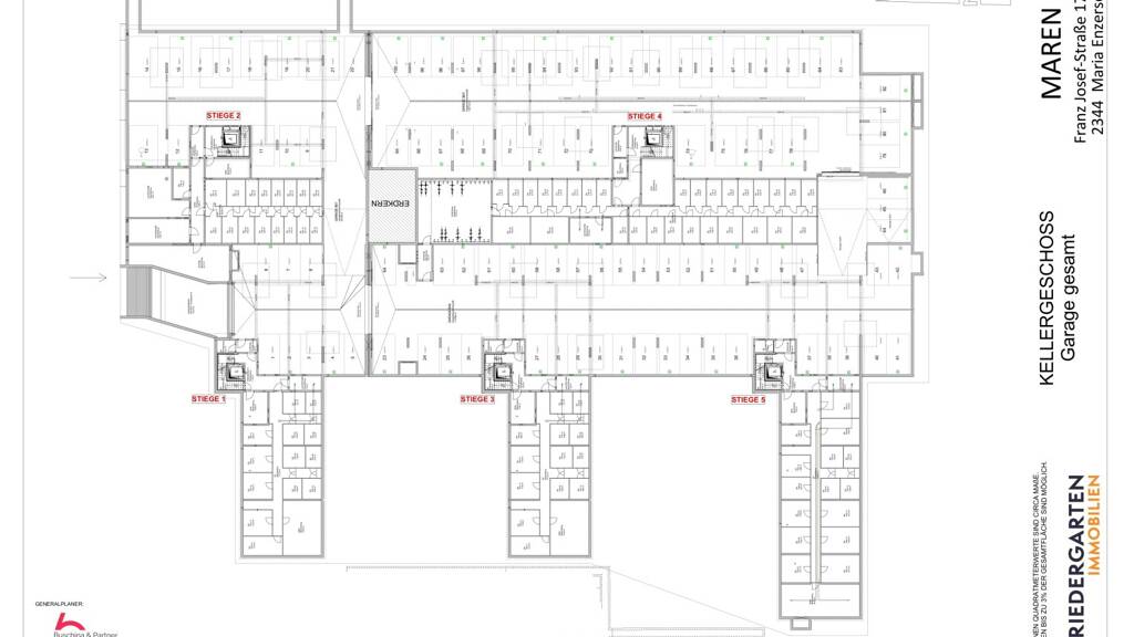
Grundrisse
Verschaffe dir einen genauen Überblick über die Raumaufteilung.

Realisiere Dein Projekt
Bausubstanz und Energie
Heizwärmebedarf (HWB)
B
Gesamtenergieeffizienz (fGEE)
- Baujahr2024
- Zustand der ImmobilieNeubau, Erstbezug
- HeizungsartFußbodenheizung
- EnergieträgerFernwärme
Preisdetails
Kaufpreis
469000 €
7.870,45 €/m²
Provision für Käufer
Bitte beachte, das Angebot kann bei Vertragsabschluss die Zahlung einer Provision beinhalten. Weitere Informationen erhältst Du vom Anbieter.
Lage

Franz Josef-Straße 17-19, Maria Enzersdorf (2344)
Weitere Informationen
Weitere Services
Lust auf eine Besichtigung?
Eine Frage zur Immobilie?
Über den Anbieter
Riedergarten Immobilien GmbHMaklerbüro
Schleppe-Platz 8, 9020 Klagenfurt
Herr Alexander LiftlDein Kontakt
Online-ID: 239ISGKG7JHM
Referenznummer: OBGC2023092600225802215cd2442e3

Riedergarten Immobilien GmbH
Wie zufrieden bist du mit dieser Seite (nicht mit der Immobilie selbst)?

