

Immobilien eG der Volks- und Raiffeisenbanken Hof/Plauen
Frau Dagmar Bräutigam-Thiele
037 ···
Nr. anzeigenPreise & Kosten
Provision für Käufer
pauschal 2.500,00 € inkl. MwSt.
Lage
Die Wohnung befindet sich im östlichen Stadtgebiet, in der beliebten Wohnsiedlung "Gartenstadt". Die idyllische grüne Umgebung bietet Ruhe und Erholung, ohne auf die Vorzüge der Stadtnähe verzichten zu müssen.
Die Anbindung an den öffentlichen Nahverkehr sorgt für hohe Flexibilität. Schulen, Einkaufsmöglichkeiten, das...
Die Wohnung
Wohnungslage
2. Geschoss
Bezug
vermietet
Derzeitige Nutzung
vermietet
Wohnanlage
Energie & Heizung
Warum sehe ich diese Anzeige? – Du siehst diese Anzeige basierend auf Ihrer Navigation auf unserer Website und den Suchkriterien, die du verwendet hast.
Energieausweis: für diesen Gebäudetyp nicht notwendig
Weitere Energiedaten
Energieträger
Fernwärme
Heizungsart
Zentralheizung
Details
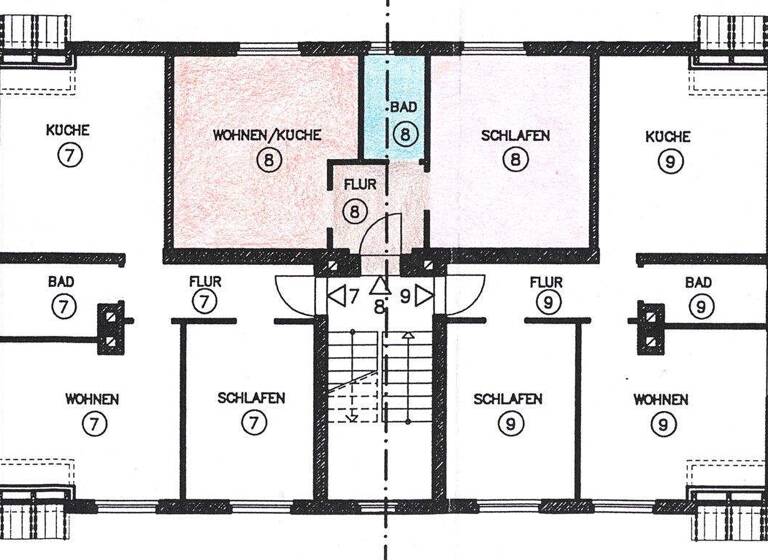
Objektbeschreibung
Die Wohnung liegt im 2. Obergeschoss eines denkmalgeschützten 9-Familienhauses, auf einem Erbbaugrundstück. Sie verfügt über ein Wohnzimmer mit intgriertem Küchenbereich, Schlafzimmer, Diele und Bad. Zum Sondereigentum gehören weiterhin ein PKW-Freistellplatz und ein Kellerabteil.
Die Wohnung ist seit dem 01.07.2022...
Ausstattung
- Laminat- und Fliesenböden
- Tageslichtbad, ausgestattet mit Wanne, WC, Waschbecken und Waschmaschinenanschluss
Preisinformation
1 Stellplatz
Weitere Informationen
Sonstiges
Die Rücklage betrug per 31.12.2024 für das Haus gesamt 51.511,11 €, anteilig für die Wohnung 4.862,66 €.
Das Wohnhaus steht unter Denkmalschutz, daher besteht keine Pflicht für die Erstellung eines Energieausweises.
Stichworte
Anzahl der Badezimmer: 1, 1 Etagen
Anbieter der Immobilie
Immobilien eG der Volks- und Raiffeisenbanken Hof/Plauen
Bismarckstraße 33, 95028 Hof

Online-ID: 2m6vr56
Referenznummer: 25-00301
Finde Angebote wie dieses
Hier geht es zu unserem Impressum, den Allgemeinen Geschäftsbedingungen, den Hinweisen zum Datenschutz und nutzungsbasierter Online-Werbung.