Version: 8.26.0Navigation überspringen
179.000 €
7 Zimmer  •  199,4 m²  •  650 m² Grundstück
Immowelt logo

Mehrfamilienhaus zum Kauf
179000 €
898 €/m²
7 Zimmer  •  199,4 m²  •  650 m² Grundstück

Attraktive Immobilie im Knüllwald mit Perspektive

Angeboten wird ein charmantes und teilvermietetes Zweifamilienhaus in idyllischer Lage im Knüllwald.
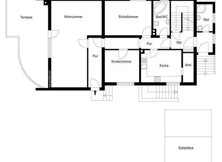
Hier ist eine Dreizimmerwohnung mit Terrasse im Erdgeschoss vorhanden (derzeit vermietet), im Obergeschoss finden Sie eine Vierzimmerwohnung mit zwei Balkonen vor, welche derzeit leer steht. Beide Wohnungen verfügen über Tageslichtbäder mit Wannen im OG gehört eine Einbauküche mit dazu.

Von beiden Einheiten ergibt sich ein traumhafter Blick in die grüne Umgebung, der große Garten ist ein Wohlfühlfaktor.

Im Zuge von Umbaumaßnahmen am Haus ist im OG das vierte Zimmer nachträglich entstanden und die Küche als Durchgangsraum gestaltet worden, sodass Wohnkomfort hinzugewonnen wurde.

Im Dachgeschoss ist ein nachgedämmter Spitzboden mit abschließbarem Abstellraum zu finden, welcher (vorbehaltlich Antrag und Prüfung) ausgebaut werden könnte und Wertsteigerungspotenzial bieten kann.

Das Haus ist zudem unterkellert, hier finden Sie weitere Nutzräume.
Auf dem Grundstück finden Sie drei Stellplätze und eine Doppelgarage.

Auf Wunsch der Mieter befinden sich keine Bilder der EG-Wohnung in diesem Online Exposé.
Weitere, spannende Informationen in unserem Exposé - Überzeugen Sie sich selbst!

Merkmale

  • vermietet
  • 650 m² Grundstück
  • Einbauküche
  • Keller
  • 4 Stellplätze: 3 Außen-Stellplätze
  • Balkon
  • Garten
  • Terrasse

Grundrisse

Grundrisse
1 / 4

Bausubstanz und Energie

Energieausweis

H
  • Baujahr1954
  • Zustand der ImmobilieMassivhaus
  • HeizungsartZentralheizung
  • EnergieträgerÖl
Immowelt logo

Preisdetails

Kaufpreis
179000 €
897,69 €/m²
Provision für Käufer
Käuferprovision 5,95% (inkl. 19 % MwSt.) vom beurkundeten Kaufpreis
Weitere Preisinformationen
3 Stellplätze
Ist-Mieteinnahmen pro Jahr: 6.912,00 EUR
Geschätzte Gesamtkosten
199.710 €1
Kaufpreis
179.000 €
Notarkosten (1,5%)
2.685 €
Grunderwerbsteuer (6%)
10.740 €
Provision für Käufer (3,57%)
6.390 €
Grundbucheintrag (0,5%)
895 €
1Der angezeigte Wert ist eine automatisch berechnete Schätzung von immowelt.
2Bei den Angaben handelt es sich um ortsübliche Werte. Individuelle Kosten können abweichen.

Lage

address-icon
OberbeisheimKnüllwald / Oberbeisheim (34593)
Der Anbieter hat die genaue Adresse nicht freigegeben
Das Zweifamilienhaus liegt in Oberbeisheim (Knüllwald, Schwalm-Eder-Kreis) inmitten der hessischen Mittelgebirgslandschaft mit hohem Erholungswert. Die Gemeinde bietet ein lebendiges Vereinsleben, Museen, Parks, Sportanlagen sowie Wander- und Radwege. Die Anbindung ist hervorragend: A7 (ca. 9 Min.), B323 und der Bahnhof Kassel-Wilhelmshöhe (ca. 40 Min.). Einkaufsmöglichkeiten, u. a. ein EDEKA (ca. 4 Min.), sind schnell erreichbar.

Weitere Informationen

Sonstiges Die Erdgeschosswohnung ist seit 2021 vermietet. Auf Wunsch der Mieter werden im Exposé keine Innenaufnahmen veröffentlicht.

Die Wohnung im Obergeschoss wurde zuletzt von den Eigentümern selbst genutzt und steht derzeit leer.

Das Dachgeschoss bietet zusätzliches Potenzial zur Ausgestaltung und Erweiterung der Wohnfläche.

Ob zur vollständigen Vermietung oder mit individueller Nutzungsperspektive - diese Immobilie eröffnet Ihnen vielseitige Möglichkeiten in attraktiver Wohnlage im schönen Knüllwald. Stichworte Anzahl der Schlafzimmer: 5, Anzahl der Badezimmer: 3, Anzahl Balkone: 2, Anzahl Terrassen: 1, Anzahl der Wohneinheiten: 2, 2 Etagen Sonstiges/Wohnen: Dachboden

Weitere Services

Lust auf eine Besichtigung?
Eine Frage zur Immobilie?
Nachricht hinzufügen
Mit der Nutzung der oben angegebenen Telefonnummer oder durch Klicken auf „Kontaktieren“ akzeptierst Du die Allgemeinen Nutzungsbedingungen, denen Du jederzeit widersprechen kannst. Weitere Informationen zum Datenschutz

Über den Anbieter

Goethestraße 21, 34119 Kassel
partner badge
10 Jahre Partnerschaft
Herr Albrecht PuderDein Kontakt
Online-ID: 26WX7LYXCPKT
Referenznummer: VK.LEHM.22
Wie zufrieden bist du mit dieser Seite (nicht mit der Immobilie selbst)?