Version: 8.25.1Navigation überspringen
2.139 €
138 m² Bürofläche
Immowelt logo

Bürofläche zur Miete • provisionsfrei
2.139 €
138 m² Bürofläche

Kernsanierte Bürofläche in gefragter Lage

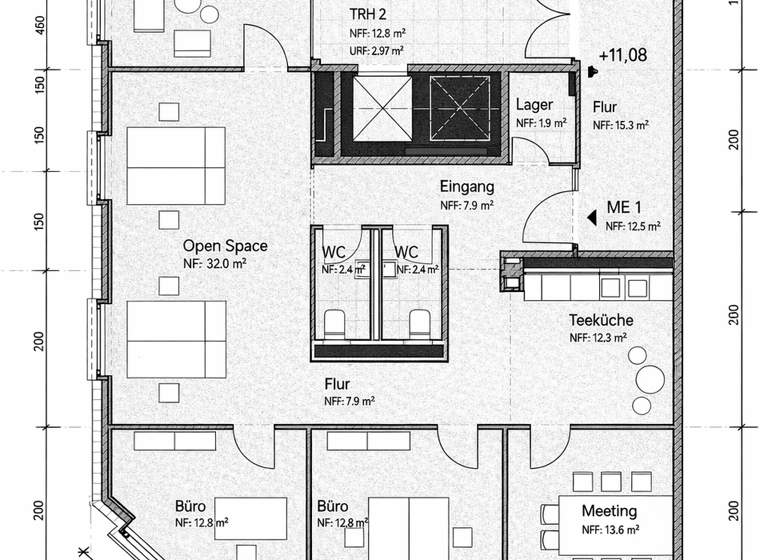
In Top-Lage steht diese attraktive Bürofläche im 3. Obergeschoss eines gepflegten Geschäftsgebäudes zur Verfügung. Die Einheit umfasst ca. 138 m² und überzeugt durch eine durchdachte Grundrissstruktur mit vielseitigen Nutzungsmöglichkeiten.

Die Fläche wird derzeit entkernt und bietet damit ideale Voraussetzungen für einen individuellen Ausbau nach Mieterwunsch. Ob klassisches Büro, Open-Space-Lösung oder eine Kombination aus Einzel-, Team- und Besprechungsräumen - die Raumaufteilung kann flexibel an die Anforderungen des zukünftigen Nutzers angepasst werden. Große Fenster sorgen zudem für eine angenehme Belichtung und eine freundliche Arbeitsatmosphäre.

Dank der hervorragenden Lage profitieren Sie von einer sehr guten Erreichbarkeit, einem repräsentativen Umfeld (Hotel Europäischer Hof) und der Nähe zu Infrastruktur, Gastronomie und öffentlichen Verkehrsmitteln.

Diese Bürofläche bietet eine seltene Gelegenheit, moderne Arbeitswelten nach eigenen Vorstellungen in bester Lage zu realisieren.

Merkmale

  • Bezug: nach Vereinbarung
  • 3. Geschoss
  • Personenaufzug
  • Barrierefrei

Grundrisse

Grundrisse
1 / 1

Realisiere Dein Projekt

Bausubstanz und Energie

Möchtest du Details zum Energieverbrauch?info_energy_calculation-icon
  • Zustand der Immobilierenoviert / saniert
Immowelt logo

Mietkosten

Nettomiete
2.139 €
Nebenkosten
840 €
Provision für Mieter
provisionsfrei
Kaution
keine Angabe

Lage

address-icon
BergheimHeidelberg (69115)
Der Anbieter hat die genaue Adresse nicht freigegeben
Die Friedrich-Ebert-Anlage 1 befindet sich in zentraler und äußerst gefragter Lage von Heidelberg, direkt am Rand der Altstadt und in unmittelbarer Nähe zum Bismarckplatz, dem zentralen Knotenpunkt des öffentlichen Nahverkehrs. Zahlreiche Einkaufsmöglichkeiten, Restaurants, Cafés und Dienstleister befinden sich im direkten Umfeld und bieten eine optimale Infrastruktur für den Arbeitsalltag. Die Nähe zur Heidelberger Innenstadt, zu Behörden, Banken und medizinischen Einrichtungen unterstreicht die repräsentative und urbane Lage.
Insgesamt bietet die Lage einen attraktiven, gut frequentierten Standort mit hoher Sichtbarkeit und besten Voraussetzungen für Büro- und Dienstleistungsnutzungen.

Weitere Informationen

Stichworte Gesamtfläche: 138,00 m², Bundesland: Baden-Württemberg

Weitere Services

Lust auf eine Besichtigung?
Eine Frage zur Immobilie?
Mit einer persönlichen Nachricht hast du bessere Chancen auf eine Antwort.
Mit der Nutzung der oben angegebenen Telefonnummer oder durch Klicken auf „Kontaktieren“ akzeptierst Du die Allgemeinen Nutzungsbedingungen, denen Du jederzeit widersprechen kannst. Weitere Informationen zum Datenschutz

Über den Anbieter

Europaplatz 9, 69115 Heidelberg
Herr Dominik VogtDein Kontakt
Online-ID: 26K75EEPZJ2G
Referenznummer: 22532
S-Immobilien Heidelberg GmbH
S-Immobilien Heidelberg GmbH
Bewertung: 3,2 von 5 Sternen
Mit einer persönlichen Nachricht hast du bessere Chancen auf eine Antwort.
Mit der Nutzung der oben angegebenen Telefonnummer oder durch Klicken auf „Kontaktieren“ akzeptierst Du die Allgemeinen Nutzungsbedingungen, denen Du jederzeit widersprechen kannst. Weitere Informationen zum Datenschutz
Wie zufrieden bist du mit dieser Seite (nicht mit der Immobilie selbst)?