

Grundstück zum Kauf430000 €221 €/m²1.946 m² Grundstück • Baugenehmigung vorhanden
430000 €
221 €/m²
1.946 m² Grundstück • Baugenehmigung vorhanden
+++ Baugrundstück für Mehrfamilienhaus in Oer-Erkenschwick mit genehmigter Bauplanung +++
Merkmale
- 1.946 m² Grundstück
- teilweise erschlossen
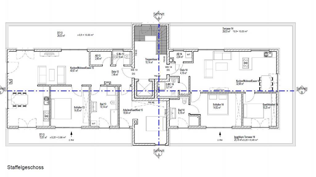
Grundrisse
Verschaffe dir einen genauen Überblick über die Raumaufteilung.

Realisiere Dein Projekt
Bausubstanz und Energie
Möchtest du Details zum Energieverbrauch?

Preisdetails
Kaufpreis
430000 €
220,97 €/m²
Provision für Käufer
5,95 % des Kaufpreises inkl. Mwst.
Geschätzte Gesamtkosten
455.585 €1
Kaufpreis
430.000 €
Kaufnebenkosten
25.585 €
2Provision für Käufer (5,95%)
25.585 €
1Der angezeigte Wert ist eine automatisch berechnete Schätzung von immowelt.
2Bei den Angaben handelt es sich um ortsübliche Werte. Individuelle Kosten können abweichen.
Lage

Groß-Erkenschwick, Oer-Erkenschwick (45739)
Der Anbieter hat die genaue Adresse nicht freigegeben
Weitere Services
Lust auf eine Besichtigung?
Eine Frage zur Immobilie?
Über den Anbieter
Rjasanstr. 7, 48147 Münster
6 Jahre Partnerschaft

Frau Sabine SoucekDein Kontakt
Online-ID: 24MKEINCPJGM


Soucek Immobilien
Bewertung: 5 von 5 Sternen
Wie zufrieden bist du mit dieser Seite (nicht mit der Immobilie selbst)?

