

Mehrfamilienhaus zum Kauf299900 €1.874 €/m²10 Zimmer • 160 m² • 600 m² Grundstück
299900 €
1.874 €/m²
10 Zimmer • 160 m² • 600 m² Grundstück
Investition in die Zukunft - in direkter Innenstadtlage von Kyritz
Merkmale
- vermietet
- 600 m² Grundstück
- Keller
- 4 Stellplätze: 4 Garagen
- voll erschlossen
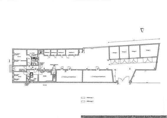
Grundrisse
Grundrisse
1 / 1
Realisiere Dein Projekt
Bausubstanz und Energie
Der Anbieter hat keine Informationen zum Energieverbrauch bereit gestellt.
- Baujahr1930
- Zustand der ImmobilieAltbau (bis 1945)
- HeizungsartZentralheizung
- EnergieträgerGas
Preisdetails
Kaufpreis
299900 €
1.874,38 €/m²
Preis pro Stellplatz
4 €
Provision für Käufer
7,14 % inkl. MwSt.
Weitere Preisinformationen
4 Garagenstellplätze, Kaufpreis je: 4,00 EUR
Geschätzte Gesamtkosten
336.099 €1
Kaufpreis
299.900 €
Kaufnebenkosten
36.199 €
2Notarkosten (1,5%)
4.499 €
Grunderwerbsteuer (6,5%)
19.494 €
Provision für Käufer (3,57%)
10.706 €
Grundbucheintrag (0,5%)
1.500 €
1Der angezeigte Wert ist eine automatisch berechnete Schätzung von immowelt.
2Bei den Angaben handelt es sich um ortsübliche Werte. Individuelle Kosten können abweichen.
Lage

Kyritz (16866)
Der Anbieter hat die genaue Adresse nicht freigegeben
Weitere Informationen
Weitere Services
Lust auf eine Besichtigung?
Eine Frage zur Immobilie?
Ăśber den Anbieter
ZeppelinstraĂźe 136, 14471 Potsdam
Partnerschaft
Herr Ralf SteinmannDein Kontakt
Online-ID: 23gbm57
Referenznummer: 64258

Sanssouci Immobilien Steinmann & Gröschel GbR
Wie zufrieden bist du mit dieser Seite (nicht mit der Immobilie selbst)?

