Mehrfamilienhaus zum Kauf553000 €3.055 €/m²6 Zimmer • 181 m² • 689 m² Grundstück • frei ab sofort
553000 €
3.055 €/m²
6 Zimmer • 181 m² • 689 m² Grundstück • frei ab sofort
REDUZIERT! FREIES ZWEIFAMILIENHAUS plus SOUTERRAIN in DÖSINGEN
Merkmale
- frei ab sofort
- 689 m² Grundstück
- Keller
- 2 Stellplätze
- Gäste-WC
- Balkon
- Garten
- Terrasse
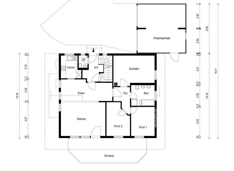
Grundrisse
Grundrisse
1 / 3
Bausubstanz und Energie
Energieausweis
F
- Baujahr1997
- Zustand der ImmobilieHolzhaus, Gepflegt
- HeizungsartZentralheizung
- EnergieträgerÖl
Preisdetails
Kaufpreis
553000 €
3.055,25 €/m²
Provision für Käufer
3,57 % inkl. MwSt.
Die Käuferprovision beträgt 3,57 % vom Kaufpreis inkl. MwSt. Die Käufer-Provision ist verdient und fällig mit notarieller Beurkundung. Weitere Informationen siehe Provisionshinweis.
Die Käuferprovision beträgt 3,57 % vom Kaufpreis inkl. MwSt. Die Käufer-Provision ist verdient und fällig mit notarieller Beurkundung. Weitere Informationen siehe Provisionshinweis.
Geschätzte Gesamtkosten
603.157 €1
Kaufpreis
553.000 €
Kaufnebenkosten
50.157 €
2Notarkosten (1,5%)
8.295 €
Grunderwerbsteuer (3,5%)
19.355 €
Provision für Käufer (3,57%)
19.742 €
Grundbucheintrag (0,5%)
2.765 €
1Der angezeigte Wert ist eine automatisch berechnete Schätzung von immowelt.
2Bei den Angaben handelt es sich um ortsübliche Werte. Individuelle Kosten können abweichen.
Lage

Dösingen, Westendorf (87679)
Der Anbieter hat die genaue Adresse nicht freigegeben
Weitere Informationen
Weitere Services
Lust auf eine Besichtigung?
Eine Frage zur Immobilie?
Über den Anbieter
Schießgrabenstraße 10, 86150 Augsburg
Partnerschaft

Herr Werner UllmannDein Kontakt
Online-ID: 25QEC8ZBVKUX
Referenznummer: BU-2227
Wie zufrieden bist du mit dieser Seite (nicht mit der Immobilie selbst)?
