

Wohnung zum Kauf260000 €3.171 €/m²3 Zimmer • 82 m² • 1. Geschoss
260000 €
3.171 €/m²
3 Zimmer • 82 m² • 1. Geschoss
3 Zi-Wohnung, 82m² + Toplage + 33m² Wohnraumreserve im Souterrain
Merkmale
- 1. Geschoss
- Einbauküche
- Kelleranteil
- Gäste-WC
- Terrasse
- möbliert
- Badezimmer: Bad mit Dusche, Bad mit Fenster
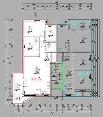
Grundrisse
Verschaffe dir einen genauen Überblick über die Raumaufteilung.

Bausubstanz und Energie
Möchtest du Details zum Energieverbrauch?

- Baujahr2004
- Zustand der ImmobilieGepflegt
- EnergieträgerElektro
Preisdetails
Kaufpreis
260000 €
3.170,73 €/m²
Provision für Käufer
3,75% inkl. 25% USt.
Weitere Preisinformationen
- Moderne Wohnung im MFH m. 6 Wohnungen
- 82 m² Wohnfläche, 33 m² Keller/Lager und Wohnraum-Reserve
- Klimaanlage, gute Isolierung
- Balkon
- EBK mit hochwertigen Elektrogeräten von Miele und Whirpool
- Möblierung
- Kunststoff-Fenster und Fensterläden
- Toplage: ca. 500m zum Meer, ca. 700m Fußweg zum Stadtzentrum, Kindergarten, Einkaufszentren
- 82 m² Wohnfläche, 33 m² Keller/Lager und Wohnraum-Reserve
- Klimaanlage, gute Isolierung
- Balkon
- EBK mit hochwertigen Elektrogeräten von Miele und Whirpool
- Möblierung
- Kunststoff-Fenster und Fensterläden
- Toplage: ca. 500m zum Meer, ca. 700m Fußweg zum Stadtzentrum, Kindergarten, Einkaufszentren
Lage

Porec (52440)
Der Anbieter hat die genaue Adresse nicht freigegeben
Weitere Informationen
Weitere Services
Lust auf eine Besichtigung?
Eine Frage zur Immobilie?
Über den Anbieter
Limesstr. 19, 61273 Wehrheim
6 Jahre Partnerschaft

Herr Jürgen SteckelDein Kontakt
Weitere Unterlagen
Online-ID: 23IYXZGYW7EE
Referenznummer: KIVDHHCo050522
Wie zufrieden bist du mit dieser Seite (nicht mit der Immobilie selbst)?
- Immobilie
- Exposé


