Version: 8.26.0Navigation überspringen
530.000 €
5 Zimmer  •  146,3 m²  •  1.900 m² Grundstück
Immowelt logo

Haus zum Kauf • provisionsfrei
530000 €
3.623 €/m²
5 Zimmer  •  146,3 m²  •  1.900 m² Grundstück

Immobilie mit außergewöhnlichem Gartenparadies – Zwei kombinierbare Eigentumswohnungen in ruhiger Lage von Düren/Stockum (provisionsfrei)

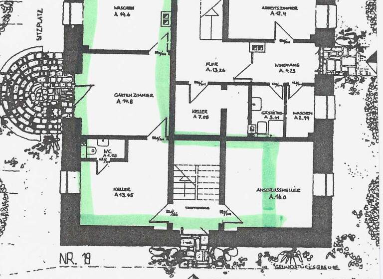
Objektbeschreibung Zum Verkauf steht unser halber Anteil sowohl des Förderhauses der „Zeche Walfisch“, als auch des Grundstücks von 9.379 m². Das Objekt entstand 1840 als eines der ersten seiner Art, wurde 1984 entkernt und für Wohnzwecke in seiner Holzständerbauweise neu aufgebaut. Von den insgesamt 4 Wohneinheiten des Hauses gehören zum Verkaufsobjekt zwei Eigentumswohnungen in der 2. und 3. Etage sowie zusätzliche Nutzflächen im Erdgeschoss. Das Objekt besticht durch seinen individuellen Charakter, flexible Nutzungsmöglichkeiten und ein außergewöhnlich großes, nicht einsehbares Garten-Grundstück von ca. 1.900 m². Die beiden Wohnungen können wahlweise separat genutzt, miteinander kombiniert oder die kleinere vermietet werden. Eine interne Treppe verbindet aktuell beide Einheiten, gleichzeitig bestehen separate Eingänge und Versorgungsstränge. Dadurch ergeben sich vielfältige Nutzungskonzepte – vom großzügigen Familienwohnen über Mehrgenerationenlösungen bis hin zur Kombination aus Eigennutzung und Vermietung. Besonders hervorzuheben ist das vollständig uneinsehbare Grundstück mit Pool, Teich, Gartenhaus, Gewächshaus und u.a. zwei Schuppen, welches ein Höchstmaß an Ruhe und Privatsphäre bietet. Der liebevoll angelegte Garten ist in verschiedene Gartenräume und Sitzbereiche gegliedert und schafft eine abwechslungsreiche, naturnahe Atmosphäre mit zahlreichen Nutz- und Rückzugsmöglichkeiten. Im Erdgeschoss stehen drei Gartenzimmer mit direktem Zugang in den Garten sowie ein WC zur Verfügung. Zwei Räume eignen sich ideal als Sommerküche, Waschküche, Hobbyraum oder für gesellige Abende im Grünen. Ein weiterer als Vorratsraum. Die Immobilie richtet sich an Käuferinnen und Käufer, die kein standardisiertes Haus suchen, sondern ein Objekt mit eigenem Charme und großem Potenzial für kreative Ideen. In Verbindung mit dem weitläufigen Garten entsteht ein Wohnumfeld, das Entspannung, Naturverbundenheit und Individualität vereint, ein erweiterter Lebensraum. ___________________________________________________ Lage Die Immobilie liegt nordöstlich in Witten unmittelbar an den Ortsgrenzen Bochum und Dortmund und sehr verkehrsgünstig in einer ruhigen, grünen und gewachsenen Wohnumgebung. Die Anbindung an die städtische Infrastruktur ist sehr gut: • Direkte Busanbindung in die Innenstadt, zu mehreren Bahnverbindungen, und bis zur Uni Dortmund. • AB-Anbindung (DO-BO) in direkter Nähe • Sehr gute Fahrradanbindung in alle Richtungen • Kurze Wege für Einkauf, Schulen, Kindergärten und medizinischer Versorgung • Uni Witten in nächstem Umkreis • Spaziergänge in direkter Wald- und Feldumgebung Die Kombination aus naturnahem Wohnen und guter Erreichbarkeit macht diese Lage besonders attraktiv. ___________________________________________________ Ein abschließbarer Bike-Port mit 4 Steckdosen ist ideal für das sichere Abstellen und Aufladen von Fahrrädern. Nutzungsmöglichkeiten • Eigennutzung beider Wohnungen als großzügige Einheit • Vermietung der kleineren Wohnung • Mehrgenerationenwohnen • Wohnen und Arbeiten unter einem Dach Die flexible Struktur erlaubt eine Anpassung an unterschiedliche Lebensphasen. ___________________________________________________ Sonstiges • Provisionsfrei • 3.899m² sind verpachtet Die Immobilie richtet sich an Interessenten, die ein besonderes Objekt mit Charakter und großem Grundstück schätzen und bereit sind, dessen Potenzial zu pflegen und weiterzuentwickeln.

Merkmale

  • 3 Geschosse
  • 1.900 m² Grundstück
  • Einbauküche
  • Keller
  • Carport, 3 Außen-Stellplätze
  • Garten
  • 2 Terrassen (gesamt 30 m²)
  • 2 Badezimmer

Grundrisse

Grundrisse
1 / 3

Bausubstanz und Energie

Energieausweis

Ein Energieausweis ist für diesen Gebäudetyp nicht notwendig.
  • Baujahr1840
  • Zustand der ImmobilieGepflegt
  • Heizungsartindividuell
  • EnergieträgerFlüssiggas
Immowelt logo

Preisdetails

Kaufpreis
530000 €
3.622,69 €/m²
Preis pro Stellplatz
in Kaufpreis enthalten
Provision für Käufer
provisionsfrei
Geschätzte Gesamtkosten
575.050 €1
Kaufpreis
530.000 €
Notarkosten (1,5%)
7.950 €
Grunderwerbsteuer (6,5%)
34.450 €
Grundbucheintrag (0,5%)
2.650 €
1Der angezeigte Wert ist eine automatisch berechnete Schätzung von immowelt.
2Bei den Angaben handelt es sich um ortsübliche Werte. Individuelle Kosten können abweichen.

Lage

address-icon
DürenWitten (58454)
Der Anbieter hat die genaue Adresse nicht freigegeben

Weitere Services

Lust auf eine Besichtigung?
Eine Frage zur Immobilie?
Nachricht hinzufügen
Mit der Nutzung der oben angegebenen Telefonnummer oder durch Klicken auf „Kontaktieren“ akzeptierst Du die Allgemeinen Nutzungsbedingungen, denen Du jederzeit widersprechen kannst. Weitere Informationen zum Datenschutz

Über den Eigentümer

MichaelPrivater Anbieter
Online-ID: 26DQU7GQTY4P
Wie zufrieden bist du mit dieser Seite (nicht mit der Immobilie selbst)?