Version: 8.25.1Navigation überspringen
529.600 €
3,5 Zimmer  •  89,9 m²  •  828 m² Grundstück
Immowelt logo

Haus zum Kauf
529600 €
5.893 €/m²
3,5 Zimmer  •  89,9 m²  •  828 m² Grundstück

BW 2741: Kleiner Gastronomiebetrieb mit Kegelbahn und dazugehöriger Pächterwohnung

Objektbeschreibung Dieses vielseitig nutzbare Objekt vereint Gastronomiebetrieb, Freizeitangebot und Wohnen unter einem Dach. Die Immobilie wurde 1977 erbaut und im Jahr 1984 erweitert und befindet sich auf einem ca. 828 m² großen Grundstück. Sie verfügt über eine kleine Gaststätte mit integrierter Kegelbahnanlage sowie einer dazugehörigen Pächterwohnung im DG und bietet damit eine attraktive Grundlage für einen Gastronomie und Freizeitbetrieb.
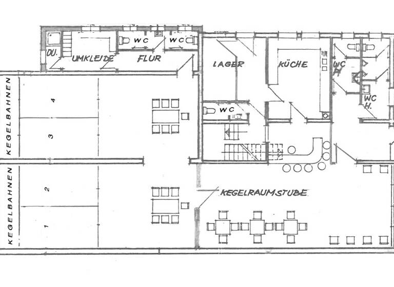
Der Gewerbebereich umfasst eine Gaststätte mit Thekenbereich mit angeschlossener Küche, Lager und Personal-WC. Für Gäste stehen Damen- und Herrentoiletten zur Verfügung. Ein besonderes Highlight der Immobilie sind die vier vorhandenen bundesligatauglichen Kegelbahnen, die mit Sitzbereichen für Gäste ausgestattet sind und sich ideal für Vereinsveranstaltungen, Freizeitaktivitäten oder private Feiern eignen. Sie werden ergänzt durch einen separaten Bereich mit WC, Umkleide und Dusche. Vor der Gaststätte befinden sich eine kleine Terrasse sowie acht zum Objekt gehörende Stellplätze, die den Gästen und Besuchern zur Verfügung stehen.
Im Dachgeschoß befindet sich eine Wohnung für mit ca. 89,87 m² Wohnfläche, welche dem Betreiber komfortables Wohnen direkt vor Ort ermöglicht. Die Wohnung verfügt über 3,5 Zimmer, eine Küche sowie ein Badezimmer. Zusätzlich steht im Dachspitz ein weitere nicht ausgebauter Raum zur Verfügung der als Speicher oder Lagerplatz genutzt werden kann.

Die Übergabe der Immobilie kann nach Absprache erfolgen, eine Pächterauslösung ist möglich. Raumaufteilung EG: Umkleide 6,68 m², Flur 4,91 m², WC 1 1,59 m², WC 2 1,47 qm, Vorraum 1,47 m², Kegelbahn 1+2 147,55 m², Kegelbahn 3-4 149,50 m², Gastraum 53,82 m², Küche 15,93 m², Lager 11,88 m², Windfang 3,42 m², WC Damen 4,52 m², WC Herren 6,64 m², WC Personal 2,43 m²

DG: Wohnen 26,21 m², Schlafen 19,23 m², Zimmer 18,40 m², Essen 12,2 m², Küche 9,99 m² Flur 10,3 m², Bad 662 m²

Merkmale

  • 828 m² Grundstück
  • Einbauküche
  • Außen-Stellplatz

Grundrisse

Grundrisse
1 / 2

Realisiere Dein Projekt

Bausubstanz und Energie

Energieausweis

C
  • Baujahr1977, Erweiteru
  • EnergieträgerÖl
Immowelt logo

Preisdetails

Kaufpreis
529600 €
5.892,96 €/m²
Provision für Käufer
Der Käufer oder der im Interesse des Käufers handelnde Empfänger dieses Angebotes zahlt an uns 3,57 % inkl. der gesetzl. MwSt. berechnet aus dem Gesamtkaufpreis. Die Provision ist verdient und fällig mit Abschluss eines privatrechtlichen oder notariel...
Geschätzte Gesamtkosten
585.579 €1
Kaufpreis
529.600 €
Notarkosten (1,5%)
7.944 €
Grunderwerbsteuer (5%)
26.480 €
Provision für Käufer (3,57%)
18.907 €
Grundbucheintrag (0,5%)
2.648 €
1Der angezeigte Wert ist eine automatisch berechnete Schätzung von immowelt.
2Bei den Angaben handelt es sich um ortsübliche Werte. Individuelle Kosten können abweichen.

Lage

address-icon
KlengenBrigachtal (78086)
Der Anbieter hat die genaue Adresse nicht freigegeben
Die Immobilie befindet sich in Brigachtal im Schwarzwald-Baar-Kreis. Die Umgebung ist geprägt von einer ruhigen Wohnanlage und einem aktiven Vereinsleben.
Durch die Nähe zu Villingen-Schwenningen und Donaueschingen besteht eine gute regionale Anbindung. Gastronomiebetriebe mit Freizeitangeboten wie Kegelbahnen sind in der Region beliebte Treffpunkte für Einheimische und Vereine. Das Objekt eignet sich sowohl für Betreiber eines Gastronomie- oder Freizeitbetriebes als auch für Investoren, die eine interessante Kapitalanlage mit vielseitigen Nutzungsmöglichkeiten suchen.

Das Gebäude wird über eine Ölheizung beheizt. Es verfügt zudem über eine Photovoltaikanlage, deren Strom komplett eingespeist und vergütet wird.

Weitere Informationen

Stichworte/Objekt... Kegelbahnbetrieb (bundesligatauglich) mit kleiner Gastronomie und Pächterwohnung

Weitere Services

Lust auf eine Besichtigung?
Eine Frage zur Immobilie?
Nachricht hinzufügen
Mit der Nutzung der oben angegebenen Telefonnummer oder durch Klicken auf „Kontaktieren“ akzeptierst Du die Allgemeinen Nutzungsbedingungen, denen Du jederzeit widersprechen kannst. Weitere Informationen zum Datenschutz

Über den Anbieter

Niedere Str. 78-80, 78050 Villingen-Schwenningen
partner badge
10 Jahre Partnerschaft
Herr Jürgen SchleicherDein Kontakt
Online-ID: 26VF9EHNSRKY
Referenznummer: BW 2741
SCHLEICHER | Immobilien | Versicherungen | Finanzen
SCHLEICHER | Immobilien | Versicherungen | Finanzen
Bewertung: 4,7 von 5 Sternen
Nachricht hinzufügen
Mit der Nutzung der oben angegebenen Telefonnummer oder durch Klicken auf „Kontaktieren“ akzeptierst Du die Allgemeinen Nutzungsbedingungen, denen Du jederzeit widersprechen kannst. Weitere Informationen zum Datenschutz
Wie zufrieden bist du mit dieser Seite (nicht mit der Immobilie selbst)?