Traumhaftes Bungalow mit 130 m² Wohnfläche – Ihr neues Zuhause!
Objektbeschreibung
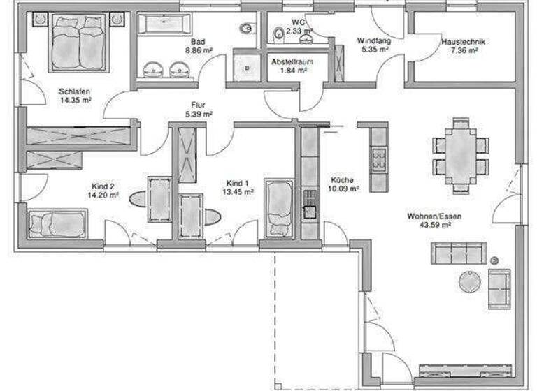
Dieses wunderschöne, schlüsselfertige Bungalow bietet auf 130 m² Wohnfläche ein modernes und komfortables Zuhause. Mit 4,5 Zimmern, einer offenen Wohnküche und gehobener Ausstattung erfüllt es alle Wünsche an ein behagliches Wohnen.
Das Haus ist geplant und projektiert und kann nach Ihrer Freigabe der Detailplanungen bereits nach wenigen Monaten bezogen werden.
Das GrundstĂĽck ist im Preis NICHT enthalten.
Mit rund 130 Quadratmetern ist dieser Winkelbungalow fast schon großfamilientauglich. Und das auf einer Ebene! Eine Zwischentür im Flur trennt den „öffentlichen” Wohn-/Koch- und Essbereich von den privaten Rückzugsräumen im„Westflügel".
Highlights:
Wohnfläche: 130 m² Zimmer: 4,5 Zimmer, ideal für Familien oder Paare, die viel Platz schätzen Offene Wohnküche: Perfekt für gesellige Abende und gemeinsames Kochen Kinderzimmer: Zwei separate Kinderzimmer, flexibel nutzbar Schlüsselfertig: keine zusätzlichen Bauarbeiten notwendig Ausstattung: Hochwertige Materialien und moderne Technik für ein gehobenes Wohngefühl
Raumaufteilung
Dieses wunderschöne, schlüsselfertige Bungalow bietet auf 130 m² Wohnfläche ein modernes und komfortables Zuhause. Mit 4,5 Zimmern, einer offenen Wohnküche und gehobener Ausstattung erfüllt es alle Wünsche an ein behagliches Wohnen.
Mit rund 130 Quadratmetern ist dieser Winkelbungalow fast schon großfamilientauglich. Und das auf einer Ebene! Eine Zwischentür im Flur trennt den „öffentlichen” Wohn-/Koch- und Essbereich von den privaten Rückzugsräumen im„Westflügel".
Merkmale
Bezug: 2026
740 m² Grundstück
offene KĂĽche
Kein Keller
Gäste-WC
Terrasse
Badezimmer: Badewanne, Bad mit Dusche, Bad mit Fenster
Bodenbelag: Fliesen, Parkett, Estrich
Grundrisse
Grundrisse
1 / 1
Realisiere Dein Projekt
Bausubstanz und Energie
Der Anbieter hat keine Informationen zum Energieverbrauch bereit gestellt.
Baujahr2025
Zustand der ImmobilieNeubau, Fertighaus
HaustypKfW 55
HeizungsartFuĂźbodenheizung
EnergieträgerElektro, Luft-/Wasser-Wärmepumpe
Preisdetails
Kaufpreis
372000 €372.000 €
2.861,54 €/m²
Provision für Käufer
provisionsfrei
Geschätzte Gesamtkosten
392.460 €1
Kaufpreis
372.000 €
Kaufnebenkosten
20.460 €
2
Notarkosten (1,5%)
5.580 €
Grunderwerbsteuer (3,5%)
13.020 €
Grundbucheintrag (0,5%)
1.860 €
1Der angezeigte Wert ist eine automatisch berechnete Schätzung von immowelt.
2Bei den Angaben handelt es sich um ortsübliche Werte. Individuelle Kosten können abweichen.
Lage
Pfeffenhausen (84076)
Der Anbieter hat die genaue Adresse nicht freigegeben
Pfeffenhausen ist eine Gemeinde im niederbayerischen Landkreis Landshut. Sie liegt etwa 20 Kilometer nordwestlich von Landshut und 50 Kilometer nordöstlich von München. Die Gemeinde ist von einer wunderschönen, ländlichen Umgebung geprägt, die sich ideal für Spaziergänge und Fahrradtouren eignet.
Die Verkehrsanbindung ist gut, da die A92 schnell erreichbar ist. Zudem gibt es lokale Verkehrsanbindungen, die Pfeffenhausen mit den umliegenden Städten verbinden. Die Infrastruktur umfasst Schulen, Einkaufsmöglichkeiten und Freizeitangebote, die für die Bewohner und Besucher attraktiv sind.
Insgesamt bietet Pfeffenhausen eine ruhige, dörfliche Atmosphäre mit einer freundlichen Gemeinschaft.
Weitere Informationen
Besichtigungstermine
Das Haus ist geplant und projektiert und kann nach Ihrer Freigabe der Detailplanungen bereits nach wenigen Monaten bezogen werden.
Das GrundstĂĽck ist im Preis NICHT enthalten.
Stichworte
Zustand: Erstbezug, projektiert