Version: 8.25.1Navigation überspringen
1.350.000 €
1.245 m²
Immowelt logo

Sonstiges zum Kauf • als Kapitalanlage geeignet
1350000 €
1.245 m²

ANLEGER AUFGEPASST! (ca 5,87% Netto Rendite) INKLUSIVE BEWILLIGTEN Einreichplan für 631,45m² Wnfl DG Ausbau zu verkaufen!

Share Deal möglich!!!

Dieses ehrwürdige, unter Denkmalschutz stehende Objekt wurde im 16ten Jahrhundert erbaut und besteht aus 7 Wohneinheiten, 5 davon (Wert: 695.000,00€ - Kurzzeit Vermietungen möglich!) sowie zwei Geschäfte, ein Lagerraum, Kellerabteile, ein Gang WC, und die Hoffläche werden zum Verkauf angeboten.

Ein genehmigter Einreichplan für einen Dachgeschoss Umbau (Wasserleitung und Kanal bereits vorhanden, Starkstrom und Verteilerkasten im 1. Stock vorbereitet) mit weiteren 6 Wohneinheiten ist im Preis mit inbegriffen.

Die Summe der Liegenschaftsanteile belaufen sich auf 1284 von insgesamt 1760. Im Zuge des Umbaus ergibt sich eine zusätzliche Wohnfläche von 631,45m² und ein Besitz an über 70% der Hausanteile. Die jährlichen Netto Mieteinnahmen betragen aktuell 79.243,32€.

Die momentane Netto Rendite liegt bei 5,87%.

Aufgrund des Denkmalschutzes sind die Wohnungen mit einem angemessenen Mietzins vermietet. Bei Verträgen ohne Befristung würden sogar die 25% Befristungsabschlag entfallen. Zurzeit gibt es 5 Eigentümer.

Die Innenfassade wurde 2022 saniert, die Bestandswohnungen 2020 generalsaniert. Sie wurden mit neuer Elektrik, neuen Wasserrohren, Wohnungseingangs - und Innentüren sowie Einbauküchen ausgestattet. Decken wurden teilweise abgehängt und Trennwände eingezogen. Bei den meisten Einheiten wurden Böden und Fenster erneuert.

Zinsliste und Einreichpläne auf Anfrage.

Für Fragen und/oder einen Besichtigungstermin stehe ich gerne zur Verfügung!

 

 

Noch nichts gefunden? Wir informieren Sie über geeignete Immobilienangebote noch vor allen anderen.
Legen Sie jetzt Ihren individuellen Suchagenten unter folgendem Link an. Wir schicken Ihnen passende Immobilien exklusiv vorab zu.
Suchagent anlegen [https://db-immobilien.service.immo/registrieren/de] - https://db-immobilien.service.immo/registrieren/de

Wir weisen darauf hin, dass zwischen dem Vermittler und dem zu vermittelnden Dritten ein familiäres oder wirtschaftliches Naheverhältnis besteht.

Der Vermittler ist als Doppelmakler tätig.

Infrastruktur / Entfernungen

Gesundheit
Arzt <500m
Apotheke <500m
Klinik <500m

Kinder & Schulen
Schule <500m
Kindergarten <500m

Nahversorgung
Supermarkt <500m
Bäckerei <500m
Einkaufszentrum <2.500m

Sonstige
Bank <500m
Geldautomat <500m
Polizei <500m
Post <500m

Verkehr
Bus <500m
Autobahnanschluss <2.500m
Bahnhof <1.000m

Angaben Entfernung Luftlinie / Quelle: OpenStreetMap

Merkmale

  • Einbauküche
  • Bodenbelag: Fliesen, Parkett, Laminat, Stein

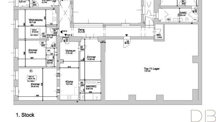
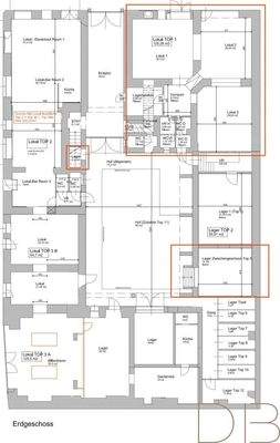
Grundrisse

Grundrisse
1 / 2

Realisiere Dein Projekt

Bausubstanz und Energie

Heizwärmebedarf (HWB)

B

Gesamtenergieeffizienz (fGEE)

A+
  • Baujahr1650
  • Zustand der ImmobilieAltbau (bis 1945), Massivhaus, renoviert / saniert
  • HeizungsartEtagenheizung
  • EnergieträgerGas
Immowelt logo

Preisdetails

Kaufpreis
1350000 €
Provision für Käufer
3% des Kaufpreises zzgl. 20% USt.

Lage

address-icon
Bruck an der Leitha (2460)
Im schönen Bruck an der Leitha - zentrale Lage, direkt am Hauptplatz mit Zugang zur Fußgängerzone!

Weitere Informationen

Stichworte Süd-Balkon/Terrasse, Lagerfläche: 86,14 m², Nutzfläche: 1.245,00 m², Freifläche: 89,00 m², Bundesland: Niederösterreich, modernisiert: 2022

Weitere Services

Lust auf eine Besichtigung?
Eine Frage zur Immobilie?
Nachricht hinzufügen
Mit der Nutzung der oben angegebenen Telefonnummer oder durch Klicken auf „Kontaktieren“ akzeptierst Du die Allgemeinen Nutzungsbedingungen, denen Du jederzeit widersprechen kannst. Weitere Informationen zum Datenschutz

Über den Anbieter

Birkengasse 12, 2384 BREITENFURT BEI WIEN
partner badge
Partnerschaft
Frau Sandra HuemerDein Kontakt
Online-ID: 23ZM7SRJ8GFU
Referenznummer: OBGC20230717145741692423a7074da
DB Immobilien e.U.
Nachricht hinzufügen
Mit der Nutzung der oben angegebenen Telefonnummer oder durch Klicken auf „Kontaktieren“ akzeptierst Du die Allgemeinen Nutzungsbedingungen, denen Du jederzeit widersprechen kannst. Weitere Informationen zum Datenschutz
Wie zufrieden bist du mit dieser Seite (nicht mit der Immobilie selbst)?