Version: 8.25.1Navigation überspringen
Immo-Team GmbH & Co. KG
Preis auf Anfrage
5 Zimmer  •  184 m²  •  6.208 m² Grundstück

Einfamilienhaus zum Kauf
5 Zimmer  •  184 m²  •  6.208 m² Grundstück

Besichtigung am Donnerstag++ Anwesen in Aussichtslage mit Erweiterungspotenzial und Parkgrundstück

Schon die private Zufahrt vermittelt das Gefühl, einen besonderen Ort zu erreichen. Sie führt durch die grüne Umgebung hinauf zu diesem außergewöhnlichen Anwesen und eröffnet den Zugang zu einem privaten Refugium in beeindruckender Aussichtslage.
Oben angekommen entfaltet sich eine Atmosphäre von Ruhe, Weite und Privatsphäre, die heute nur noch selten zu finden ist. Das eingezäunte Grundstück mit einer Gesamtfläche von über 6.200 m² unterstreicht den exklusiven Charakter dieses Anwesens und schafft einen geschützten Raum, in dem sich persönliche Wohnträume verwirklichen lassen.

Das Haupthaus wurde im Jahr 1935 errichtet und im Jahr 1970 durch einen Anbau erweitert. Heute stehen rund 260 m² Wohn- und Nutzfläche, davon etwa 184 m² reine Wohnfläche, zur Verfügung.Die erhöhte Lage eröffnet Ihnen hier beeindruckende Panorama- und Fernblicke, die sich aus nahezu allen Bereichen des Hauses genießen lassen. Große Fensterflächen geben den Blick in die umliegende Natur frei und lassen Innen- und Außenraum auf besondere Weise miteinander verschmelzen. Hier entsteht ein Wohngefühl, das Naturverbundenheit, Freiheit und Großzügigkeit in idealer Weise vereint.

Das Gebäude befindet sich aktuell in einem sanierungsbedürftigen Zustand und bietet Ihnen damit eine hervorragende Grundlage für eine individuelle Neugestaltung und Modernisierung. Neben einer hochwertigen Sanierung des Bestands können durch architektonische Erweiterungen zusätzliche Wohnflächen geschaffen werden. Moderne Wohnkonzepte mit offenen Grundrissen und Panorama-Terrassen lassen sich hier hervorragend realisieren und könnten die außergewöhnliche Aussichtslage noch stärker in das Wohnkonzept integrieren.
Darüber hinaus bietet Ihnen das Grundstück auch das Potenzial für die Neubebauung eines modernes Villenanwesen mit Panoramaußenbereichen.

Das außergewöhnlich großzügige Grundstück mit über 6.200 m² Fläche eröffnet eine seltene Freiheit in der Gestaltung. Ein besonderes Highlight stellt der private Waldanteil dar, der dem Anwesen eine besondere Atmosphäre und zusätzliche Privatsphäre verleiht. Inmitten dieses kleinen Waldstücks befindet sich eine charmante Blockhütte, die als idyllischer Rückzugsort dient - ein Ort, um zur Ruhe zu kommen, die Natur zu genießen oder entspannte Stunden im Kreis von Familie und Freunden zu verbringen. Die Kombination aus Größe, erhöhter Lage und naturnaher Umgebung schafft ideale Voraussetzungen, um ein Gartenparadies mit ganz besonderem Charakter zu verwirklichen und architektonisch frei zu gestalten.


Diese Immobilie vereint damit eine einzigartige Kombination aus privater Zufahrt, Panorama-Aussicht, außergewöhnlicher Grundstücksgröße und vielfältigem Entwicklungspotenzial. Sie bietet die ideale Grundlage für Käufer, die ein besonderes Anwesen mit Raum für Kreativität, Architektur und individuelle Wohnkonzepte verwirklichen möchten.
Ein Ort, an dem sich Natur, Privatsphäre und architektonische Möglichkeiten auf einzigartige Weise verbinden - und der das Potenzial bietet, hier ein exklusives Villenrefugium mit parkähnlichem Grundstück entstehen zu lassen.














++Sämtliche baulichen Maßnahmen, Erweiterungen oder eine mögliche Neubebauung erfolgen selbstverständlich ausschließlich in Abstimmung mit den zuständigen Behörden.++

Merkmale

  • Bezug: sofort
  • 6.208 m² Grundstück
  • Keller
  • 2 Stellplätze: Garage, 2 Außen-Stellplätze
  • Gäste-WC
  • Terrasse
  • Badezimmer: Badewanne, Bad mit Dusche

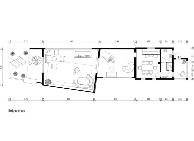
Grundrisse

Grundrisse
1 / 3

Realisiere Dein Projekt

Bausubstanz und Energie

Energieausweis

H
  • Baujahr1935
  • Zustand der Immobilierenovierungsbedürftig / sanierungsbedürftig
  • HeizungsartZentralheizung
  • EnergieträgerÖl
MediumRectangleTop

Preisdetails

Provision für Käufer
3,57 % inkl. 19% MwSt. inkl. MwSt.
3,57 % Käufer-Provision inkl. 19% MwSt. vom beurkundeten Kaufpreis, verdient und fällig mit notarieller Beurkundung des Kaufvertrages. Weitere Informationen siehe Provisionshinweis.
Weitere Preisinformationen
2 Stellplätze
1 Garagenstellplatz

Lage

address-icon
Wüstenrot (71543)
Der Anbieter hat die genaue Adresse nicht freigegeben
Dieses einzigartige Anwesen begeistert durch seine exklusive Naturlage mit unverbaubarer Fernsicht und direkter Nähe zum Wald.
Die erhöhte Position vermittelt ein außergewöhnliches Gefühl von Ruhe, Weite und Privatsphäre - ein Ort, an dem Natur und Lebensqualität perfekt miteinander verschmelzen.
Trotz der idyllischen Umgebung befinden sich wichtige Einrichtungen des täglichen Bedarfs sowie die Anbindung an die umliegenden Orte in angenehmer Reichweite.
Die Kombination aus beeindruckender Aussicht, großzügigem Grundstück und naturnahem Wohnen macht dieses Anwesen zu einer seltenen Gelegenheit für alle, die das Besondere suchen.

Weitere Informationen

Provisionshinweis 3,57 % inkl. 19% MwSt. inkl. MwSt.
3,57 % Käufer-Provision inkl. 19% MwSt. vom beurkundeten Kaufpreis, verdient und fällig mit notarieller Beurkundung des Kaufvertrages. Wir haben einen provisionspflichtigen Maklervertrag in gleicher Höhe mit dem Verkäufer abgeschlossen (§ 656 c BGB). Sonstiges UNSER SERVICE FÜR SIE ALS EIGENTÜMER:
Planen Sie den Verkauf oder die Vermietung Ihrer Immobilie,
so ist es für Sie wichtig, deren Marktwert zu kennen. Lassen Sie kostenfrei und unverbindlich den aktuellen Wert Ihrer Immobilie professionell durch einen unserer Immobilienspezialisten einschätzen.
Erfahren Sie auch mehr zu unserem Premium-Service professionelles Home-Staging für unsere Immobilienbesitzer unter
0711 128 951 0 - wir freuen uns auf Ihre Kontaktaufnahme!

Sonstiges:
GELDWÄSCHE:
Als Immobilienmaklerunternehmen ist die Immo-Team GmbH & Co.KG nach § 2 Abs. 1 Nr. 14 und § 10 Abs. 3 Geldwäschegesetz (GwG) dazu verpflichtet, bei der Begründung einer Geschäftsbeziehung die Identität des Vertragspartners festzustellen und zu überprüfen. Hierzu ist es erforderlich, dass wir nach § 11 GwG die relevanten Daten Ihres Personalausweises festhalten (wenn Sie als natürliche Person handeln) - beispielsweise mittels einer Kopie. Bei einer juristischen Person benötigen wir eine Kopie des Handelsregisterauszugs, aus welchem der wirtschaftlich Berechtigte hervorgeht. Das Geldwäschegesetz sieht vor, dass der Makler die Kopien bzw. Unterlagen fünf Jahre aufbewahren muss.

PROVISIONSHINWEIS:
Mit der Anfrage bei und Inanspruchnahme der Dienstleistung der Firma Immo-Team GmbH & Co. KG, wird ein Maklervertrag geschlossen. Sofern es durch die Tätigkeit dieser Firma zu einem wirksamen Hauptvertrag mit der Eigentümerseite kommt, hat der Interessent bei Abschluss eines notariellen Kaufvertrages die ortsübliche Provision/Maklercourtage wie im Exposé angegeben an die Immo-Team GmbH & Co.KG gegen Rechnung zu zahlen.

WIDERUFSBELEHRUNG für Verbraucher:
Sie haben das Recht, binnen vierzehn Tagen ohne Angabe von Gründen diesen Vertrag zu widerrufen. Die Widerrufsfrist beträgt vierzehn Tage ab dem Tag des Vertragsabschlusses bzw. nachdem wir Ihre Anfrage per Mail erhalten haben.
Um Ihr Widerrufsrecht auszuüben, müssen Sie uns der Firma Immo-Team GmbH & Co. KG; Charlottenstraße 23 in 70182 Stuttgart Tel: 0711 128 951 0, Fax: 0711 128 951 50, info@immo-team.de) mittels einer eindeutigen Erklärung (z. B. ein mit der Post versandter Brief, Telefax oder E-Mail) über Ihren Entschluss, diesen Vertrag zu widerrufen, informieren. Zur Wahrung der Widerrufsfrist reicht es aus, dass Sie die Mitteilung über die Ausübung des Widerrufsrechts vor Ablauf der Widerrufsfrist absenden. Stichworte Garage vorhanden, Stellplatz vorhanden, Nutzfläche: 75,00 m², Anzahl der Schlafzimmer: 2, Anzahl der Badezimmer: 1, Anzahl der separaten WCs: 2, Anzahl Terrassen: 1, Lage im Wohngebiet

Weitere Services

Lust auf eine Besichtigung?
Eine Frage zur Immobilie?
Nachricht hinzufügen
Mit der Nutzung der oben angegebenen Telefonnummer oder durch Klicken auf „Kontaktieren“ akzeptierst Du die Allgemeinen Nutzungsbedingungen, denen Du jederzeit widersprechen kannst. Weitere Informationen zum Datenschutz

Über den Anbieter

Charlottenstraße 23, 70182 Stuttgart
Herr Dominik MagerDein Kontakt
Online-ID: 269JFLZ4LKHC
Referenznummer: 11230#i8hYAj
Immo-Team GmbH & Co. KG
Immo-Team GmbH & Co. KG
Bewertung: 3,7 von 5 Sternen
Nachricht hinzufügen
Mit der Nutzung der oben angegebenen Telefonnummer oder durch Klicken auf „Kontaktieren“ akzeptierst Du die Allgemeinen Nutzungsbedingungen, denen Du jederzeit widersprechen kannst. Weitere Informationen zum Datenschutz
MediumRectangleTop
MediumRectangleBottom
MediumRectangleTop
Wie zufrieden bist du mit dieser Seite (nicht mit der Immobilie selbst)?