Version: 8.25.1Navigation überspringen
1.400.000 €
872 m² Grundstück
Immowelt logo

Freizeitgrundstück zum Kauf
1400000 €
1.606 €/m²
872 m² Grundstück

Gut gelegenes Grundstück mit vollständig lizenziertem Villenprojekt, nur wenige Schritte vom Meer entfernt in Marbesa

Eine einmalige Gelegenheit: Erwerben Sie ein gut gelegenes, 872 m² großes Grundstück mit einem vollständig lizenzierten Villenprojekt, nur wenige Schritte vom Mittelmeer entfernt in Marbesa, einer der etabliertesten Strandgemeinden im Osten Marbellas.



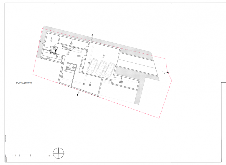
Die geplante Residenz erstreckt sich über vier Ebenen ? Haupt-, Ober-, Untergeschoss und Solarium ? und bietet eine bebaute Fläche von 295,63 m². Die durchdachte Raumaufteilung umfasst insgesamt 155,60 m², ergänzt durch großzügige Außenwohnflächen von 140,03 m². Der 547,93 m² große, angelegte Garten umfasst einen privaten Pool und Terrassen, die zum ganzjährigen Genießen einladen.



Die Villa bietet vier Schlafzimmer, alle mit eigenem Bad, sowie zwei zusätzliche Gäste-WCs. Die Hauptsuite befindet sich im Obergeschoss und bietet Zugang zu einer privaten Terrasse. Das geräumige Untergeschoss beherbergt einen Fitnessraum, einen Waschraum, einen Abstellraum und eine Doppelgarage. Das Solarium bietet einen erhöhten Blick auf die Umgebung.



Zu den Premium-Ausstattungen gehören:

? Großformatiger Porzellanboden und Naturholzlaminat im Obergeschoss

? Voll ausgestattete Designerküche mit integrierten Geräten

? Fußbodenheizung und Klimaanlage mit individueller Raumklimaregelung

? Hochleistungsdämmung und doppelt verglaste Fenster für akustischen und thermischen Komfort

? Intelligentes Automatisierungssystem für Beleuchtung, Klima- und Sicherheitsmanagement

? Landschaftsgarten mit Bewässerungs- und Beleuchtungssystem

? Photovoltaik-Solarmodule und aerothermische Anlage zur Warmwasserbereitung



Nur eine Gehminute vom Strand entfernt bietet dieses Grundstück mit Projekt Privatsphäre, architektonische Qualität und die Nähe zur Küste ? ideal für alle, die eine elegante Residenz in einer begehrten Enklave Marbellas bauen möchten.

Merkmale

  • 872 m² Grundstück

Grundrisse

Grundrisse
1 / 4

Realisiere Dein Projekt

Bausubstanz und Energie

Möchtest du Details zum Energieverbrauch?info_energy_calculation-icon
Immowelt logo

Preisdetails

Kaufpreis
1400000 €
1.605,50 €/m²
Provision für Käufer
Bitte beachte, das Angebot kann bei Vertragsabschluss die Zahlung einer Provision beinhalten. Weitere Informationen erhältst Du vom Anbieter.

Lage

address-icon
Marbella East (29600)
Der Anbieter hat die genaue Adresse nicht freigegeben

Weitere Services

Lust auf eine Besichtigung?
Eine Frage zur Immobilie?
Nachricht hinzufügen
Mit der Nutzung der oben angegebenen Telefonnummer oder durch Klicken auf „Kontaktieren“ akzeptierst Du die Allgemeinen Nutzungsbedingungen, denen Du jederzeit widersprechen kannst. Weitere Informationen zum Datenschutz

Über den Anbieter

Puerto Banus, Muelle Ribera E-1, Villa Noble, 29006 MARBELLA
partner badge
Partnerschaft
Herr Louis WittnerDein Kontakt
Online-ID: 25UDN3ESSVIJ
Referenznummer: VN032509
Villa Noble S.L.
Villa Noble S.L.
Nachricht hinzufügen
Mit der Nutzung der oben angegebenen Telefonnummer oder durch Klicken auf „Kontaktieren“ akzeptierst Du die Allgemeinen Nutzungsbedingungen, denen Du jederzeit widersprechen kannst. Weitere Informationen zum Datenschutz
Wie zufrieden bist du mit dieser Seite (nicht mit der Immobilie selbst)?