Version: 8.24.0Navigation überspringen
99.950 €
11 Zimmer  •  1 m²  •  1.639 m² Grundstück
Immowelt logo

Sonstiges zum Kauf • provisionsfrei
99950 €
11 Zimmer  •  1 m²  •  1.639 m² Grundstück

Ehemaliges Bahnhofsgebäude in Mönchhagen mit ca. 350 m² Ntzfl. wartet auf kreative Umgestaltung!

Das ca. 1890 errichtete Bahnhofsgebäude entstand im Zuge der damaligen Eröffnung der Bahnstrecke Rostock-Stralsund und erinnert bis heute von der Architektur und Bauweise dieser Zeit.
Über viele Jahrzehnte war es ein prägendes Gebäude des Ortes.

Das Haus befindet sich auf einem 1.639 m² großen Grundstück und verfügt über eine Nutzfläche von ca. 350 m².
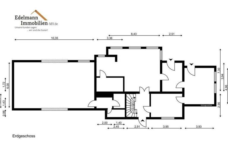
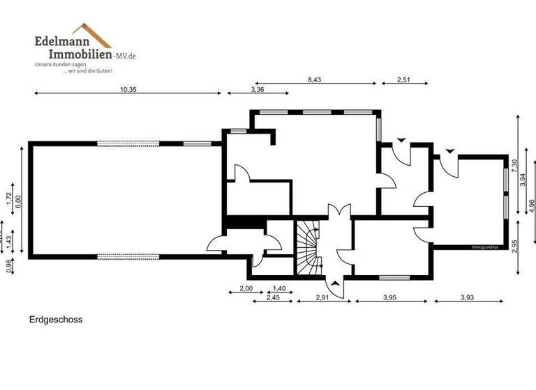
Das Hauptgebäude erstreckt sich über vier Ebenen: Teilkeller, Erdgeschoss, Obergeschoss sowie ein ausbaufähiges Dachgeschoss.
Historisch wurde das Dachgeschoss als Wohnraum für Bahnangestellte genutzt.
Die vorhandene Gebäudestruktur bietet großzügige Raumhöhen und eine großzügige Grundrissgestaltung.

Ergänzt wird das Ensemble durch den ehemaligen Güterschuppen, der später zu einer Event-Halle umfunktioniert wurde. Zusammen bilden Hauptgebäude und Nebengebäude ein markantes, in sich geschlossenes Objekt mit historischem Charakter.

Merkmale

  • Bezug: nach Vereinbarung
  • 1.639 m² Grundstück
Das denkmalgeschützte Bahnhofsgebäude verfügt über einen vorhandenen Gas- und Wasseranschluss.
Das Bahnhofsgebäude verfügt über ein Krüppelwalmdach, welches nach 1890 renoviert wurde.
Es handelt sich um ein denkmalgeschütztes Objekt.
Im Obergeschoss wurde bereits mit der Kernsanierung und Renovierung begonnen, sodass hier weiteres Ausbaupotenzial besteht.
Die Fenster wurden nachträglich durch doppelverglaste Kunststofffenster ausgetauscht.
Das Gebäude ist weiterhin teilunterkellert.

Aufgrund des Denkmalschutzes sowie der Lage und bestehenden baulichen Gegebenheiten können keine Garantien hinsichtlich Bebauungs-, Umnutzungs- oder Erweiterungsmöglichkeiten übernommen werden.
Eine zukünftige Nutzung oder bauliche Veränderung bedarf der Abstimmung mit den zuständigen Behörden.

Grundrisse

Grundrisse
1 / 3

Realisiere Dein Projekt

Bausubstanz und Energie

Der Anbieter hat keine Informationen zum Energieverbrauch bereit gestellt.
  • Baujahr1890
Immowelt logo

Preisdetails

Kaufpreis
99950 €
Provision für Käufer
provisionsfrei
Geschätzte Gesamtkosten
99.950 €1
Kaufpreis
99.950 €
1Der angezeigte Wert ist eine automatisch berechnete Schätzung von immowelt.

Lage

address-icon
Mönchhagen (18182)
Der Anbieter hat die genaue Adresse nicht freigegeben
Nur wenige Minuten östlich von Rostock, eingebettet zwischen der Ostseeküste und der weitläufigen Rostocker Heide, befindet sich die wachsende Gemeinde Mönchhagen, ein attraktiver Wohnort mit naturnahem Charakter und hervorragender Anbindung.

Das Ortsbild ist geprägt von modernen Einfamilien- und Doppelhäusern sowie gepflegten Grundstücken in ruhiger Umgebung. Dank der direkten Lage an der Bundesstraße 105 sowie der schnellen Erreichbarkeit der A 19 ist Mönchhagen insbesondere bei Berufspendlern sehr gefragt.
Die Rostocker Innenstadt lässt sich in kurzer Zeit bequem erreichen.

Die Gemeinde zählt rund 1.300 Einwohner und gehört zum Amt Rostocker Heide im Landkreis Rostock. Sie liegt verkehrsgünstig zwischen Rostock und der Bernsteinstadt Ribnitz-Damgarten und verbindet ländliche Ruhe mit stadtnaher Infrastruktur.

Einkaufsmöglichkeiten, medizinische Versorgung, Kindertagesstätten sowie Schulen bis hin zum Gymnasium befinden sich im nahegelegenen Rövershagen.
Dort sorgen zudem vielfältige Freizeit- und Sportangebote für eine hohe Lebensqualität.

Eine Regionalbahnverbindung im Ort sowie Buslinien in Richtung Rostock und Graal-Müritz gewährleisten eine gute Anbindung an den öffentlichen Nahverkehr.
Das Ostseeheilbad Graal-Müritz mit seinen breiten, feinsandigen Stränden ist mit der Bahn in weniger als zehn Minuten erreichbar.
Auch das Ostseebad Warnemünde mit Fährverbindungen nach Skandinavien sowie der Flughafen Flughafen Rostock-Laage sind jeweils in etwa 30 Minuten mit dem Auto zu erreichen.

Neben der hervorragenden Infrastruktur überzeugt Mönchhagen durch seine naturnahe Lage: Rad- und Wanderwege durch die Rostocker Heide, die Nähe zur Ostsee und zahlreiche Freizeitmöglichkeiten machen den Ort besonders für Familien und Naturliebhaber attraktiv.

Weitere Informationen

Sonstiges Sämtliche Sanierungs- und Renovierungsarbeiten wurden bei der Kaufpreisbildung berücksichtigt.

Für das hier angebotene, unter Denkmalschutz stehenden Bahnhofsgebäude besteht keine Pflicht zur Vorlage eines Energieausweises. Gemäß § 105 des Gebäudeenergiegesetzes (GEG).

Bitte haben Sie dafür Verständnis, dass unser Büro Ihre Anfrage nur bearbeiten kann, wenn folgende Daten vollständig angegeben werden:

- NAME
- WOHNANSCHRIFT
- TELEFONNUMMER
- E-MAIL ADRESSE

Alle Angaben basieren auf Informationen und Hinweisen, die wir vom Auftraggeber erhalten haben. Für deren Richtigkeit, Aktualität und Vollständigkeit können wir keine Gewähr übernehmen. Irrtümer und Zwischenverkauf bleiben vorbehalten.

Mit freundlichen Grüßen
Ihr Team von
Edelmann-Immobilien-MV Stichworte Nutzfläche: 350,00 m², Bundesland: Mecklenburg-Vorpommern

Weitere Services

Lust auf eine Besichtigung?
Eine Frage zur Immobilie?
Nachricht hinzufügen
Mit der Nutzung der oben angegebenen Telefonnummer oder durch Klicken auf „Kontaktieren“ akzeptierst Du die Allgemeinen Nutzungsbedingungen, denen Du jederzeit widersprechen kannst. Weitere Informationen zum Datenschutz

Über den Anbieter

Grubenstraße 35, 18055 Rostock
partner badge
Partnerschaft
Herr Lars Edelmann
Herr Lars EdelmannDein Kontakt
Online-ID: 2nwv75n
Referenznummer: LER1.LE.1777
Edelmann-Immobilien-MV
title
Edelmann-Immobilien-MV
Bewertung: 4,2 von 5 Sternen
Nachricht hinzufügen
Mit der Nutzung der oben angegebenen Telefonnummer oder durch Klicken auf „Kontaktieren“ akzeptierst Du die Allgemeinen Nutzungsbedingungen, denen Du jederzeit widersprechen kannst. Weitere Informationen zum Datenschutz
Wie zufrieden bist du mit dieser Seite (nicht mit der Immobilie selbst)?