

Laden zur Miete14 €/m²
14 €
/m²
Multifunktionale Shop- oder Gastroflächen in der Twin Tower Mall
Merkmale
- Bezug: ab sofort
- Erdgeschoss
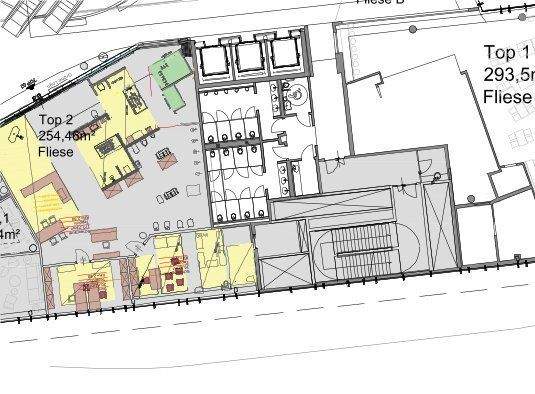
Grundrisse
Grundrisse
1 / 2
Realisiere Dein Projekt
Bausubstanz und Energie
Heizwärmebedarf (HWB)
C
Gesamtenergieeffizienz (fGEE)
B
- Baujahr2001
- Zustand der Immobilieneuwertig
Mietkosten
Gesamtmiete
6.750 €
Nettokaltmiete
14 €/m²
3.500 €
Betriebskosten
2.125 €
Umsatzsteuer
1.125 €
Provision fĂĽr Mieter
3 BMM zzgl. USt. inkl. MwSt.
Kaution
3 - 6 BMM zzgl. USt.
Weitere Preisinformationen
Nettokaltmiete: 3.500,00 EUR
Lage

Wien (1100)
Der Anbieter hat die genaue Adresse nicht freigegeben
Weitere Informationen
Weitere Services
Lust auf eine Besichtigung?
Eine Frage zur Immobilie?
Ăśber den Anbieter
Ă–RAG Immobilien Vermittlung GmbHMaklerbĂĽro
Bankgasse 1, 1010 Wien
Partnerschaft
Frau Milena IvkovicDein Kontakt
Online-ID: 2ecd45m
Referenznummer: 109240243

Ă–RAG Immobilien Vermittlung GmbH
Bewertung: 4,4 von 5 Sternen
Wie zufrieden bist du mit dieser Seite (nicht mit der Immobilie selbst)?

