
Raiffeisen Immobilien GmbH
Herr Kai Gustke
004 ···
Nr. anzeigenPreise & Kosten
Provision für Käufer
3,57
Lage
Die Wohnung befindet sich in zentraler Lage mitten in Zierenberg, einer charmanten nordhessischen Kleinstadt am Rand des Naturparks Habichtswald. Zierenberg bietet eine sehr gute Infrastruktur mit Einkaufsmöglichkeiten, Supermärkten, gastronomischen Angeboten, Ärzten, Apotheken, Schulen und Kindertagesstätten - alles bequem...
Die Wohnung
Derzeitige Nutzung
vermietet
Wohnanlage
Energie & Heizung
Warum sehe ich diese Anzeige? – Du siehst diese Anzeige basierend auf Ihrer Navigation auf unserer Website und den Suchkriterien, die du verwendet hast.
Energieausweistyp
Bedarfsausweis
Gebäudetyp
Wohngebäude
Wesentliche Energieträger
GAS
Gültigkeit
bis 27.09.2028
Effizienzklasse
F
Endenergiebedarf
191,40 kWh/(m²·a)
Weitere Energiedaten
Energieträger
Gas
Heizungsart
Zentralheizung
Details
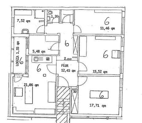
Objektbeschreibung
Die ca. 98 m² große 4,5-Zimmer-Eigentumswohnung liegt im 1. Obergeschoss eines gepflegten Mehrfamilienhauses aus dem Baujahr 1994 und um 1900. Herzstück der Wohnung ist die etwa 21 m² große Wohnküche mit direktem Zugang zur rund 6 m² großen Loggia, die einen schönen Blick auf den Dörnberg bietet. Die dreieinhalb weiteren...
Preisinformation
1 Stellplatz
Weitere Informationen
Sonstiges
HAFTUNG:
Alle Angaben zum Objekt stammen vom Eigentümer. Bei Zeichnungen gelten immer die Ausführung und die Maße vor Ort. Wir übernehmen keine Haftung für Vollständigkeit und Richtigkeit der weitergegebenen Informationen und Unterlagen. Alle Immobilienangebote sind freibleibend. Irrtümer, Zwischenverkauf oder...
Anbieter der Immobilie
Raiffeisen Immobilien GmbH
Marktplatz 6, 34225 Baunatal
Online-ID: 2nmaq58
Referenznummer: 34289MS39R
Finde Angebote wie dieses
Hier geht es zu unserem Impressum, den Allgemeinen Geschäftsbedingungen, den Hinweisen zum Datenschutz und nutzungsbasierter Online-Werbung.