Version: 8.24.0Navigation überspringen
468.000 €
6,5 Zimmer  •  148 m²  •  781 m² Grundstück
Immowelt logo

Einfamilienhaus zum Kauf
468000 €
3.162 €/m²
6,5 Zimmer  •  148 m²  •  781 m² Grundstück

Gemütliches Eigenheim mit großem Carport. Wintergarten inklusive tollem Ausblick.

Zum Verkauf gelangt dieses charmante Haus im Herzen von Möllbrücke. Auf einer Wohnfläche von über 140m² bietet das Objekt genügend Platz um Ihren Wünschen und Bedürfnissen nachzukommen. Ein Highlight der Liegenschaft sind definitiv die beiden Wintergärten (einmal direkt dem Haus zugehörig, sowie ein zweiter Wintergarten, als Zubau zum Carport, mit wunderschöner Fernsicht). Für entspannende Momente sorgen zudem eine eigene Sauna im Keller als auch ein Wellnessbereich im Erdgeschoss.

Ein eigener Zugang zum Obergeschoss ermöglicht es, das Haus in zwei separate Einheiten zu unterteilen - ideal für 2 Familien, aber auch zur Vermietung geeignet, oder eben Platz für die Verwandtschaft. 

Das Grundstück, mit über 700m² Fläche, sowie die erst 2018 renovierte Gartenhütte, bieten genügend und Platz und Möglichkeiten um sich vollends zu entfalten.

Highlights der Liegenschaft:

* 2 x Wintergarten.
* Specksteinofen im Wohn-Esszimmer.
* Doppelcarport mit über 60m² an Fläche (zusätzlicher Stauraum für Werkzeug und Gerätschaften).
* Sauna im Keller.
* Wellnessbereich im Erdgeschoß.
* Tolle Aussicht über Möllbrücke bis hin in die Ferne Richtung Lendorf / Spittal.
* Möglichkeit einer separaten Einliegerwohnung im OG (eigener Eingang vorhanden).

Alle vier Jahreszeiten offerieren in der Region um Spittal an der Drau und den Millstätter See unzählige Möglichkeiten für Sport und Freizeit - je nach Wunsch lässt es sich wandern oder schwimmen, angeln, skifahren oder radeln. Ergänzt wird diese Vielfalt dank einer umfassenden Infrastruktur: Ob Supermarkt oder Schule, Apotheke oder Restaurant, Arzt oder Bus - es ist alles innerhalb weniger Minuten erreichbar, das Zentrum von Möllbrücke ist quasi um die Ecke.

Flughäfen: Klagenfurt: ca. 50 Minuten; Laibach: ca. 1 Stunde; Salzburg ca. 2 Stunden; Venedig und München: ca. 3 Stunden; Wien: ca. 4 Stunden.

Slowenien und Italien sind ca. einer Stunde erreichbar. 

Haben wir Ihr Interesse geweckt? Eine Besichtigung ist es wert, um diese einmalige Gelegenheit nicht zu verpassen.

Vom Wohnraum zum Lebensraum - Haus kaufen in Möllbrücke.

Der Vermittler ist als Doppelmakler tätig.

Infrastruktur / Entfernungen

Gesundheit
Apotheke <500m

Kinder & Schulen
Schule <1.000m
Höhere Schule <2.000m
Kindergarten <8.000m

Nahversorgung
Supermarkt <500m
Bäckerei <8.000m

Sonstige
Bank <500m
Geldautomat <500m
Post <500m
Polizei <500m

Verkehr
Bus <500m
Autobahnanschluss <8.500m
Bahnhof <1.000m
Flughafen <10.000m

Angaben Entfernung Luftlinie / Quelle: OpenStreetMap

Merkmale

  • Bezug: nach Absprache
  • 781 m² Grundstück
  • Einbauküche, offene Küche
  • 2 Stellplätze: 2 Außen-Stellplätze
  • Terrasse

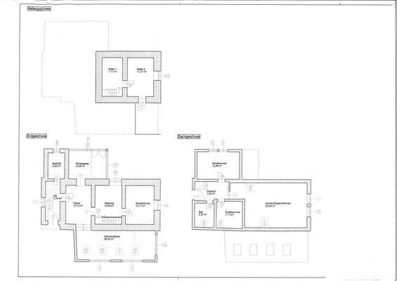
Grundrisse

Grundrisse
1 / 2

Realisiere Dein Projekt

Bausubstanz und Energie

Heizwärmebedarf (HWB)

D

Gesamtenergieeffizienz (fGEE)

C
  • Baujahr1950
  • Zustand der ImmobilieNeubau, Massivhaus, Gepflegt
  • HeizungsartZentralheizung
  • EnergieträgerGas, Holz
Immowelt logo

Preisdetails

Kaufpreis
468000 €
3.162,16 €/m²
Provision für Käufer
3% des Kaufpreises zzgl. 20% USt.
Weitere Preisinformationen

zuzüglich Kosten Errichtung Notarvertrag, 2 Stellplätze

Lage

address-icon
Möllbrücke (9813)
Möllbrücke;
Spittal an der Drau;
Millstätter See;
Oberkärnten;

Weitere Informationen

Stichworte Carport vorhanden, Stellplatz vorhanden, Nord-Ost-Balkon/Terrasse, Anzahl der Badezimmer: 2, Anzahl der separaten WCs: 2, Anzahl Terrassen: 1, Kellerfläche: 18,00 m², Bundesland: Kärnten, 2 Etagen, modernisiert: 2013 Wellness: Wellnessbereich

Weitere Services

Lust auf eine Besichtigung?
Eine Frage zur Immobilie?
Nachricht hinzufügen
Mit der Nutzung der oben angegebenen Telefonnummer oder durch Klicken auf „Kontaktieren“ akzeptierst Du die Allgemeinen Nutzungsbedingungen, denen Du jederzeit widersprechen kannst. Weitere Informationen zum Datenschutz

Über den Anbieter

Hauptstraße 52, 9871 SEEBODEN
partner badge
3 Jahre Partnerschaft
Herr Patrick SchmölzerDein Kontakt
Online-ID: 2en5q5g
Referenznummer: OBGC2024051510135629115276dbe3d
lebensraum immobilien e.U.
Bewertung: 4,4 von 5 Sternen
Nachricht hinzufügen
Mit der Nutzung der oben angegebenen Telefonnummer oder durch Klicken auf „Kontaktieren“ akzeptierst Du die Allgemeinen Nutzungsbedingungen, denen Du jederzeit widersprechen kannst. Weitere Informationen zum Datenschutz
Wie zufrieden bist du mit dieser Seite (nicht mit der Immobilie selbst)?