

TWE-Immobilien Thomas Erthle e. K.
Herr Dragomir Draganov
+49 ···
Nr. anzeigenPreise & Kosten
Kaution
2400
Provision für Mieter
provisionsfrei
Warum sehe ich diese Anzeige? – Du siehst diese Anzeige basierend auf Ihrer Navigation auf unserer Website und den Suchkriterien, die du verwendet hast.
Lage
Mitten im Herzen von Fritzlar gelegen, bietet die Wohnung eine unschlagbare Lage. Direkt vor der Haustür finden Sie charmante Cafés, Restaurants, und vielfältige Einkaufsmöglichkeiten, während der historische Stadtkern eine einzigartige Atmosphäre vermittelt. Schulen, Ärzte und öffentliche Verkehrsmittel sind bequem zu Fuß...
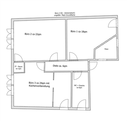
Büro-/Praxisfläche
Kategorie
Bürofläche
Baujahr
1700
Derzeitige Nutzung
frei
Energie & Heizung
Warum sehe ich diese Anzeige? – Du siehst diese Anzeige basierend auf Ihrer Navigation auf unserer Website und den Suchkriterien, die du verwendet hast.
Energieausweis: für diesen Gebäudetyp nicht notwendig
Weitere Energiedaten
Energieträger
Gas
Heizungsart
Zentralheizung
Details
Objektbeschreibung
Diese wunderschöne Altbauwohnung für Gewerbemieter (Denkmalschutz) bietet den perfekten Mix aus historischem Charme und modernem Komfort. Die Wohnung überzeugt durch großzügige, helle Räume und einem fantastischen Ausblick über die Dächer von Fritzlar. Besonders attraktiv ist das neu renovierte Badezimmer mit hochwertiger...
Ausstattung
- heller, großzügiger Wohnraum
- modernisiertes Badezimmer mit Dusche und Fenster
- neue, hochwertige Fenster
- Altbau-Charme mit hohen Decken
- Parkettboden in den Wohnräumen
- Zentralheizung
- Kellerraum zur Verfügung
Preisinformation
1 Stellplatz
Weitere Informationen
Sonstiges
Die Wohnung steht ab sofort zur Verfügung.
Haben wir Ihr Interesse geweckt? Zögern Sie nicht, uns für eine Besichtigung zu kontaktieren. Wir freuen uns, Ihnen dieses besondere Objekt persönlich zu zeigen.
Wir sind der allein beauftragte Makler und freuen uns auf Sie und Ihre Anfrage.
Wir...
Anbieter der Immobilie

Online-ID: 2gqhs5g
Referenznummer: 2374 (1/2374)
Finde Angebote wie dieses
Hier geht es zu unserem Impressum, den Allgemeinen Geschäftsbedingungen, den Hinweisen zum Datenschutz und nutzungsbasierter Online-Werbung.