

Haimerl Immobilien GmbH
Herr Peter Haimerl
017 ···
Nr. anzeigenPreise & Kosten
Provision für Käufer
3,57% inkl. MwSt.. Die Provision berechnet sich aus dem notariell beurkundeten Kaufpreis.
Lage
- Zentrumsnah und verkehrsgünstig angebunden
- Die Wohnung liegt in einer sehr ruhigen Umgebung
- Geschäfte des täglichen Bedarfs sind in unmittelbarer Nähe
Die Wohnung
Wohnungslage
1. Geschoss
Bezug
sofort
Derzeitige Nutzung
frei
Wohnanlage
Energie & Heizung
Warum sehe ich diese Anzeige? – Du siehst diese Anzeige basierend auf Ihrer Navigation auf unserer Website und den Suchkriterien, die du verwendet hast.
Energieausweistyp
Bedarfsausweis
Gebäudetyp
Wohngebäude
Baujahr laut Energieausweis
2021
Wesentliche Energieträger
Holzpellets/Gasbrennwert
Gültigkeit
20.04.2022 bis 19.04.2032
Effizienzklasse
B
Endenergiebedarf
62,90 kWh/(m²·a)
Weitere Energiedaten
Energieträger
Gas, Pellets
Haustyp
KfW 55
Heizungsart
Fußbodenheizung, Zentralheizung
Details
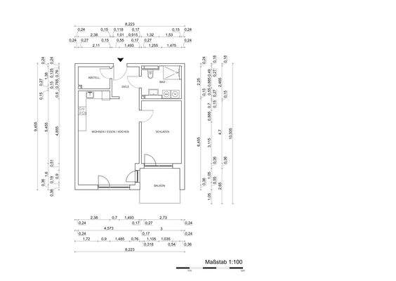
Objektbeschreibung
Objektbeschreibung
- Hochwertige Neubauwohnung mit Küche und Tiefgaragenstellplatz
- Massivbauweise
- Moderner Baustil
- Bad inkl. Dusche und WC
- Inkl. Balkon (Zugang vom Wohnzimmer und Schlafzimmer)
- Pelletsheizung und Gasheizung zur Spitzenlastabdeckung kombiniert
- Wohnraumlüftung inkl...
Weitere Informationen
Besichtigungstermine
können gerne telefonisch unter 0174-9553970 vereinbart werden.
Rechtshinweis:
Da wir Objektangaben nicht selbst ermitteln, übernehmen wir hierfür keine Gewähr. Dieses Exposé ist nur für Sie persönlich bestimmt. Eine Weitergabe an Dritte ist an unsere ausdrückliche Zustimmung gebunden und...
Anbieter der Immobilie
Haimerl Immobilien GmbH
Lindenstraße 11, 94348 Atting

Online-ID: 2hkzc5v
Finde Angebote wie dieses
Hier geht es zu unserem Impressum, den Allgemeinen Geschäftsbedingungen, den Hinweisen zum Datenschutz und nutzungsbasierter Online-Werbung.