
Plümacher Immobilien GmbH
Dirk Plümacher
049 ···
Nr. anzeigenPreise & Kosten
Provision für Käufer
4,76 %
Der Käufer zahlt im Erfolgsfall an die Plümacher Immobilien GmbH die Provision des beurkundeten Kaufpreises.
Lage
Willich: Eine Stadt am Niederrhein im Westen von Nordrhein-Westfalen. Hier befindet sich eines der größten Gewerbegebiete Europas. Auf einer Fläche von ca. 176 Hektar haben sich hier seit Entstehung mehrere hundert Betriebe aus vielen Nationen mit tausenden von Beschäftigten angesiedelt. Hier agieren mittelständische...
Gastronomie/Hotel
Kategorie
Café/Bar
Baujahr
1990
Energie & Heizung
Warum sehe ich diese Anzeige? – Du siehst diese Anzeige basierend auf Ihrer Navigation auf unserer Website und den Suchkriterien, die du verwendet hast.
Weitere Energiedaten
Energieträger
Gas
Details
Objektbeschreibung
Dieses Objekt ist zeitlos und praktisch, sowie praktikabel renoviert und genial konzipiert.
Mit den insgesamt zehn bis zwölf möglichen Schlafzimmern, diversen Duschbereichen, Saunabereich mit Ruheraum und mehreren Loungebereichen ist das Objekt ideal als Saunaclub/Bordell nutzbar, aber auch für diverse andere Konzepte...
Ausstattung
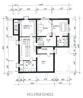
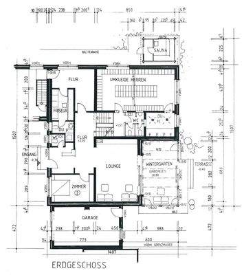
Sie finden hier auf mehreren Ebenen eine Nutzfläche von ca. 1.000 Quadratmetern:
Erdgeschoss vorne : 227 m²
Obergeschoss vorne: 194 m²
Kellergeschoss hinten: 151 m²
Erdgeschoss hinten: 155 m²
Außensauna: 7,5 m²
Garage: 28 m²
Beherbergung OG: 275 m²
Auf jeder Ebene befinden sich Sanitärbereiche...
Preisinformation
18 Stellplätze
Weitere Informationen
Energiepass
Energieausweis wird bei Besichtigung vorgelegt.
Stichworte
Nutzfläche: 1.000,00 m², Gesamtfläche: 1.000,00 m², Bundesland: Nordrhein-Westfalen
Anbieter der Immobilie
Online-ID: 2j5rh5h
Referenznummer: 432
Finde Angebote wie dieses
Hier geht es zu unserem Impressum, den Allgemeinen Geschäftsbedingungen, den Hinweisen zum Datenschutz und nutzungsbasierter Online-Werbung.