
Dück Immobilien
Frau Petra Herud
004 ···
Nr. anzeigenPreise & Kosten
Provision für Mieter
Bitte beachte, das Angebot kann bei Vertragsabschluss die Zahlung einer Provision beinhalten. Weitere Informationen erhältst Du vom Anbieter.
Warum sehe ich diese Anzeige? – Du siehst diese Anzeige basierend auf Ihrer Navigation auf unserer Website und den Suchkriterien, die du verwendet hast.
Lage
Die Lage im Gewerbegebiet in Eitra in Hauneck bietet Ihnen optimale Vorraussetzungen für eine erfolgreiche Geschäftstätigkeit in einer attraktiven gut angebundenen Umgebung. in 10 Minuten Autofahrt sind Sie in Bad Hersfeld. Mit einer guten Autobahnanbindung. Fulda erreichen Sie in ca. 40 Minuten Autofahrt.
Des weiteren...
Büro-/Praxisfläche
Kategorie
Bürogebäude
Bezug
sofort
Details
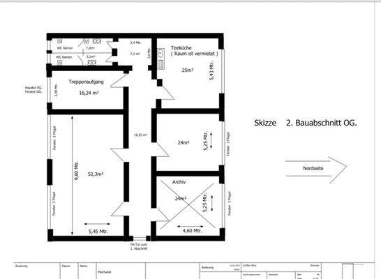
Objektbeschreibung
Diese helle freundliche Gewerbefläche befindet sich im Obergeschoss und bietet vielfältige Nutzungsmöglichkeiten, ideal für ein Büro, Praxis, Krankengymnastik oder andere therapeutische und gewerbliche Zwecke.
Der Zugang zu den Büro oder Praxisflächen erfolgt über eine Treppe, was eine klare Trennung von Eingangsbereich...
Ausstattung
-Heizkörper Öl
-Thermofenster 2-fach-Verglasung
-Linoleum Fußbodenbelag
-Parkplätze
-sep. Eingang
Weitere Informationen
Sonstiges
Die vorgenannten Angaben sollen dazu dienen, Ihnen eine Übersicht über die wesentlichen Rahmenbedingungen des
Objekts zu geben.
Gerne stehen wir Ihnen für Fragen jederzeit zur Verfügung.
Unser Angebot wurde von uns aufgrund von Angaben und Unterlagen Dritter, insbesondere des Verkäufers...
Anbieter der Immobilie
Dück Immobilien
Eichhofstr. 1, 36251 Bad Hersfeld
Online-ID: 2j9s85y
Referenznummer: 372
Finde Angebote wie dieses
Hier geht es zu unserem Impressum, den Allgemeinen Geschäftsbedingungen, den Hinweisen zum Datenschutz und nutzungsbasierter Online-Werbung.