
Schottleitner GesmbH
004 ···
Nr. anzeigenPreise & Kosten
Kaution
6.500,00 €
Provision für Mieter
3 bzw. lt. § 12 Abs. 2 gemäß IMVO bis zu 6 Bruttomonatsmieten zzgl. 20 % USt.
Warum sehe ich diese Anzeige? – Du siehst diese Anzeige basierend auf Ihrer Navigation auf unserer Website und den Suchkriterien, die du verwendet hast.
Die Ladenfläche
Bezug
ab sofort / nach Vereinbarung
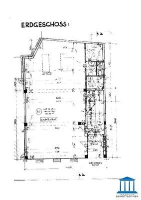
Erdgeschoss
Details
Objektbeschreibung
Obj. Nr. 2170 - 360° Rundgang auf ANFRAGE (wird via Exposé übermittelt)
Im Wiener Neustädter Zentrum, in stark frequentierter Lage, befindet sich ein ca. 150 m² großes Geschäftslokal mit neuem Auslagenportal zur Vermietung.
Die Räumlichkeiten sind barrierefrei zugänglich, verfügen über eine große...
Preisinformation
Mietvertragserrichtung: je nach Tarif des jeweiligen Vertragserrichters
Alle Preise sind zzgl. MWST., Nettokaltmiete: 1.280,00 EUR
Weitere Informationen
Stichworte
Nutzfläche: 150,00 m², Anzahl der separaten WCs: 1, Bundesland: Niederösterreich
Anbieter der Immobilie
Online-ID: 2jbtz54
Referenznummer: OBGC2023090615480333879b584259b
Finde Angebote wie dieses
Hier geht es zu unserem Impressum, den Allgemeinen Geschäftsbedingungen, den Hinweisen zum Datenschutz und nutzungsbasierter Online-Werbung.