
Rudi Dräxler Immobilientreuhand GesmbH
Frau Elisabeth Greutter
+43 ···
Nr. anzeigenPreise & Kosten
Provision für Käufer
3% des Kaufpreises zzgl. 20% USt.
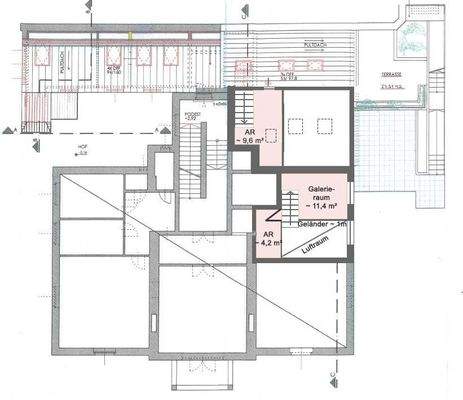
Die Wohnung
Kategorie
Maisonette
Wohnungslage
1. Geschoss
Bezug
n.V.
Wohnanlage
Energie & Heizung
Warum sehe ich diese Anzeige? – Du siehst diese Anzeige basierend auf Ihrer Navigation auf unserer Website und den Suchkriterien, die du verwendet hast.
Heizwärmebedarf (HWB)
112,00 kWh/(m²·a)
Gesamtenergieeffizienz (fGEE)
1,11
Weitere Energiedaten
Energieträger
Gas
Heizungsart
Etagenheizung, Fußbodenheizung, offener Kamin
Details
Objektbeschreibung
Die sehr edle, stilvolle Villa wurde um die Jahrhundertwende erbaut und ist heute in sechs Wohneinheiten aufgeteilt.
Die Liegenschaft liegt direkt am Waldrand in einer ruhigen Sackgasse und bietet einen Traumausblick auf die grüne Umgebung.
Die öffentliche Anbindung ist hervorragend. Die nächste...
Weitere Informationen
Stichworte
Süd-Balkon/Terrasse, Fahrradraum, Anzahl der Badezimmer: 1, Anzahl der separaten WCs: 1, Anzahl Terrassen: 1, Balkon-Terrassen-Fläche: 27,00 m², Gartenfläche: 173,00 m², Bundesland: Wien, 3 Etagen, modernisiert: 2022
Anbieter der Immobilie
Online-ID: 2jcwa5v
Referenznummer: OBGC202504290905306642cfb05ead7
Finde Angebote wie dieses
Günstige Immobilienfinanzierung einfach online berechnen
Persönliches Angebot berechnenWarum sehe ich diese Werbung? – Du siehst diese Werbung basierend auf Deiner Navigation auf unserer Website und der von Dir verwendeten Suchkriterien.
Diese Werbung wird bezahlt von durchblicker
Werbung melden
Hier geht es zu unserem Impressum, den Allgemeinen Geschäftsbedingungen, den Hinweisen zum Datenschutz und nutzungsbasierter Online-Werbung.