

Thomas Geiger Immobilien
Herr Thomas Geiger
074 ···
Nr. anzeigenDieses Angebot ist Teil des Neubauprojekts
Villa Schönblick
Preise & Kosten
Provision für Käufer
Bitte beachte, das Angebot kann bei Vertragsabschluss die Zahlung einer Provision beinhalten. Weitere Informationen erhältst Du vom Anbieter.
Die Wohnung
Kategorie
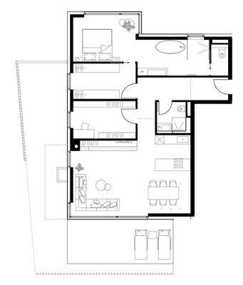
Terrassenwohnung
Wohnungslage
Erdgeschoss
Bezug
2027
Wohnanlage
Das Neubauprojekt
Energie & Heizung
Warum sehe ich diese Anzeige? – Du siehst diese Anzeige basierend auf Ihrer Navigation auf unserer Website und den Suchkriterien, die du verwendet hast.
Weitere Energiedaten
Haustyp
KfW 55
Heizungsart
Fußbodenheizung, Luft-/Wasser-Wärmepumpe, offener Kamin
Details
Objektbeschreibung
Barrierefrei mit großem Garten
Ein gut durchdachter, sehr großzügiger Grundriss, die sonnige Süd-West-Ausrichtung und ein nahezu 73 m² großer Privatgarten mit Terrasse zeichnen dieses exklusive 4,5-Zimmer-Domizil aus. Das in sich geschlossene Entrée gliedert den Wohn- und den Schlaftrakt auf angenehme Weise und bietet...
Ausstattung
Variante Ausstattung Luxus
Wohnkomfort
•Hochwertige Parkettböden und Teppiche
•Fußbodenheizung und Fußbodenkühlung
•Exklusive Bäder mit hochwertigen Fliesen
Architektur und Wohnraum
•Raumhohe Fenster mit 3-fach-Verglasung
•Elektrisch gesteuerte Raffstores als Sonnenschutz und zur...
Weitere Informationen
Stichworte
Zustand: Erstbezug, gepflegt
Versorgung: Städtische Wasserversorgung, Städtische Stromversorgung
Sonstiges: Neubaustandard
Dokumente
Anbieter der Immobilie
Thomas Geiger Immobilien
Weiherstr. 28, 72406 Thanheim

Online-ID: 2jexr52
Finde Angebote wie dieses
Hier geht es zu unserem Impressum, den Allgemeinen Geschäftsbedingungen, den Hinweisen zum Datenschutz und nutzungsbasierter Online-Werbung.