

Thomas Geiger Immobilien
Herr Thomas Geiger
074 ···
Nr. anzeigenDieses Angebot ist Teil des Neubauprojekts
Villa Schönblick
Preise & Kosten
Provision für Käufer
Bitte beachte, das Angebot kann bei Vertragsabschluss die Zahlung einer Provision beinhalten. Weitere Informationen erhältst Du vom Anbieter.
Die Wohnung
Wohnungslage
2. Geschoss (Erdgeschoss)
Bezug
2026
Wohnanlage
Das Neubauprojekt
Energie & Heizung
Warum sehe ich diese Anzeige? – Du siehst diese Anzeige basierend auf Ihrer Navigation auf unserer Website und den Suchkriterien, die du verwendet hast.
Weitere Energiedaten
Energieträger
Solar
Haustyp
KfW 55
Heizungsart
Fußbodenheizung, Luft-/Wasser-Wärmepumpe, offener Kamin
Details
Objektbeschreibung
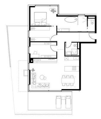
Ein gut durchdachter, sehr großzügiger Grundriss, die sonnige Süd-Ost-Ausrichtung und ein nahezu 70 m² großer Privatgarten mit Terrasse zeichnen dieses exklusive 3,5-Zimmer-Domizil aus. Das in sich geschlossene Entrée gliedert den Wohn- und den Schlaftrakt auf angenehme Weise und bietet Garderobenmöglichkeiten sowie ein...
Ausstattung
Die Gartenwohnung Exklusive ist eine Alternative zu der Gartenwohnung Luxus.
Sehr luxuriös ausgestattet mit allen Vorzügen innerhalb und außerhalb der Wohnung.
Variante Exklusive
Wohnkomfort
•Hochwertige Parkettböden und Teppiche der Luxusklasse
•Fußbodenheizung und Fußbodenkühlung
•Exklusive...
Weitere Informationen
Stichworte
Zustand: Erstbezug, gepflegt
Sonstiges/Wohnen: seniorengerechtes Wohnen
Versorgung: Städtische Wasserversorgung, Städtische Stromversorgung
Serviceleistungen: Hausmeister
Sonstiges: Neubaustandard
Dokumente
Anbieter der Immobilie
Thomas Geiger Immobilien
Weiherstr. 28, 72406 Thanheim

Online-ID: 2jxku52
Finde Angebote wie dieses
Hier geht es zu unserem Impressum, den Allgemeinen Geschäftsbedingungen, den Hinweisen zum Datenschutz und nutzungsbasierter Online-Werbung.