

Sparkasse Forchheim in Vertretung der Sparkassen-Immobilien-Vermittlungs-GmbH
Herr Niki Thäter
091 ···
Nr. anzeigenPreise & Kosten
Provision für Käufer
3,57 % inkl. MwSt.
Lage
Der Luftkurort Gößweinstein liegt in malerischer Umgebung hoch über dem Wiesenttal. Fachwerkgeschmückte Giebel, aufgelockerte Mischwälder, steile Felsgestalten und die romantische Burg haben seit Jahrhunderten Besucher und Wallfahrer aus aller Welt angelockt. Gößweinstein mit seiner weit über die Grenzen bekannten Basilika...
Das Haus
Kategorie
Einfamilienhaus
Baujahr
1920
Energie & Heizung
Warum sehe ich diese Anzeige? – Du siehst diese Anzeige basierend auf Ihrer Navigation auf unserer Website und den Suchkriterien, die du verwendet hast.
Energieausweistyp
Bedarfsausweis
Gebäudetyp
Wohngebäude
Baujahr laut Energieausweis
1920
Wesentliche Energieträger
Öl
Gültigkeit
09.05.2024 bis 08.05.2034
Effizienzklasse
G
Endenergiebedarf
206,10 kWh/(m²·a)
Weitere Energiedaten
Haustyp
Massivhaus
Energieträger
Öl
Details
Objektbeschreibung
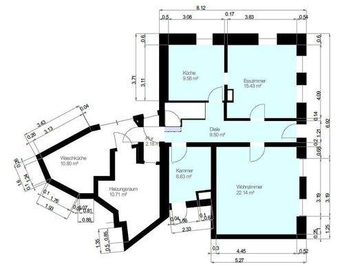
Im Jahre 1920 wurde dieses Haus ursprünglich gebaut, dann durch An- und Umbauten erweitert. Mit rund 160 m² Wohnfläche und weiteren 309 m² Nutzfläche (zum Großteil nicht ausgebaute Räume/Zimmer die als Wohnräume genutzt werden können), bietet es viele Varianten zur künftigen Nutzung.
Aktuell sind im Erdgeschoss die...
Ausstattung
Kachelofen: ja
Einbauküche: ja
Zustand Bad - Qualität: baujahrtypisch
Zustand Elektroanlage: baujahrtypisch
Dachausbau möglich: ja, Ausbaureserve vorhanden
Zustand Dach: gut
Wärmedämmung vorhanden: nein
kleiner Gewölbekeller
Kachelofen/Küchenherd im EG
kleiner Garten
Weitere Informationen
Stichworte
Garage vorhanden, Nutzfläche: 309,00 m², Bundesland: Bayern
Anbieter der Immobilie
Sparkasse Forchheim in Vertretung der Sparkassen-Immobilien-Vermittlungs-GmbH
Klosterstr. 14, 91301 Forchheim

Online-ID: 2jmby5t
Referenznummer: 1/20/214-214/010552
Finde Angebote wie dieses
Hier geht es zu unserem Impressum, den Allgemeinen Geschäftsbedingungen, den Hinweisen zum Datenschutz und nutzungsbasierter Online-Werbung.