Version: 8.24.1Navigation überspringen
949.000 €
3.957 m² Grundstück
Immowelt logo

Haus zum Kauf
949000 €
3.957 m² Grundstück

Idyllisch wohnen mit Weitblick - großzügiges Wohnhaus auf großem Grund mit Baulandreserve in Toplage am Waldrand

GRUNDSTÜCKSGRÖSSE: 3.957 m²    NUTZFLÄCHE: ca. 250 m²   BAUJAHR:  1994

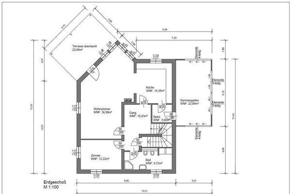
ERDGESCHOSS: Vorraum, möblierte Küche mit Durchgang in den verglasten Sommergarten, großes Wohnzimmer mit Kachelofen und Ausgang auf die überdachte Terrasse, Büro, Bad, WC;

DACHGESCHOSS: Galerie, 2 Kinderzimmer mit Balkon, Schlafzimmer, Schrankraum, Bad, WC;

KELLER: großer Vorraum, ca. 28 m² großer beheizter Raum mit Tageslicht, Fitnessraum, WC, Lager, Heizraum, Garage;

HEIZUNG: Gaszentralheizung und Kachelofen HWB: 81,3 kwh/m²a          fGEE: 1,01

Diese außergewöhnliche Liegenschaft am Waldrand von Bad Sauerbrunn bietet direkten Zugang zum angrenzenden Wald, einen atemberaubenden Fernblick, ein hohes Maß an Privatsphäre und dennoch Zentrumsnähe.

Das Haus wurde in den letzten Jahren umfassend modernisiert und aufgewertet: neue Sanitärräume, eine moderne Fassadengestaltung, neue Garagentore, eine Terrassenüberdachung mit elektrischer Beschattung sowie ein verglaster Sommergarten sorgen für ein besonderes Wohnambiente. Zudem sorgt eine Photovoltaikanlage mit einem 15kWh Speicher für nachhaltige Energieversorgung.

Der ca. 28 m² große beheizte Kellerraum mit Tageslicht bietet vielfältige Nutzungsmöglichkeiten - ob als Therapie- / Praxisbereich oder zusätzlicher Wohnraum. Ein weiterer beheizter, ca. 20 m² großer Raum kann für Hobby, Fitness, Sauna (Wasseranschluss für Dusche vorhanden) etc. genutzt werden.

Abgerundet wir dieses attraktive Angebot, durch einen aufwendig, aber zugleich pflegeleicht angelegten Garten inklusive Rasenroboter und durch 2 Garagen

KAUFPREIS: € 949.000,--

Der Vermittler ist als Doppelmakler tätig.

Infrastruktur / Entfernungen

Gesundheit
Arzt <1.000m
Apotheke <750m
Klinik <750m
Krankenhaus <6.750m

Kinder & Schulen
Schule <750m
Kindergarten <750m
Universität <8.750m
Höhere Schule <6.500m

Nahversorgung
Supermarkt <1.000m
Bäckerei <750m
Einkaufszentrum <3.750m

Sonstige
Bank <1.000m
Geldautomat <750m
Post <3.750m
Polizei <3.000m

Verkehr
Bus <500m
Autobahnanschluss <1.000m
Bahnhof <750m
Flughafen <8.750m

Angaben Entfernung Luftlinie / Quelle: OpenStreetMap

Merkmale

  • 3.957 m² Grundstück
  • offener Kamin

Grundrisse

Grundrisse
1 / 3

Realisiere Dein Projekt

Bausubstanz und Energie

Heizwärmebedarf (HWB)

C

Gesamtenergieeffizienz (fGEE)

C
  • HeizungsartZentralheizung
  • EnergieträgerGas, Holz
Immowelt logo

Preisdetails

Kaufpreis
949000 €
Provision für Käufer
3% des Kaufpreises zzgl. 20% USt.

Lage

address-icon
WaldgasseBad Sauerbrunn (7202)

Weitere Informationen

Stichworte Nutzfläche: 250,00 m², Bundesland: Burgenland

Weitere Services

Lust auf eine Besichtigung?
Eine Frage zur Immobilie?
Nachricht hinzufügen
Mit der Nutzung der oben angegebenen Telefonnummer oder durch Klicken auf „Kontaktieren“ akzeptierst Du die Allgemeinen Nutzungsbedingungen, denen Du jederzeit widersprechen kannst. Weitere Informationen zum Datenschutz

Über den Anbieter

Schubertallee 12, 7202 BAD SAUERBRUNN
partner badge
Partnerschaft
Immobilien PermoserDein Kontakt
Online-ID: 2jp5y52
Referenznummer: OBGC2025021013581356937a9a7d977
Immobilien Permoser Gesellschaft m.b.H.
Bewertung: 5 von 5 Sternen
Nachricht hinzufügen
Mit der Nutzung der oben angegebenen Telefonnummer oder durch Klicken auf „Kontaktieren“ akzeptierst Du die Allgemeinen Nutzungsbedingungen, denen Du jederzeit widersprechen kannst. Weitere Informationen zum Datenschutz
Wie zufrieden bist du mit dieser Seite (nicht mit der Immobilie selbst)?