
MAURI HOME GmbH
Herr Olaf Maurischat
017 ···
Nr. anzeigenPreise & Kosten
Provision für Käufer
3,57% inkl. MwSt.
Abschreibung/Anlage
Denkmalschutz-Afa
Lage
Röthenbach an der Pegnitz, eine charmante Stadt im Landkreis Nürnberger Land, bietet eine ideale Kombination aus städtischer Infrastruktur und naturnaher Umgebung. Die Stadt liegt etwa 15 Kilometer östlich von Nürnberg und ist durch ihre gute Verkehrsanbindung, sowohl mit dem Auto als auch mit öffentlichen Verkehrsmitteln...
Die Wohnung
Wohnungslage
1. Geschoss
Bezug
sofort
Wohnanlage
Energie & Heizung
Warum sehe ich diese Anzeige? – Du siehst diese Anzeige basierend auf Ihrer Navigation auf unserer Website und den Suchkriterien, die du verwendet hast.
Energieausweistyp
Verbrauchsausweis
Gebäudetyp
Wohngebäude
Baujahr laut Energieausweis
2005
Wesentliche Energieträger
Erdgas H
Gültigkeit
14.01.2025 bis 13.01.2035
Effizienzklasse
D
Endenergieverbrauch
125,00 kWh/(m²·a)
Weitere Energiedaten
Energieträger
Gas
Heizungsart
Zentralheizung
Details
Objektbeschreibung
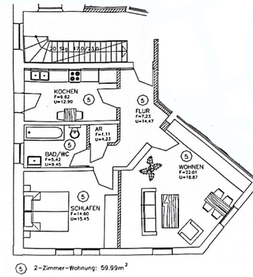
Diese gepflegte Eigentumswohnung in einem denkmalgeschützten Altbau aus dem Jahr 1903 bietet auf einer Wohnfläche von 60 m² ein durchdachtes Raumkonzept: Zwei helle Zimmer, ein Badezimmer mit Fenster und Badewanne sowie ein Abstellraum und Küche.
Der Wohnbereich überzeugt durch helles Laminat, während das Badezimmer...
Ausstattung
Die Wohnung wurde mit Laminatböden ausgestattet. Elektro- und Wasserleitungen wurden 2004 erneuert. Auch die alten Fenster wurden 2004 durch hochwertige, doppeltverglaste Fenster ersetzt.
Weitere Informationen
Sonstiges
Provision
3,57 % Käuferprovision inkl. MwSt. des beurkundeten Kaufpreises, verdient und fällig mit Beurkundung des notariellen Kaufvertrages.
Bestichtigungstermine:
Nach Zusendung Ihrer vollständigen Kontaktdaten können Besichtigungstermine zeitnah vereinbart werden.
Alle Angaben beruhen auf...
Dokumente
Anbieter der Immobilie
MAURI HOME GmbH
Reichswaldstr. 19, 90607 Rückersdorf
Online-ID: 2k62u5p
Referenznummer: 02
Finde Angebote wie dieses
Weitere Immobilien
Hier geht es zu unserem Impressum, den Allgemeinen Geschäftsbedingungen, den Hinweisen zum Datenschutz und nutzungsbasierter Online-Werbung.