
Zefi Immobilien GmbH
Herr Mike Rettkowski
053 ···
Nr. anzeigenPreise & Kosten
zzgl. Betriebskosten
Kaution
3 Bruttomonatsmieten
Provision für Mieter
27.211,46 € inkl. 20% USt.
Warum sehe ich diese Anzeige? – Du siehst diese Anzeige basierend auf Ihrer Navigation auf unserer Website und den Suchkriterien, die du verwendet hast.
Lage
Die Gemeinde Waidring bietet eine ausgezeichnete Verkehrsanbindung, sowohl auf der Straße als auch im Schienenverkehr. Die B178, die Loferer Straße, verbindet Waidring mit wichtigen Städten wie Salzburg (ca. 50 km) und Kitzbühel (ca. 30 km).
Die Nähe zur deutschen Grenze ermöglicht den einfachen Zugang zu den...
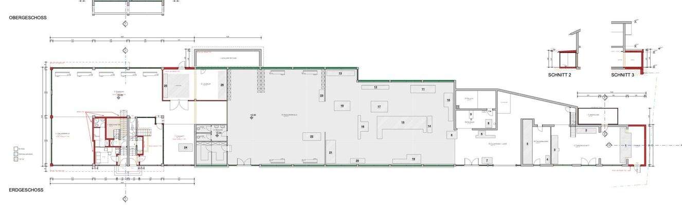
Die Industriefläche
Kategorie
Produktionshalle
Energie & Heizung
Warum sehe ich diese Anzeige? – Du siehst diese Anzeige basierend auf Ihrer Navigation auf unserer Website und den Suchkriterien, die du verwendet hast.
Weitere Energiedaten
Haustyp
Holzhaus
Energieträger
Holz
Heizungsart
Zentralheizung
Details
Objektbeschreibung
Vielseitige Gewerbefläche in Waidring zur Miete - flexibel, zentral, sofort bezugsbereit
In attraktiver Lage von Waidring (Tirol) erwartet Sie eine großzügige Gewerbefläche mit rund 1.079 m², die vielfältige Nutzungsmöglichkeiten bietet - ideal für Produktion, Werkstatt, Lager oder kombinierte...
Preisinformation
Nettokaltmiete: 7.558,74 EUR
Weitere Informationen
Stichworte
Stellplatz vorhanden, Lagerfläche: 1.079,82 m², Nutzfläche: 1.079,82 m², Bundesland: Tirol
Sonstiges: EDV-Verkabelung
Anbieter der Immobilie
Zefi Immobilien GmbH
Josef-Speckbacher-Str. 12, 6300 WÖRGL
Online-ID: 2k7j35w
Referenznummer: OBGC202507181440081592d5bd8a57f
Finde Angebote wie dieses
Hier geht es zu unserem Impressum, den Allgemeinen Geschäftsbedingungen, den Hinweisen zum Datenschutz und nutzungsbasierter Online-Werbung.