

Kirschner Immobilien GmbH
Herr Martin Kirschner
+49 ···
Nr. anzeigenPreise & Kosten
Provision für Käufer
Maklerprovision für den Käufer 3% inkl. 19% MwSt. Zahlbar sofort nach notarieller Beurkundung. Die Maklerprovision bezieht sich ausschließlich auf den Grundstückswert.
Lage
Dechsendorf ist ein idyllischer Ortsteil im westlichen Stadtgebiet von Erlangen, bekannt für seine grüne Umgebung und den beliebten Dechsendorfer Weiher. Die ruhige Wohnlage bietet eine hohe Lebensqualität mit zahlreichen Freizeitmöglichkeiten wie Rad- und Wanderwegen sowie Wassersport.
Dank der guten Verkehrsanbindung...
Das Haus
Kategorie
Doppelhaushälfte
Energie & Heizung
Warum sehe ich diese Anzeige? – Du siehst diese Anzeige basierend auf Ihrer Navigation auf unserer Website und den Suchkriterien, die du verwendet hast.
Weitere Energiedaten
Haustyp
Massivhaus
Heizungsart
Fußbodenheizung
Details
Objektbeschreibung
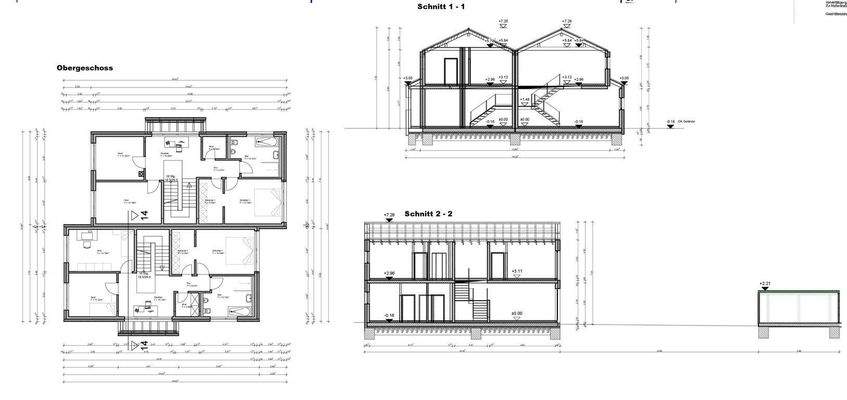
?? In einer der gefragtesten Wohnlagen im Westen von Erlangen, im beliebten Ortsteil Dechsendorf, entsteht auf einem ca. 990?m² großen Grundstück ein hochwertiges Doppelhaus. Die angebotene Haushälfte bietet modernes Wohnen auf ca. 154?m² Wohnfläche - in Kombination mit neuester Technik, einem durchdachten Grundriss und...
Preisinformation
1 Garagenstellplatz
Weitere Informationen
Sonstiges
Der Grundstückskaufpreis sowie eine grobe Schätzung der Baukosten liegen uns vor. Den Gesamtpreis teilen wir Ihnen gerne im persönlichen Gespräch mit.
Er setzt sich zusammen aus:
Abrisskosten für den Alt-Besant
Grundstückspreis
Baukosten für das Doppelhaus (schlüsselfertig)
zzgl...
Anbieter der Immobilie

Online-ID: 2k8s25x
Referenznummer: 651 (1/651)
Finde Angebote wie dieses
Hier geht es zu unserem Impressum, den Allgemeinen Geschäftsbedingungen, den Hinweisen zum Datenschutz und nutzungsbasierter Online-Werbung.