

Rohde und Partner GbR
Frau Janine Jeremias
039 ···
Nr. anzeigenPreise & Kosten
zzgl. Nebenkosten
Provision für Mieter
Provisionsfrei!
Warum sehe ich diese Anzeige? – Du siehst diese Anzeige basierend auf Ihrer Navigation auf unserer Website und den Suchkriterien, die du verwendet hast.
Lage
1A-Lage
Dieses attraktive Ladenlokal befindet sich in der charmanten Gemeinde Flechtingen, die sich durch ihre ruhige und naturnahe Lage auszeichnet. Des Weiteren zieht der als Luftkurort bekannte Fleck jedes Wochenende viele Gäste an. Nicht zuletzt wegen des liebevoll sanierten Schlosses, des wunderschönen Schlosssees...
Land-/Forstwirtschaft
Kategorie
Sonstiges
Baujahr
2004
Bezug
sofort
Energie & Heizung
Warum sehe ich diese Anzeige? – Du siehst diese Anzeige basierend auf Ihrer Navigation auf unserer Website und den Suchkriterien, die du verwendet hast.
Weitere Energiedaten
Energieträger
Gas
Heizungsart
Zentralheizung
Details
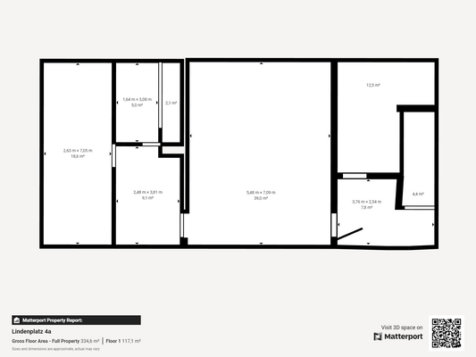
Objektbeschreibung
**Vielfältig nutzbares Gewerbeobjekt in Flechtingen - zur Miete**
Entdecken Sie dieses neuwertige Gewerbeobjekt, das Ihnen zahlreiche Nutzungsmöglichkeiten bietet. Mit einer großzügigen Gewerbefläche von rund 200 m² verteilt auf zwei lichtdurchflutete Etagen ist dieses Objekt ideal für Gastronomie, Einzelhandel...
Preisinformation
20 Stellplätze
Weitere Informationen
Sonstiges
Haben wir Ihr Interesse geweckt? Dann freuen wir uns von Ihnen zu hören oder zu lesen. Gerne beantworten wir Ihre Fragen und vereinbaren einen Besichtigungstermin passend zu Ihrem Terminkalender.
Wir recherchieren gründlich und beraten auf Augenhöhe nach bestem Wissen und Gewissen. Wir weisen dennoch darauf...
Anbieter der Immobilie
Rohde und Partner GbR
Hagenstraße 33, 39340 Haldensleben

Online-ID: 2k9mw5y
Referenznummer: RuP-867
Finde Angebote wie dieses
Hier geht es zu unserem Impressum, den Allgemeinen Geschäftsbedingungen, den Hinweisen zum Datenschutz und nutzungsbasierter Online-Werbung.