Version: 8.25.1Navigation überspringen
642.000 €
2 Zimmer  •  48,8 m²
Immowelt logo

Wohnung zum Kauf - Erstbezug
642000 €
13.148 €/m²
2 Zimmer  •  48,8 m²

Danube Flats I Wohnen bei der Uno City

Für eine noch größere Auswahl an Immobilien besuchen Sie www.akkadia.at [http://www.akkadia.at].

Danube Flat ist Wiens höchstes Wohngebäude und ein neues architektonisches Wahrzeichen der Stadt. Direkt an der Neuen Donau gelegen, vereint dieses beeindruckende Projekt modernes Design, höchste Wohnqualität und eine unvergleichliche Aussicht über Wien.
Die Bewohner genießen exklusiven Wohnkomfort mit zahlreichen Annehmlichkeiten. Ein Concierge-Service kümmert sich um alltägliche Anliegen, während Fitness- und Wellnessbereiche Erholung auf höchstem Niveau bieten. Gemeinschaftseinrichtungen wie eine stilvolle Lounge, ein Private Cinema sowie eine Eventküche schaffen Raum für Begegnung und besondere Momente. Begrünte Terrassen, moderne Sicherheitskonzepte, eine Tiefgarage mit direktem Zugang und smarte Wohntechnologie runden das hochwertige Angebot ab.

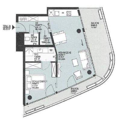
Diese moderne, smarte Wohnung befindet sich im 44. Liftstock eines der beeindruckendsten Wohnhochhäuser Wiens und bietet einen atemberaubenden Panoramablick über die Stadt.
Auf ca. 49?m² Wohnfläche erwartet Sie ein durchdacht gestalteter Grundriss mit hochwertiger Ausstattung. Über ein lichtdurchflutetes Vorzimmer gelangen Sie in die offene Wohn-Küche mit moderner Einbauküche und Zugang zu einem ca. 14?m² großen Balkon, der einen beeindruckenden Fernblick eröffnet. Ein Schlafzimmer mit zusätzlichem Balkonzugang, ein stilvolles Badezimmer mit Dusche, eine separate Toilette sowie ein praktischer Abstellraum runden das Raumangebot ab.

"Auf Grund der EU-Richtlinien zum Fernabsatz- und Auswärtsgeschäfte-Gesetz bitten wir um Ihr Verständnis, dass wir Ihnen seit 13. Juni 2014 die Objekt-Unterlagen erst nach Ihrer Bestätigung, dass Sie unser Tätigwerden wünschen und über Ihre Rücktrittsrechte aufgeklärt wurden, zusenden können. Bevor Sie die Unterlagen zugesendet bekommen, erhalten Sie eine Mail in der Sie diese beiden Punkte bestätigen müssen. Vielen Dank für Ihr Vertrauen!"

Infrastruktur / Entfernungen

Gesundheit
Arzt <250m
Apotheke <500m
Klinik <1.250m
Krankenhaus <2.500m

Kinder & Schulen
Schule <500m
Kindergarten <500m
Universität <1.750m
Höhere Schule <3.000m

Nahversorgung
Supermarkt <250m
Bäckerei <500m
Einkaufszentrum <2.000m

Sonstige
Geldautomat <500m
Bank <500m
Post <500m
Polizei <250m

Verkehr
Bus <250m
U-Bahn <250m
Straßenbahn <1.250m
Bahnhof <250m
Autobahnanschluss <250m

Angaben Entfernung Luftlinie / Quelle: OpenStreetMap

Merkmale

  • offene Küche
  • Personenaufzug
  • Balkon
  • Barrierefrei
  • Bad mit Dusche
  • voll klimatisiert

Grundrisse

Grundrisse
1 / 1

Virtueller Rundgang

3D tour

Realisiere Dein Projekt

Bausubstanz und Energie

Heizwärmebedarf (HWB)

A

Gesamtenergieeffizienz (fGEE)

Der Anbieter hat keine Daten zum Energieausweis hinterlegt.
  • Baujahr2025
  • Zustand der ImmobilieNeubau, Erstbezug
  • HeizungsartFußbodenheizung
Immowelt logo

Preisdetails

Kaufpreis
642000 €
13.147,66 €/m²
Provision für Käufer
3% des Kaufpreises zzgl. 20% USt.

Lage

address-icon
Wien (1220)
Der Anbieter hat die genaue Adresse nicht freigegeben
Danube Flats befindet sich in unmittelbarer Nähe zur Neuen Donau, nur wenige Schritte von der UN-City entfernt, und ist derzeit das höchste Gebäude Wiens.
Die exklusive Lage überzeugt durch ein internationales Umfeld sowie eine ausgezeichnete öffentliche Anbindung - die U-Bahn-Station liegt direkt vor der Haustür.

Weitere Informationen

Stichworte Energieversorgung mit alternativen Energien, Süd-Ost-Balkon/Terrasse, Fahrradraum, Anzahl der Badezimmer: 1, Anzahl der separaten WCs: 1, Anzahl Balkone: 2, Balkon-Terrassen-Fläche: 21,20 m², Bundesland: Wien, 48 Etagen

Weitere Services

Lust auf eine Besichtigung?
Eine Frage zur Immobilie?
Nachricht hinzufügen
Mit der Nutzung der oben angegebenen Telefonnummer oder durch Klicken auf „Kontaktieren“ akzeptierst Du die Allgemeinen Nutzungsbedingungen, denen Du jederzeit widersprechen kannst. Weitere Informationen zum Datenschutz

Über den Anbieter

Göttweihergasse 1/1, 1010 WIEN
partner badge
Partnerschaft
Herr Michael SchlafferDein Kontakt
Online-ID: 25U8LYYTSVUB
Referenznummer: OBGC20250805161714050adb0353fa1
AKKADIA Immobilienvermittlung GmbH
Bewertung: 4,4 von 5 Sternen
Nachricht hinzufügen
Mit der Nutzung der oben angegebenen Telefonnummer oder durch Klicken auf „Kontaktieren“ akzeptierst Du die Allgemeinen Nutzungsbedingungen, denen Du jederzeit widersprechen kannst. Weitere Informationen zum Datenschutz
Wie zufrieden bist du mit dieser Seite (nicht mit der Immobilie selbst)?