
Denninghoff Immobilien
Herr Martin Denninghoff
023 ···
Nr. anzeigenPreise & Kosten
Provision für Käufer
provisionsfrei
Lage
Ruhige und durchgrünte Wohnlage im Bergkamener Ortsteil Oberaden.
Geschäfte des täglichen Bedarfs sowie Ärzte, Kindergärten und Schulen befinden sich in unmittelbarer Nähe.
Die Wohnung
Wohnanlage
Energie & Heizung
Warum sehe ich diese Anzeige? – Du siehst diese Anzeige basierend auf Ihrer Navigation auf unserer Website und den Suchkriterien, die du verwendet hast.
Weitere Energiedaten
Haustyp
KfW 55
Heizungsart
Luft-/Wasser-Wärmepumpe
Details
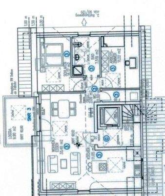
Objektbeschreibung
Bei diesem Objekt handelt es sich um eine Neubau Eigentumswohnung, die im Dachgeschoss eines Wohnhauses mit insgesamt drei Wohneinheiten entstehen wird.
Aufteilung:
Großzügiger Wohn- und Essbereich mit offener Küche inklusive Abstellraum, Schlafzimmer, Kinderzimmer, Diele, Tageslichtbad mit Badewanne und Dusche...
Weitere Informationen
Anfragen
Anfragen werden nur bei komplett ausgefülltem Kontaktformular beantwortet
Energieausweis
Wird aktuell erstellt
Anbieter der Immobilie
Denninghoff Immobilien
Hauptstr. 1, 59439 Holzwickede
Online-ID: 2kazp5p
Referenznummer: 3262
Finde Angebote wie dieses
Hier geht es zu unserem Impressum, den Allgemeinen Geschäftsbedingungen, den Hinweisen zum Datenschutz und nutzungsbasierter Online-Werbung.