
CITYREAL
Herr Stefan Wötzer, MBA
004 ···
Nr. anzeigenPreise & Kosten
Provision für Käufer
3 % zzgl. 20% USt. inkl. MwSt.
Die Immobilie
Zu diesem Angebot wurden vom Anbieter keine weiteren Daten hinterlegt. Für weitere Informationen bitte den Anbieter kontaktieren.
Nach Informationen fragenDetails
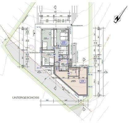
Objektbeschreibung
Ihr Bauprojekt in Birgitz - 457 m² sonniges Grundstück mit bewilligter Architektenplanung!
Auf diesem sonnig gelegenen Grundstück in Birgitz erwartet Sie das perfekte Fundament für Ihr Eigenheim! Mit 457 m² Fläche und einer bereits bewilligten Architektenplanung für ein modernes Einfamilienhaus, können Sie direkt mit...
Weitere Informationen
Stichworte
Anzahl der separaten WCs: 2, Anzahl Terrassen: 1, Kellerfläche: 34,26 m²
Anbieter der Immobilie
CITYREAL
Fürstenweg 8, 6020 INNSBRUCK
Online-ID: 2kc8c57
Referenznummer: 1696
Finde Angebote wie dieses
Günstige Immobilienfinanzierung einfach online berechnen
Persönliches Angebot berechnenWarum sehe ich diese Werbung? – Du siehst diese Werbung basierend auf Deiner Navigation auf unserer Website und der von Dir verwendeten Suchkriterien.
Diese Werbung wird bezahlt von durchblicker
Werbung melden
Hier geht es zu unserem Impressum, den Allgemeinen Geschäftsbedingungen, den Hinweisen zum Datenschutz und nutzungsbasierter Online-Werbung.