
Jehle Immobilien KG
Herr Michael Jehle
004 ···
Nr. anzeigenPreise & Kosten
Provision für Käufer
Bitte beachte, das Angebot kann bei Vertragsabschluss die Zahlung einer Provision beinhalten. Weitere Informationen erhältst Du vom Anbieter.
Lage
Die Lage ist wirklich sehr zentral. In Kürze erreichen Sie sämtliche Geschäfte des täglichen Bedarfs sowie Ärzte, Schulen, Bushaltestellen, Bahnhof Frastanz uvm.
Sogar eine Kleinkinderbetreuung, ein Kindergarten und zwei Schulen (Volksschule und Mittelschule) sind fußläufig erreichbar.
Die perfekte Anbindung an...
Die Wohnung
Wohnungslage
Dachgeschoss
Bezug
nach Vereinbarung
Wohnanlage
Energie & Heizung
Warum sehe ich diese Anzeige? – Du siehst diese Anzeige basierend auf Ihrer Navigation auf unserer Website und den Suchkriterien, die du verwendet hast.
Heizwärmebedarf (HWB)
103,00 kWh/(m²·a)
Gesamtenergieeffizienz (fGEE)
1,53
Weitere Energiedaten
Energieträger
Fernwärme
Details
Objektbeschreibung
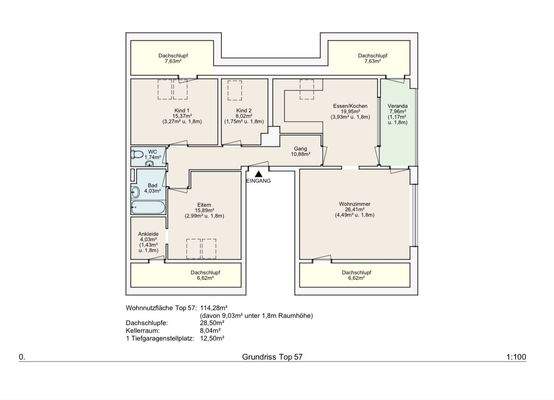
Zum Verkauf steht diese großzügige 5-Zimmer Dachgeschosswohnung die im Herzen von Frastanz liegt.
Die 1986 in massiver Bauweise errichtete Wohnanlage befindet sich in einer familienfreundlichen Wohngegend.
Diese Wohnung ist ideal für Menschen, die sowohl die Ruhe einer angenehmen Wohngegend als auch die...
Ausstattung
Die im Dachgeschoss gelegene Wohnung ist lt. Nutzwertgutachten 114m2 groß und verfügt über
- eine voll ausgestattete Einbauküche
- ein großzügiges Wohnzimmer
- ein Elternschlafzimmer mit begehbarer Ankleide
- zwei Kinderzimmer
- ein Badezimmer mit Badewanne
- ein separates WC
- vier Dachschlupfe...
Preisinformation
345.000,00
Weitere Informationen
Sonstiges
Nebenkosten:
- 3,5 % Grunderwerbssteuer
- 1,1 % Grundbuchseintragungsgebühren (entfällt bei HWS-Anmeldung)
- 3,6 % Vermittlungsprovision
- 1,2 % Vertragserrichtungskosten
Stichworte
Fahrradraum, Anzahl der Schlafzimmer: 3, Anzahl der Badezimmer: 1...
Anbieter der Immobilie
Jehle Immobilien KG
Eugen-Getzner Str. 7, 6710 NENZING
Online-ID: 2kek75d
Referenznummer: 204
Finde Angebote wie dieses
Günstige Immobilienfinanzierung einfach online berechnen
Persönliches Angebot berechnenWarum sehe ich diese Werbung? – Du siehst diese Werbung basierend auf Deiner Navigation auf unserer Website und der von Dir verwendeten Suchkriterien.
Diese Werbung wird bezahlt von durchblicker
Werbung melden
Hier geht es zu unserem Impressum, den Allgemeinen Geschäftsbedingungen, den Hinweisen zum Datenschutz und nutzungsbasierter Online-Werbung.