
Gemeinnützige Bau-, Wohnungs- und Siedlungsgenossenschaft in Wr. Neudorf WNG eGen.m.b.H.
Herr Florian Kramberger-Bacher
+43 ···
Nr. anzeigenPreise & Kosten
Provision für Käufer
Bitte beachte, das Angebot kann bei Vertragsabschluss die Zahlung einer Provision beinhalten. Weitere Informationen erhältst Du vom Anbieter.
Lage
Auf die guten Verbindungen kommt es an. Der Standort vereint perfekt die Vorteile einer Vorstadt mit der Nähe zur Natur und zur Stadt. Der
Bahnhof Wiener Neudorf ist nur wenige Gehminuten entfernt und ermöglicht eine bequeme Anbindung an die Wiener Innenstadt.
Müssen Sie aber nicht, da Nahversorger...
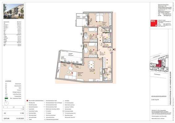
Die Wohnung
Wohnungslage
2. Geschoss
Bezug
sofort
Wohnanlage
Energie & Heizung
Warum sehe ich diese Anzeige? – Du siehst diese Anzeige basierend auf Ihrer Navigation auf unserer Website und den Suchkriterien, die du verwendet hast.
Heizwärmebedarf (HWB)
32,10 kWh/(m²·a)
Gesamtenergieeffizienz (fGEE)
0,75
Details
Objektbeschreibung
_Smartes und zeitloses Design._
Alle Wohnungen sind barrierefrei zugänglich und haben jeweils eine eigene Freifläche in Form von (Dach-) Terrasse, Loggia oder Balkon. Intelligente Grundrisse sorgen für eine optimale Nutzung des Wohnraums, die auch bei kompakten Flächen ein großzügiges Wohngefühl vermittelt.
Die...
Weitere Informationen
Stichworte
Anzahl Balkone: 1, Anzahl Terrassen: 1, Anzahl Loggias: 2, Balkon-Terrassen-Fläche: 10,79 m², Kellerfläche: 2,07 m², Bundesland: Niederösterreich, 4 Etagen, Wohnungsnr.: 6
Dokumente
Anbieter der Immobilie
Gemeinnützige Bau-, Wohnungs- und Siedlungsgenossenschaft in Wr. Neudorf WNG eGen.m.b.H.
Reisenbauer-Ring 2/1/1, 2351 WIENER NEUDORF
Online-ID: 2kgxj5w
Referenznummer: OBGC20230927130122195e13ceed656
Finde Angebote wie dieses
Günstige Immobilienfinanzierung einfach online berechnen
Persönliches Angebot berechnenWarum sehe ich diese Werbung? – Du siehst diese Werbung basierend auf Deiner Navigation auf unserer Website und der von Dir verwendeten Suchkriterien.
Diese Werbung wird bezahlt von durchblicker
Werbung melden
Hier geht es zu unserem Impressum, den Allgemeinen Geschäftsbedingungen, den Hinweisen zum Datenschutz und nutzungsbasierter Online-Werbung.