

HOGE Immobilien GmbH
Herr Phil Noack
004 ···
Nr. anzeigenPreise & Kosten
Provision für Käufer
3,57% (inkl. 19% MwSt.)
Lage
+ Dresden-Gohlis ist ein Stadtteil im Nordwesten von Dresden und gehört zum Stadtbezirk Cossebaude. Er bietet eine ruhige Wohngegend in der Nähe der Elbe.
+Einkaufsmöglichkeiten sind ebenfalls ausreichend vorhanden. So ist z.B. der nächstgelegene Supermarkt nur ca. 600 m entfernt.
+Gohlis ist gut an den...
Die Wohnung
Derzeitige Nutzung
vermietet
Wohnanlage
Energie & Heizung
Warum sehe ich diese Anzeige? – Du siehst diese Anzeige basierend auf Ihrer Navigation auf unserer Website und den Suchkriterien, die du verwendet hast.
Weitere Energiedaten
Energieträger
Gas
Heizungsart
Fußbodenheizung
Details
Objektbeschreibung
Herzlich willkommen in Dresden-Cossebaude!
Zum Verkauf steht eine denkmalgeschützte 4-Raum Wohnung im bekannten Landgut "Bel Soleil" in Dresden Gohlis, in einem bevorzugten, ruhigen Wohngebiet an der Gartenstraße nahe der Elbauen.
Der ehemalige Vierseithof wurde in der ersten Hälfte des 19. Jahrhunderts erbaut...
Ausstattung
+ Eigentumswohnung
+ denkmalgeschützt
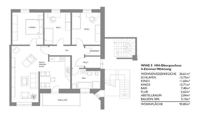
+ 4 Zimmer
+ ca. 93,83 m²
+ 1. Obergeschoss
+ vollständig renoviert (2008)
+ zugehöriges Kellerabteil
+ ein Außenstellplatz
+ ein Carport
+ Einbauküche
+ helles Badezimmer mit Dusche
+ großzügiger Balkon
+ Fußbodenheizung
+ ruhige Wohngegend
+...
Preisinformation
1 Carportplatz
1 Stellplatz
Weitere Informationen
Sonstiges
Wir freuen uns auf Sie !
Ihre HOGE Immobilien GmbH
Ihr treuer Begleiter für Immobilien seit 1991
Bitte haben Sie Verständnis, dass dieses Angebot freibleibend und unverbindlich ist. Alle Informationen, Pläne und Daten wurden nach bestem Wissen gemacht und beruhen auf Angaben unserer...
Anbieter der Immobilie

HOGE Immobilien GmbH
Fasanenweg 39, 01454 Radeberg

Online-ID: 2khfq56
Referenznummer: 337
Finde Angebote wie dieses
Hier geht es zu unserem Impressum, den Allgemeinen Geschäftsbedingungen, den Hinweisen zum Datenschutz und nutzungsbasierter Online-Werbung.