
Anja Hasse Immobilien
Doreen Kaliner
035 ···
Nr. anzeigenPreise & Kosten
Provision für Käufer
3.57% inkl. MwSt.
Die Käuferprovision beträgt 3,57 % des Kaufpreises inkl. 19% MwSt.
Lage
Die Immobilie befindet sich im malerischen Bärenfels, einem Teil des Kurorts Altenberg, der ideal zur Naherholung geeignet ist. Die Region ist bekannt für ein umfassendes Angebot an Wintersportmöglichkeiten und lädt ebenso zu ausgedehnten Wanderausflügen ein. Die Wanderwege liegen dabei unmittelbar am Grundstück an. Die...
Das Haus
Kategorie
Mehrfamilienhaus
Baujahr
1939
Energie & Heizung
Warum sehe ich diese Anzeige? – Du siehst diese Anzeige basierend auf Ihrer Navigation auf unserer Website und den Suchkriterien, die du verwendet hast.
Energieausweis: für diesen Gebäudetyp nicht notwendig
Weitere Energiedaten
Energieträger
Gas
Heizungsart
Zentralheizung
Details
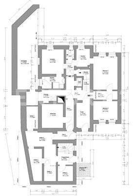
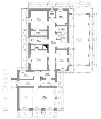
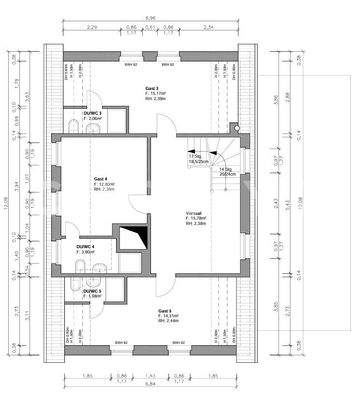
Objektbeschreibung
Dieses einzigartige Anwesen bietet eine hervorragende Gelegenheit für Investoren, welche an einer Ferienvermietung in einem beliebten Urlaubsort interessiert sind. Natürlich wäre auch ein privat genutztes Generationswohnen denkbar. Das Haupthaus wurde 1942 und das Nebenhaus ca. 1972 errichtet. Mit einer großzügigen Wohnfläche...
Ausstattung
- Zwei Häuser in Massivbauweise verbunden mit Durchgang
- 2 x abgeschlossene Wohnungen á ca. 3 Personen, 7 Doppelzimmer mit Bad
- Beheizte Veranda als Gemeinschaftsraum mit Kamin
- 3 Einbauküchen
- Pfalzaludach (teilweise leichte Dellen durch Hagel - keine funktionale Einschränkung des Daches)
-...
Weitere Informationen
Sonstiges
Dieses Exposé ist eine Vorinformation, als Rechtsgrundlage gilt allein der zu beurkundende Kaufvertrag. Alle Angaben sind ohne Gewähr. Sämtliche Angaben sind nach bestem Wissen und größter Sorgfalt geprüft. Das Angebot stellt kein vertragliches Angebot dar. Grafiken und Fotos dienen lediglich zur...
Anbieter der Immobilie
Anja Hasse Immobilien
Altkötzschenbroda 23, 01445 Radebeul
Online-ID: 2khtt58
Referenznummer: C21_DKAL_43638
Finde Angebote wie dieses
Hier geht es zu unserem Impressum, den Allgemeinen Geschäftsbedingungen, den Hinweisen zum Datenschutz und nutzungsbasierter Online-Werbung.