
Schantl ITH Immobilientreuhand GmbH
Herr Reinhard Winkler
+43 ···
Nr. anzeigenPreise & Kosten
Provision für Käufer
21.204,00 € inkl. 20% USt.
Lage
- Ruhige und grüne Wohngegend in Zentrumslage
- Gute Verkehrsanbindung (Autobahn, Zug)
- Umgeben von Wäldern und Weinbergen
- Schöne Aussicht auf die umliegende Landschaft
- In der Nähe von Wander- und Radwegen
- Familienfreundliche Umgebung mit vielen Freizeitmöglichkeiten
- Gut entwickelte Infrastruktur...
Die Immobilie
Zu diesem Angebot wurden vom Anbieter keine weiteren Daten hinterlegt. Für weitere Informationen bitte den Anbieter kontaktieren.
Nach Informationen fragenDetails
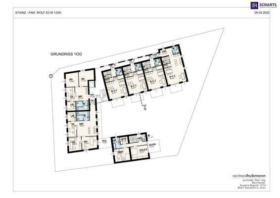
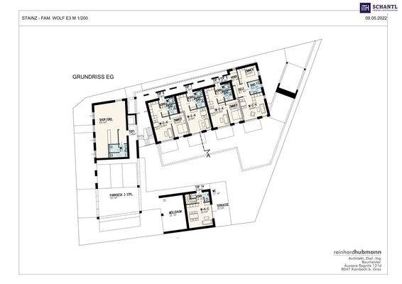
Objektbeschreibung
ERSTKLASSIGER BAUTRÄGERGRUND MIT DURCHDACHTER PLANSTUDIE IN BESTER LAGE - OPTIMALE VORAUSSETZUNGEN FÜR IHR BAUPROJEKT.
LUKRATIVES IMMOBILIENINVESTMENT - IN STAINZ UM NUR € 589.000,- JETZT SICHERN!
In der begehrten Lage von Stainz, direkt neben der Bahnhofstraße 29, bieten wir Ihnen eine einmalige...
Preisinformation
Kaufpreis erst nach Baugenehmigung fällig!
Weitere Informationen
Stichworte
Tiefgarage vorhanden, Rolladen, Wohnfläche: 1.074,80 m², Bundesland: Steiermark
Anbieter der Immobilie

Schantl ITH Immobilientreuhand GmbH
Messendorferstraße 71a, 8041 Graz
Online-ID: 2knrp5c
Referenznummer: OBGC202506110915233402ced6f99ac
Finde Angebote wie dieses
Günstige Immobilienfinanzierung einfach online berechnen
Persönliches Angebot berechnenWarum sehe ich diese Werbung? – Du siehst diese Werbung basierend auf Deiner Navigation auf unserer Website und der von Dir verwendeten Suchkriterien.
Diese Werbung wird bezahlt von durchblicker
Werbung melden
Hier geht es zu unserem Impressum, den Allgemeinen Geschäftsbedingungen, den Hinweisen zum Datenschutz und nutzungsbasierter Online-Werbung.