RESERVIERT - Eigenständiges Wohneigentum in zentraler Lage Rohrbachs
Diese Immobilie wurde um 1905 errichtet und ist seit 1925 dokumentiert. Seitdem wurde sie nicht „neu erfunden“, sondern kontinuierlich gepflegt, technisch erhalten und verantwortungsvoll weitergegeben. Mit einer aktuellen Wohnfläche von ca. 78 m², verteilt auf Erd- und Obergeschoss, bietet das Haus einen überschaubaren, gut nutzbaren Grundriss – ideal für eine bis maximal drei Personen. Bei direkter Lage im historischen Kern Rohrbachs, besteht die Möglichkeit den eigenen Stellplatz direkt am Haus auf dem eigenen Grundstück nutzen zu können. Dies macht das Haus besonders attraktiv für Menschen, die urban, nachhaltig und unabhängig leben möchten. Im Anschluss an Ihre Kontaktaufnahme, werden auf Wunsch weiterführende Unterlagen und Dokumentationen zur Verfügung gestellt. Diese zeigen auf, wie die angedachten Umbaumaßnahmen – insbesondere im Dachgeschoss – zu einem konkreten Mehrwert führen. Transparente Investitionen ermöglichen hier Nutzfläche und neuen Charme, ohne den Maßstab oder die Identität des Hauses zu verändern. Eine Begehung und der persönliche Eindruck vor Ort sind ausdrücklich empfohlen, um den eigenen individuellen Bedarf realistisch zu erfassen.
Merkmale
Bezug: 10/2026
2 Geschosse
94 m² Grundstück
Einbauküche, offene Küche
Kein Keller
Außen-Stellplatz
Gäste-WC
Terrasse
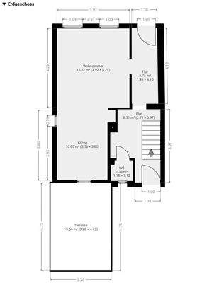
Grundrisse
Grundrisse
1 / 2
Realisiere Dein Projekt
Bausubstanz und Energie
Energieausweis
H
Baujahr1905
Zustand der ImmobilieMassivhaus
HeizungsartZentralheizung
EnergieträgerGas
Preisdetails
Kaufpreis
330000 €330.000 €
4.209,72 €/m²
Provision für Käufer
Bei Abschluss eines notariellen Kaufvertrages über das von uns angebotene Objekt beanspruchen wir für unsere Nachweis- bzw. Vermittlungstätigkeit eine Käuferprovision i.H.v. 2,975 % inkl. MwSt. auf den Gesamtkaufpreis.
Geschätzte Gesamtkosten
362.934 €1
Kaufpreis
330.000 €
Kaufnebenkosten
32.934 €
2
Notarkosten (1,5%)
4.950 €
Grunderwerbsteuer (5%)
16.500 €
Provision für Käufer (2,98%)
9.834 €
Grundbucheintrag (0,5%)
1.650 €
1Der angezeigte Wert ist eine automatisch berechnete Schätzung von immowelt.
2Bei den Angaben handelt es sich um ortsübliche Werte. Individuelle Kosten können abweichen.
Lage
Rohrbach, Heidelberg (69126)
Der Anbieter hat die genaue Adresse nicht freigegeben
Das Objekt liegt im historischen Ortskern von Heidelberg-Rohrbach. Die Straßenbahnhaltestelle „Rohrbach Markt“ ist in wenigen Gehminuten erreichbar und bringt Sie in rund 15 Minuten direkt in die Heidelberger Innenstadt. Der Hauptbahnhof Heidelberg ist in etwa 10–15 Minuten mit dem Auto oder bequem per Straßenbahn erreichbar. Von dort bestehen ICE-Verbindungen in die Metropolregion Rhein-Neckar sowie nach Frankfurt, Stuttgart oder Karlsruhe. Die Autobahnanschlüsse an die A5 und A656 sind ebenfalls in unter 10 Minuten erreichbar – ideal für Pendler und Berufstätige. Auch international bleibt die Immobilie hervorragend angebunden: Der Flughafen Frankfurt am Main ist in rund einer Stunde erreichbar, Mannheim in etwa 20 Minuten. Hinzu kommt die landschaftliche Qualität: Nur wenige Minuten entfernt beginnen die Weinberge, Spazierwege und Waldflächen Richtung Königstuhl. Natur und Naherholung sind hier kein Wochenendziel, sondern Teil des Alltags. Gleichzeitig überzeugt die unmittelbare Lage durch ihre Vollständigkeit: Rathaus, Bürgeramt, Banken, Apotheke, Ärzte, Schulen, Kindergarten, Wochenmarkt, Bäckerei, Metzgerei, Reinigung, Gastronomie – alles befindet sich in fußläufiger Entfernung.
Weitere Informationen
Bedingungen und Provisionshinw
Hinweis: Einige Bilder wurden digital optimiert (z. B. Belichtung und Perspektive). Die räumlichen Gegebenheiten wurden dabei nicht verändert.
Die Angaben zum Objekt dienen einer ersten Information. Für die Richtigkeit und Vollständigkeit wird keine Haftung übernommen. Unser Exposé ist für Sie persönlich bestimmt. Jede unberechtigte Weitergabe unseres Verkaufsangebotes an Dritte kann zum Schadenersatz in Höhe der vollen Maklerprovision führen. Die Weitergabe des Exposés an einen Kapitalgeber zum Zwecke einer Finanzierung ist gestattet. Sollte Ihnen das Objekt von dritter Seite bereits bekannt sein, bitten wir um Rückgabe unseres Exposés und Angabe, wie und zu welchem Zeitpunkt Sie anderweitig Kenntnis erhalten haben. Bei Abschluss eines notariellen Kaufvertrages über das von uns angebotene Objekt beanspruchen wir für unsere Nachweis- bzw. Vermittlungstätigkeit eine Käuferprovision in Höhe von 2,975 % inkl. MwSt. auf den Gesamtkaufpreis. Wir sind auch für den Verkäufer provisionspflichtig in gleicher Höhe tätig.
Die Angaben zum Objekt dienen einer ersten Information. Für die Richtigkeit und Vollständigkeit wird keine Haftung übernommen. Die Grundrisse sind nicht maßstabsgetreu. Die Maße beruhen auf ca. Werten.